• 手机版

    扫码体验手机版

  • 微信公众号

    扫码关注公众号

登录注册
游客您好
第三方账号登陆

[衢州] 云栖新语16-1-5#96㎡现代——生活就是恰到好处

[复制链接]
发表于 2020-4-21 14:28:48 | 显示全部楼层 |阅读模式
生活就是恰到好处

格堂装饰为您全程记录装修全过程!

小区名称
云栖新语
房屋面积
96㎡
户型结构
套房
装修风格
现代
装修方式
半包
装修造价
查看请联系客服万元
设计师
王工
项目经理
郑工
装修公司
格堂装饰
完工实景
完工实景
水电全景
水电全景
VR全景
VR全景
设计说明
简约风设计一切从功能出发,没有过分的装饰,简约和实用并重,更符合快节奏时代下的生活需求。以简洁的表现手法,来满足人们对空间环境,感性的、本能的和理性的需求,简单而不失品位。
更多信息

效果图
3df812fd212a9ffde97df4ee7e2f49e.jpg

2c7513d036e023f7e48a20898eebee7.png

8929ce12582318a22867a2c4369c58c.png

de5aad9b8937c5d8a381617bf02a04e.jpg
回复

使用道具 举报

 楼主| 发表于 2020-4-21 14:29:32 | 显示全部楼层

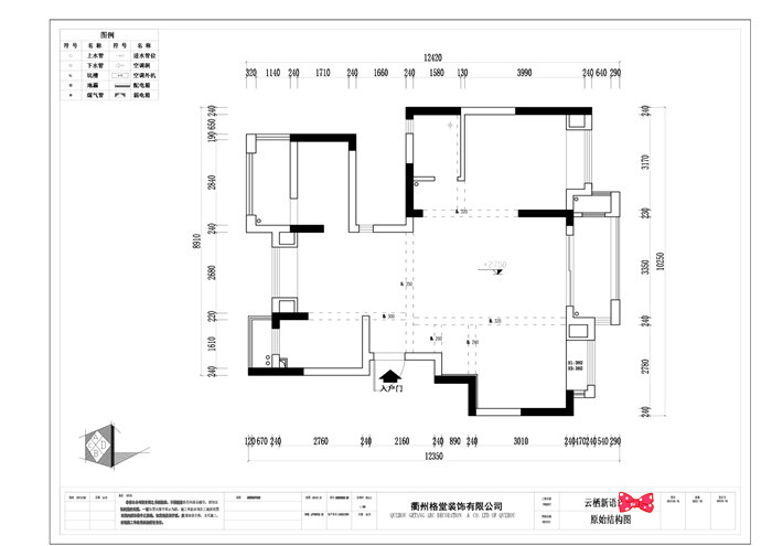
原始结构图
9e79d122219ff436734625a4e7c68d4.jpg
回复 支持 反对

使用道具 举报

 楼主| 发表于 2020-4-21 14:29:54 | 显示全部楼层

平面布置图
accd80120cd610518df5712c0f729ab.jpg
回复 支持 反对

使用道具 举报

 楼主| 发表于 2020-4-21 14:31:17 | 显示全部楼层

开工前,项目经理正在布置开工桌。
IMG_20200420_085319.jpg

IMG_20200420_085113.jpg

IMG_20200420_085056.jpg

IMG_20200420_085447.jpg
回复 支持 反对

使用道具 举报

 楼主| 发表于 2020-4-21 14:32:24 | 显示全部楼层

下水管用格堂专用保护盖保护,防止砂石堵塞管道。
IMG_20200420_085456.jpg

IMG_20200420_085508.jpg

IMG_20200420_085516.jpg

IMG_20200420_085550.jpg

IMG_20200420_085537.jpg
回复 支持 反对

使用道具 举报

 楼主| 发表于 2020-4-21 14:50:24 | 显示全部楼层
临时马桶:每一个施工现场都会配备临时小便斗,并且时刻保持干净卫生、保证工地环境干净、整洁。
IMG_20200420_085523.jpg

IMG_20200420_085527.jpg
回复 支持 反对

使用道具 举报

 楼主| 发表于 2020-4-21 14:51:28 | 显示全部楼层

大门套上门套保护到位。
IMG_20200420_085755.jpg

IMG_20200420_085644.jpg

IMG_20200420_085941.jpg
回复 支持 反对

使用道具 举报

 楼主| 发表于 2020-4-21 14:52:00 | 显示全部楼层

礼炮准备好了
IMG_20200420_085518.jpg
回复 支持 反对

使用道具 举报

 楼主| 发表于 2020-4-21 14:54:19 | 显示全部楼层

给业主大人送上美丽的鲜花。
IMG_20200420_091212.jpg
回复 支持 反对

使用道具 举报

 楼主| 发表于 2020-4-21 14:54:53 | 显示全部楼层

一切准备就绪,就等吉时
IMG_20200420_091217.jpg
回复 支持 反对

使用道具 举报

您需要登录后才可以回帖 登录 | 立即注册

本版积分规则

全国统一客服电话
0570-8028505

24x7小时免费咨询

  • 官方在线客服

    QQ客服:小西

    点击交谈

    QQ客服:良子

    点击交谈

    QQ客服:闵月

    点击交谈
  • 衢州市柯城区财富中心3号楼2楼

  • 衢州格堂装饰有限公司

  • 扫一扫关注官方微信

    获取一手特惠信息

快速回复 返回顶部 返回列表