• 手机版

    扫码体验手机版

  • 微信公众号

    扫码关注公众号

登录注册
游客您好
第三方账号登陆

[衢州] 衢州花园2-2-1#300㎡美式 —-绮梦

[复制链接]
发表于 2020-4-15 16:16:56 | 显示全部楼层 |阅读模式
绮梦

格堂装饰为您全程记录装修全过程!

小区名称
衢州花园
房屋面积
300㎡
户型结构
复式
装修风格
美式
装修方式
全包
装修造价
查看请联系客服万元
设计师
邱工
项目经理
周工
装修公司
格堂装饰
完工实景
完工实景
水电全景
水电全景
VR全景
VR全景
设计说明
身处繁华都市太久,
便渴望一丝静谧的身心归处,
阳光,茶香,听风,赏雨,
你应该享有这种姿态,
生活的诗意而满足,
睁开双眼,
看到的便是美好。。。
更多信息
本帖最后由 格堂月红 于 2020-11-24 12:28 编辑

效果图
mmexport1586848947807.jpg

mmexport1586848950649.jpg
回复

使用道具 举报

 楼主| 发表于 2020-4-15 16:18:32 | 显示全部楼层

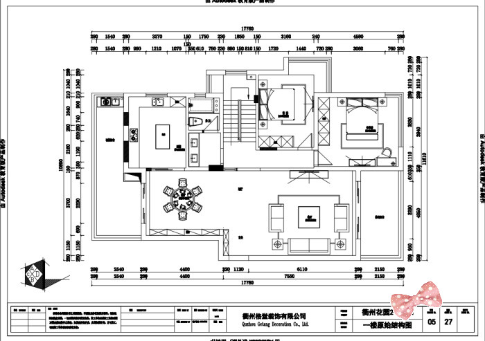
一楼原始结构图
mmexport1586848942617.jpg
二楼原始结构图
mmexport1586848945226.jpg
回复 支持 反对

使用道具 举报

 楼主| 发表于 2020-4-15 16:19:18 | 显示全部楼层
本帖最后由 格堂月红 于 2020-11-24 12:29 编辑

一楼平面布置图
mmexport1586848939999.jpg
二楼平面布置图
mmexport1586848937273.jpg
回复 支持 反对

使用道具 举报

 楼主| 发表于 2020-4-15 16:20:27 | 显示全部楼层

开工前项目经理正在准备开工桌、挂横幅。
IMG_20200411_083752.jpg

IMG_20200411_084320.jpg
回复 支持 反对

使用道具 举报

 楼主| 发表于 2020-4-15 16:21:20 | 显示全部楼层

下水管用格堂专用保护盖保护,防止砂石堵塞管道。
IMG_20200411_083634.jpg

IMG_20200411_083601.jpg

IMG_20200411_083551.jpg

IMG_20200411_083640.jpg
回复 支持 反对

使用道具 举报

 楼主| 发表于 2020-4-15 16:22:43 | 显示全部楼层

临时马桶:每一个施工现场都会配备临时小便斗,并且时刻保持干净卫生、保证工地环境干净、整洁。
IMG_20200411_083526.jpg
回复 支持 反对

使用道具 举报

 楼主| 发表于 2020-4-15 16:23:12 | 显示全部楼层

煤气表已经保护好了。
IMG_20200411_084844.jpg
回复 支持 反对

使用道具 举报

 楼主| 发表于 2020-4-15 16:23:38 | 显示全部楼层

礼炮已经准备好了。
IMG_20200411_083732.jpg
回复 支持 反对

使用道具 举报

 楼主| 发表于 2020-4-15 16:24:26 | 显示全部楼层

给业主大人送上美丽的鲜花。
IMG_20200411_084616.jpg
回复 支持 反对

使用道具 举报

 楼主| 发表于 2020-4-15 16:26:18 | 显示全部楼层

吉时到开工了,恭祝业主大人开工大吉!
IMG_20200411_085816_1.jpg

IMG_20200411_085818.jpg

IMG_20200411_085817.jpg
回复 支持 反对

使用道具 举报

您需要登录后才可以回帖 登录 | 立即注册

本版积分规则

全国统一客服电话
0570-8028505

24x7小时免费咨询

  • 官方在线客服

    QQ客服:小西

    点击交谈

    QQ客服:良子

    点击交谈

    QQ客服:闵月

    点击交谈
  • 衢州市柯城区财富中心3号楼2楼

  • 衢州格堂装饰有限公司

  • 扫一扫关注官方微信

    获取一手特惠信息

快速回复 返回顶部 返回列表