• 手机版

    扫码体验手机版

  • 微信公众号

    扫码关注公众号

登录注册
游客您好
第三方账号登陆

[衢州] 锦西家园15-2-40#40㎡ 北欧—-归属

[复制链接]
发表于 2020-3-27 10:35:12 | 显示全部楼层 |阅读模式
归属

格堂装饰为您全程记录装修全过程!

小区名称
锦西家园
房屋面积
40㎡
户型结构
套房
装修风格
北欧
装修方式
半包
装修造价
查看请联系客服万元
设计师
王工
项目经理
胡工
装修公司
格堂装饰
完工实景
完工实景
水电全景
水电全景
VR全景
VR全景
设计说明
设计师以独特的、细腻的手法完成案例的创作,大体上的质朴简约,加以细节上的精细勾勒,让这套案例的处处充满惊喜,使我们在惊讶于设计师的巧妙心思的同时,更感受家所带来的归属感
更多信息

回复

使用道具 举报

 楼主| 发表于 2020-3-27 10:42:37 | 显示全部楼层
效果图

微信图片_20200325092539.jpg


微信图片_20200325092552.jpg



微信图片_20200325092557.jpg


原始结构图


微信图片_20200325092604.png



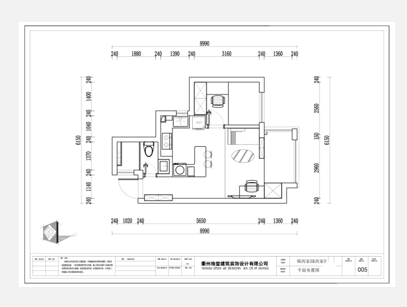
平面布置图


微信图片_20200325092600.png
回复 支持 反对

使用道具 举报

 楼主| 发表于 2020-3-27 10:44:33 | 显示全部楼层
开工仪式很短暂,家居装修却很长……与漫漫人生历程相比,这些短短一瞬,却包含了满满的心意。我们竭力用自己的专业技能,让每位业主拥有最接近梦想的家。
恭祝开工大吉!!!


IMG_20200323_131014.jpg

回复 支持 反对

使用道具 举报

 楼主| 发表于 2020-3-27 10:44:57 | 显示全部楼层
装修开工,第一锤应该敲在要拆除的墙体的墙角及拐角上,象征一槌定音的意思,也是新房动土的一种表示方式


IMG_20200323_130821.jpg
回复 支持 反对

使用道具 举报

 楼主| 发表于 2020-4-10 16:16:37 | 显示全部楼层
铲灰是为了降低后期油漆施工出现空鼓现象

IMG_20200407_074227.jpg


IMG_20200407_074228.jpg
回复 支持 反对

使用道具 举报

 楼主| 发表于 2020-4-10 16:17:02 | 显示全部楼层
拆改阶段


IMG_20200407_074238.jpg


IMG_20200407_074229.jpg
回复 支持 反对

使用道具 举报

 楼主| 发表于 2020-4-10 16:17:27 | 显示全部楼层
客厅拆除


IMG_20200407_074246.jpg


IMG_20200407_074241.jpg
回复 支持 反对

使用道具 举报

 楼主| 发表于 2020-4-10 16:18:14 | 显示全部楼层
铲灰是为了降低后期油漆施工出现空鼓现象

IMG_20200407_074247.jpg


IMG_20200407_074248.jpg
回复 支持 反对

使用道具 举报

 楼主| 发表于 2020-4-10 16:18:50 | 显示全部楼层
卧室铲灰

IMG_20200407_074253.jpg


IMG_20200407_074255.jpg
回复 支持 反对

使用道具 举报

 楼主| 发表于 2020-4-10 16:19:05 | 显示全部楼层
IMG_20200407_074256.jpg

IMG_20200407_074306.jpg
回复 支持 反对

使用道具 举报

您需要登录后才可以回帖 登录 | 立即注册

本版积分规则

全国统一客服电话
0570-8028505

24x7小时免费咨询

  • 官方在线客服

    QQ客服:小西

    点击交谈

    QQ客服:良子

    点击交谈

    QQ客服:闵月

    点击交谈
  • 衢州市柯城区财富中心3号楼2楼

  • 衢州格堂装饰有限公司

  • 扫一扫关注官方微信

    获取一手特惠信息

快速回复 返回顶部 返回列表