• 手机版

    扫码体验手机版

  • 微信公众号

    扫码关注公众号

登录注册
游客您好
第三方账号登陆

[衢州] 云栖新语9-3-1#171㎡现代——《归来》

[复制链接]
发表于 2020-3-25 16:35:26 | 显示全部楼层 |阅读模式
《归来》

格堂装饰为您全程记录装修全过程!

小区名称
云栖新语
房屋面积
171㎡
户型结构
复式
装修风格
现代
装修方式
半包
装修造价
查看请联系客服万元
设计师
韩工
项目经理
周工
装修公司
格堂装饰
完工实景
完工实景
水电全景
水电全景
VR全景
VR全景
设计说明
设计理念:传统思想铸就我们对于家的依赖,无关大小它的存在就是我们的信仰,包容小小的我。是洗去疲倦后的寄托、唤醒内心深处的灵魂。不老的时光变成永恒的主题,将生活过成诗篇,岁月静好,让每一天都能写满仪式感。好的设计将泥土与生活连成线,点缀人、居,将有限的空间无限放大,传承、延续。
更多信息
本帖最后由 格堂飞飞 于 2021-3-11 11:02 编辑

效果图
IMG_2399.JPG
IMG_2398.JPG
回复

使用道具 举报

 楼主| 发表于 2020-3-25 16:40:31 | 显示全部楼层
本帖最后由 格堂飞飞 于 2020-3-25 16:43 编辑

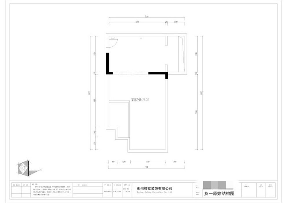
原始结构图
IMG_2405.JPG

IMG_2408_副本.jpg

回复 支持 反对

使用道具 举报

 楼主| 发表于 2020-3-25 16:44:07 | 显示全部楼层

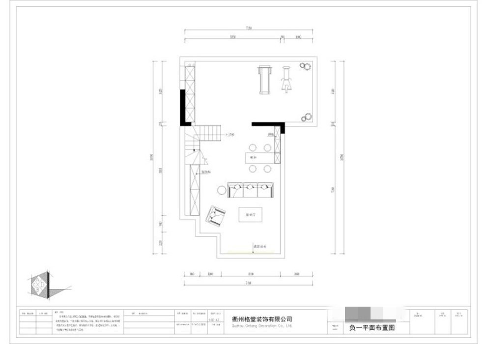
平面布置图
IMG_2406.JPG

IMG_2407_副本.jpg
回复 支持 反对

使用道具 举报

 楼主| 发表于 2020-3-25 16:45:15 | 显示全部楼层

开工前大门先要保护起来,防止磕碰哦!
IMG_1539.JPG
回复 支持 反对

使用道具 举报

 楼主| 发表于 2020-3-25 16:46:19 | 显示全部楼层

临时马桶安装到位,要讲究卫生哦!
IMG_1542.JPG

回复 支持 反对

使用道具 举报

 楼主| 发表于 2020-3-25 16:47:23 | 显示全部楼层

水管用格堂专用保护盖保护,防止砂石堵塞管道。
IMG_1543.JPG

IMG_1544.JPG
回复 支持 反对

使用道具 举报

 楼主| 发表于 2020-3-25 16:48:02 | 显示全部楼层

地面保护膜到位。
IMG_1541.JPG

回复 支持 反对

使用道具 举报

 楼主| 发表于 2020-3-25 16:49:01 | 显示全部楼层

师傅正在电梯间墙面和地面保护。
IMG_1551.JPG

IMG_1550.JPG
回复 支持 反对

使用道具 举报

 楼主| 发表于 2020-3-25 16:50:40 | 显示全部楼层

准备就绪,就等开工吉时啦!
IMG_1552.JPG

IMG_1547.JPG
回复 支持 反对

使用道具 举报

 楼主| 发表于 2020-3-25 16:51:36 | 显示全部楼层

吉时已到,恭祝业主大人开工大吉!
IMG_1578.JPG
回复 支持 反对

使用道具 举报

您需要登录后才可以回帖 登录 | 立即注册

本版积分规则

全国统一客服电话
0570-8028505

24x7小时免费咨询

  • 官方在线客服

    QQ客服:小西

    点击交谈

    QQ客服:良子

    点击交谈

    QQ客服:闵月

    点击交谈
  • 衢州市柯城区财富中心3号楼2楼

  • 衢州格堂装饰有限公司

  • 扫一扫关注官方微信

    获取一手特惠信息

快速回复 返回顶部 返回列表