• 手机版

    扫码体验手机版

  • 微信公众号

    扫码关注公众号

登录注册
游客您好
第三方账号登陆

[衢州] 衢州公馆9-2-4-104㎡ 北欧——家,是生活所在

[复制链接]
发表于 2020-3-17 08:27:22 | 显示全部楼层 |阅读模式
家,是生活所在

格堂装饰为您全程记录装修全过程!

小区名称
衢州公馆
房屋面积
104㎡
户型结构
套房
装修风格
北欧
装修方式
全包
装修造价
查看请联系客服万元
设计师
王工
项目经理
胡工
装修公司
格堂装饰
完工实景
完工实景
水电全景
水电全景
VR全景
VR全景
设计说明
我们一直在渴求着喧嚣尘世与宁静心灵的统一,身体舒适与情趣雅致的结合,只为给疲惫的灵魂寻求一个静心沉淀的场所,而这就是家存在的意义。
更多信息

效果图
mmexport1584258655782.jpg

mmexport1584258640146.jpg

mmexport1584258626678.jpg

mmexport1584258619525.jpg
回复

使用道具 举报

 楼主| 发表于 2020-3-17 08:38:09 | 显示全部楼层

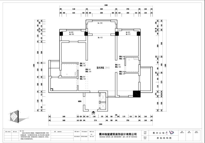
原始结构图
mmexport1584259087265.jpg
回复 支持 反对

使用道具 举报

 楼主| 发表于 2020-3-17 08:38:55 | 显示全部楼层

平面布置图
mmexport1584259096771.jpg
回复 支持 反对

使用道具 举报

 楼主| 发表于 2020-3-17 08:40:20 | 显示全部楼层

开工前大门保护到位。
IMG_20200315_094844.jpg

IMG_20200315_094853.jpg

IMG_20200315_100856.jpg
回复 支持 反对

使用道具 举报

 楼主| 发表于 2020-3-17 08:41:48 | 显示全部楼层

下水管用格堂专用保护盖保护,防止砂石堵塞管道。
IMG_20200315_100319.jpg

IMG_20200315_100326.jpg

IMG_20200315_100354.jpg

IMG_20200315_100406.jpg

IMG_20200315_100410.jpg
回复 支持 反对

使用道具 举报

 楼主| 发表于 2020-3-17 08:42:36 | 显示全部楼层

正在准备开工桌
IMG_20200315_094901.jpg
回复 支持 反对

使用道具 举报

 楼主| 发表于 2020-3-17 08:43:08 | 显示全部楼层

礼炮准备好了
IMG_20200315_094908.jpg
回复 支持 反对

使用道具 举报

 楼主| 发表于 2020-3-17 08:44:16 | 显示全部楼层

给业主大人送上美丽的鲜花
IMG_20200315_100159.jpg
回复 支持 反对

使用道具 举报

 楼主| 发表于 2020-3-17 08:45:03 | 显示全部楼层

一切准备就绪,就等吉时!
IMG_20200315_100656.jpg
回复 支持 反对

使用道具 举报

 楼主| 发表于 2020-3-17 08:46:23 | 显示全部楼层

设计师和敲墙的师傅正在主卧拆改放样。
IMG_20200315_100929.jpg

IMG_20200315_100936.jpg
回复 支持 反对

使用道具 举报

您需要登录后才可以回帖 登录 | 立即注册

本版积分规则

全国统一客服电话
0570-8028505

24x7小时免费咨询

  • 官方在线客服

    QQ客服:小西

    点击交谈

    QQ客服:良子

    点击交谈

    QQ客服:闵月

    点击交谈
  • 衢州市柯城区财富中心3号楼2楼

  • 衢州格堂装饰有限公司

  • 扫一扫关注官方微信

    获取一手特惠信息

快速回复 返回顶部 返回列表