[衢州] 牡丹园14-2-10#143㎡美式——给自己的歌 |
|
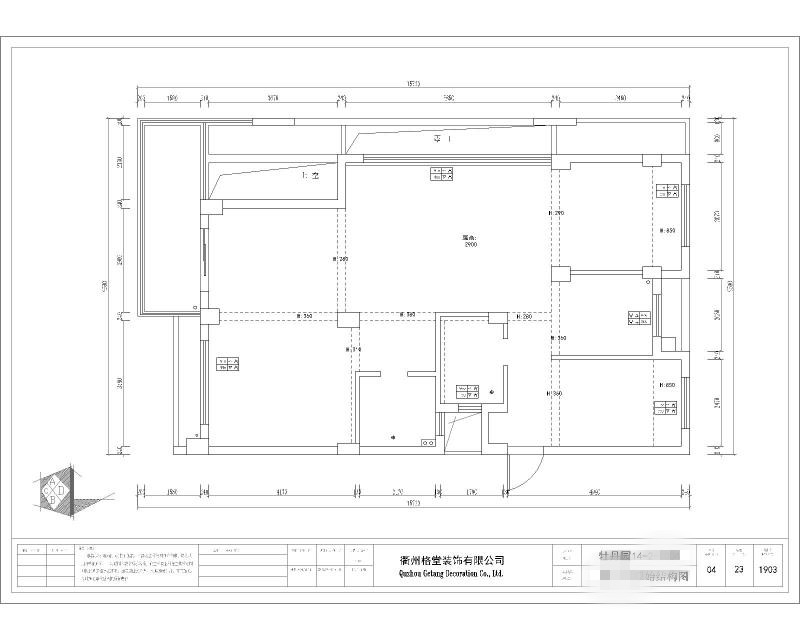
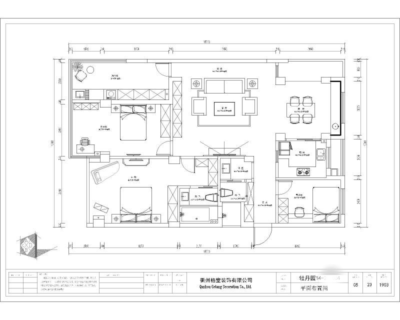
牡丹园14-2-10#143㎡美式——给自己的歌
格堂装饰为您全程记录装修全过程! 设计说明
舒适生活,是为屋主打造对于家的新感受,并非将空间塞满,
而是设计到刚好、机能刚好、家具软件布置到刚好,也将光纳入设计规划, 利用自然的光线变化, 如清晨薄纱般的光线、午后的温暖阳光、落日的橘黄斜下、夜晚的点点车灯, 让空间有着不同风情,家,自然成为最舒心的居所。 更多信息
| |


在线客服
微信客服
关注有礼