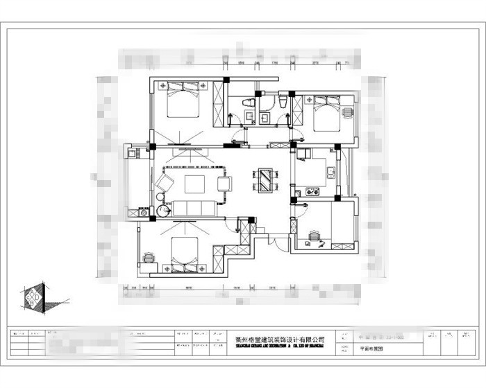
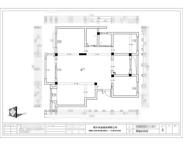
中梁首府23-1-5#127㎡ 现代——家的温度 |
|
中梁首府23-1-5#127㎡ 现代——家的温度
格堂装饰实景完工案例欣赏!
设计说明
本方案是围绕现代简约为主题,适合于三口之家居住,再加上木饰面设计元素在里面。相互结合,相交融。以简洁明快的设计风格为主调,简洁和实用是现代简约风格的基本特点。简约风格已经大行其道几年了,仍然保持很猛的势头,这是因为人们装修时总希望在经济、实用、舒适的同时,体现一定的文化品味。而简约风格不仅注重居室的实用性,而且还体现出了现代社会生活的精致与个性,符合现代人的生活品位。
更多信息
| |


在线客服
微信客服
关注有礼