• 手机版

    扫码体验手机版

  • 微信公众号

    扫码关注公众号

登录注册
游客您好
第三方账号登陆

衢州公馆18-6#142㎡美式——蓝.调

[复制链接]
发表于 2020-2-8 16:37:50 | 显示全部楼层 |阅读模式
衢州公馆18-6#142㎡美式——蓝.调

格堂装饰实景完工案例欣赏!

小区名称
衢州公馆
房屋面积
142㎡
户型结构
套房
装修风格
美式
装修方式
全包
装修造价
查看请联系客服万元
设计师
王工
项目经理
施工
装修公司
格堂装饰
装修过程
装修日记
设计说明
本案为美式风格,主题色调为蓝色。用蓝色去装饰整个客厅空间,加上金属色的点缀,将阳台包进客厅,放上几盆绿植,一个摇椅,一杯热茶。这样的美式,不是特别厚重,却也不会显得单薄,质感满满的同时,也让生活氛围蔓延开来。
更多信息
7E1A4161.jpg


回复

使用道具 举报

 楼主| 发表于 2020-2-8 16:38:13 | 显示全部楼层
本帖最后由 格堂方俊 于 2020-12-6 10:43 编辑


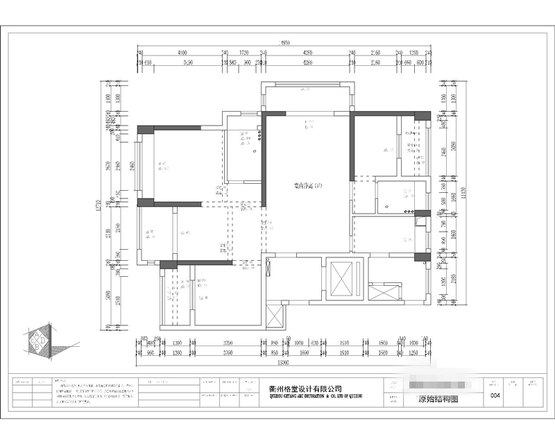
原始构图▼▼▼

f21b2266a0f9518b1159ab0cee64b6e1_114239deyq4euwwdf2zei1.jpg


回复 支持 反对

使用道具 举报

 楼主| 发表于 2020-2-8 16:38:28 | 显示全部楼层
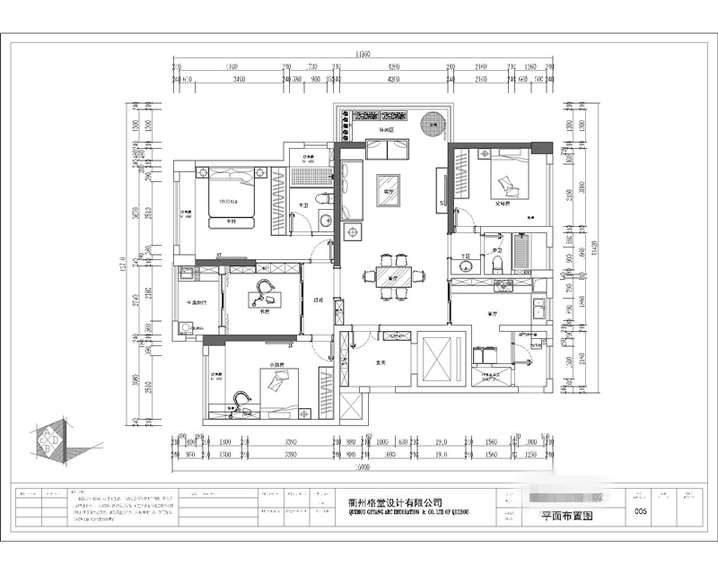
平面布置图▼▼▼

ada1261e0dc911ba29774e2282a1d021_114351ydsrsqrbbs4o44sy.jpg


回复 支持 反对

使用道具 举报

 楼主| 发表于 2020-2-8 16:38:55 | 显示全部楼层
客厅▼▼▼

7E1A4155.jpg

7E1A4156.jpg

7E1A4157.jpg

7E1A4158.jpg

7E1A4160.jpg

7E1A4161.jpg

7E1A4162.jpg


回复 支持 反对

使用道具 举报

 楼主| 发表于 2020-2-8 16:39:15 | 显示全部楼层
餐厅▼▼▼

7E1A4163.jpg

7E1A4164.jpg

7E1A4165.jpg


回复 支持 反对

使用道具 举报

 楼主| 发表于 2020-2-8 16:39:35 | 显示全部楼层
主卧▼▼▼

7E1A4141.jpg

7E1A4142.jpg


回复 支持 反对

使用道具 举报

 楼主| 发表于 2020-2-8 16:39:54 | 显示全部楼层
次卧▼▼▼

7E1A4146.jpg

7E1A4148.jpg


回复 支持 反对

使用道具 举报

 楼主| 发表于 2020-2-8 16:40:13 | 显示全部楼层
书房▼▼▼

7E1A4152.jpg

7E1A4151.jpg


回复 支持 反对

使用道具 举报

 楼主| 发表于 2020-2-8 16:40:30 | 显示全部楼层
客房▼▼▼

7E1A4153.jpg

7E1A4154.jpg


回复 支持 反对

使用道具 举报

 楼主| 发表于 2020-2-8 16:40:46 | 显示全部楼层
主卫▼▼▼

7E1A4144.jpg

7E1A4145.jpg


回复 支持 反对

使用道具 举报

您需要登录后才可以回帖 登录 | 立即注册

本版积分规则

全国统一客服电话
0570-8028505

24x7小时免费咨询

  • 官方在线客服

    QQ客服:小西

    点击交谈

    QQ客服:良子

    点击交谈

    QQ客服:闵月

    点击交谈
  • 衢州市柯城区财富中心3号楼2楼

  • 衢州格堂装饰有限公司

  • 扫一扫关注官方微信

    获取一手特惠信息

快速回复 返回顶部 返回列表