吾悦华府9#118㎡现代——不期而遇 |
|
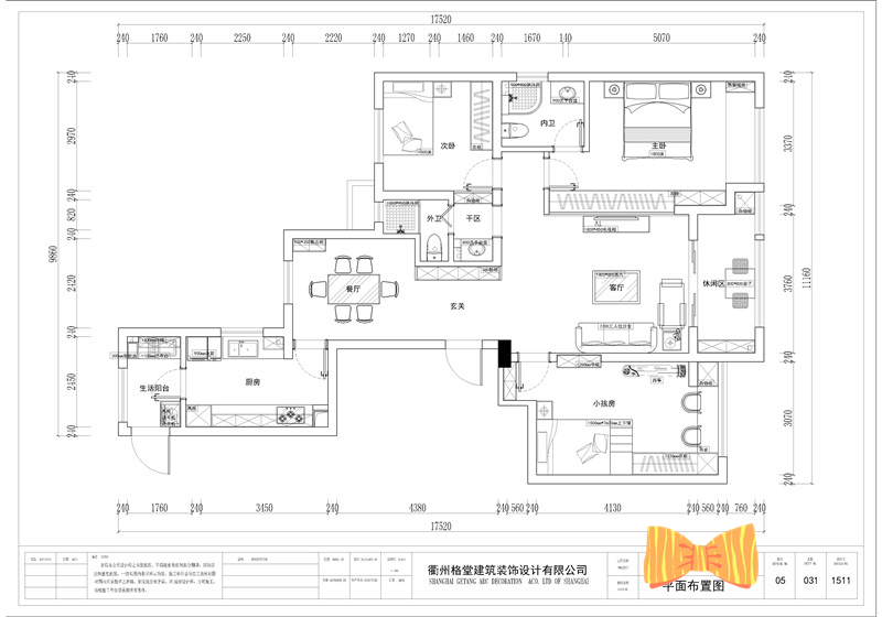
吾悦华府9#118㎡现代——不期而遇
格堂装饰实景完工案例欣赏!
设计说明
本案从玄关到客厅入口开始,整面的个性鞋柜,即满足了家庭的,又凸显出主人的个性需求,整面的白色柜面搭配高级木色,创造出简单又温暖的舒适感。客厅电视背景采用爵士白的整面大理石,皮质沙发,金属质感的灯具,无一不显主人的高贵。玄关与廊道共构的中介空间,让开放通透的客餐厅与封闭私密的卧室之间有了情境的过渡与节奏的转换,好似结束了一天繁忙的生活开始放慢脚步调整气息。
更多信息
| |


在线客服
微信客服
关注有礼