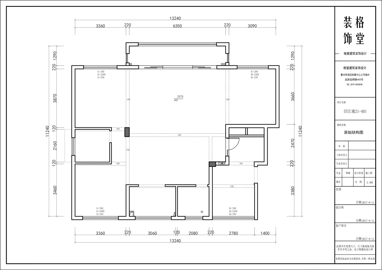
[龙游] 龙游印江南21#4#133㎡法式极简----浅笑看花开 |
|
浅笑看花开
格堂装饰为您全程记录装修全过程! 设计说明
摒弃传统法式的繁复、冗杂的装饰造型与甜腻的色泽,转而用经典轴线、对称布局的方式,结合淡雅的空间色调或几何线条与典雅时尚的陈设软装,打造出一个法式轻奢主义的空间格调。在色调运用上,大部分设计以浅色为主色调,用少许亮色进行点缀。在视觉感知上,浅色与深色相比,是令人觉得较为柔和、舒适的色调,而少许亮色的点缀,使空间在和谐统一的基础上更具视觉层次感,为空间平添几许温度与生气。在造型选择上,法式极简风格往往会添加曲线这个传统法式风格中随处可见的设计元素,并结合方正矩形及几何框架的造型,使整个设计变得刚中有柔,恰得好处。 如沙发、电视柜、茶水案几的矩形框架装饰。这种几何线条带来空间变化的连续性和形体变化的层次感。
更多信息
| |
| |
| |


在线客服
微信客服
关注有礼