• 手机版

    扫码体验手机版

  • 微信公众号

    扫码关注公众号

登录注册
游客您好
第三方账号登陆

[衢州] 誉江南17-4-1#120㎡现代 —-- 和光同尘

[复制链接]
发表于 2019-12-2 15:00:25 | 显示全部楼层 |阅读模式
- 和光同尘

格堂装饰为您全程记录装修全过程!

小区名称
誉江南
房屋面积
120㎡
户型结构
套房
装修风格
现代
装修方式
全包
装修造价
查看请联系客服万元
设计师
韩工
项目经理
郑工
装修公司
格堂装饰
完工实景
完工实景
水电全景
水电全景
VR全景
VR全景
设计说明
抛弃所有的技巧,是我一开始的初衷,更希望通过尊重建筑本身的意义,宜居,环保,实用,与人的生活状态高度融合来传递我的设计观点——物我两忘,浑然天成
精确的灯光设计,带来不同的家居氛围,无论是相聚,还是独处都能被恰到好处的灯光包围,眼里没有多余的颜色,更能看清内心的想法。
更多信息

效果图
28f422c89a02c0122b0e80fb979e0eb.jpg

6267c77265026722f6fabe0eae45fd8.jpg
回复

使用道具 举报

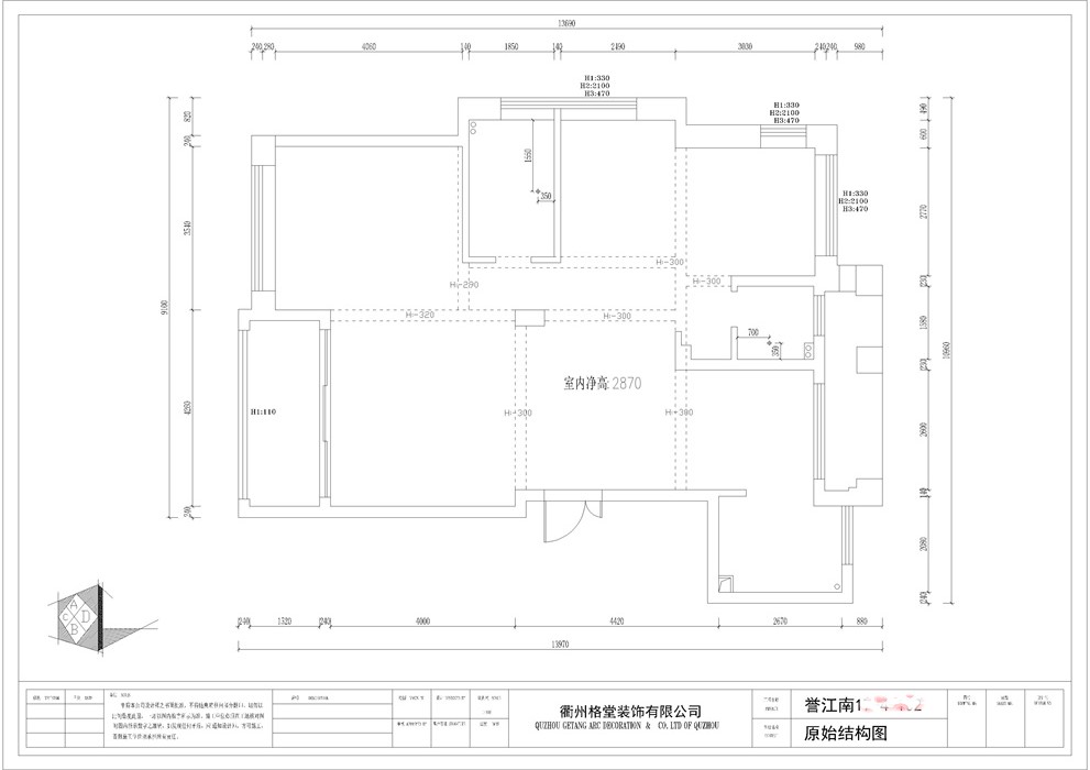
 楼主| 发表于 2019-12-2 15:00:58 | 显示全部楼层

原始结构图
5e69a053b1ac8ac70d31f517b19c294.jpg
回复 支持 反对

使用道具 举报

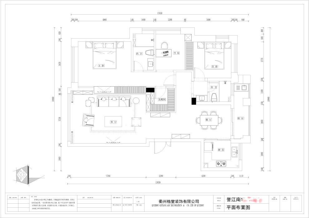
 楼主| 发表于 2019-12-2 15:01:18 | 显示全部楼层

平面布置图
06053327839dde64e00dc9e4961b74e.jpg
回复 支持 反对

使用道具 举报

 楼主| 发表于 2019-12-2 15:11:26 | 显示全部楼层

开工前准备,项目经理正在和师傅挂横幅,设计师正在准备开工桌,开工桌铺上了红彤彤的桌布,王老吉也摆好了,很喜庆哦!
IMG_20191129_091115.jpg

IMG_20191129_091151.jpg

IMG_20191129_091153.jpg
回复 支持 反对

使用道具 举报

 楼主| 发表于 2019-12-2 15:13:43 | 显示全部楼层

临时马桶:每一个施工现场都会配备临时小便斗,并且时刻保持干净卫生、保证工地环境干净、整洁。
IMG_20191129_091526.jpg
回复 支持 反对

使用道具 举报

 楼主| 发表于 2019-12-2 15:15:06 | 显示全部楼层

下水管用格堂专用保护盖保护,防止砂石堵塞管道。
IMG_20191129_091529.jpg

IMG_20191129_091531.jpg

IMG_20191129_091533.jpg
回复 支持 反对

使用道具 举报

 楼主| 发表于 2019-12-2 15:36:59 | 显示全部楼层

礼炮准备好了
IMG_20191129_091020.jpg
回复 支持 反对

使用道具 举报

 楼主| 发表于 2019-12-2 15:37:35 | 显示全部楼层

给业主大人送上美丽的鲜花
IMG_20191129_091004.jpg
回复 支持 反对

使用道具 举报

 楼主| 发表于 2019-12-2 15:38:11 | 显示全部楼层

一切准备就绪,就等吉时了
IMG_20191129_091434.jpg
回复 支持 反对

使用道具 举报

 楼主| 发表于 2019-12-2 15:38:59 | 显示全部楼层

吉时到开工了,恭祝业主开工大吉。
IMG_20191129_091753.jpg

IMG_20191129_091806.jpg

IMG_20191129_091806_1.jpg
回复 支持 反对

使用道具 举报

您需要登录后才可以回帖 登录 | 立即注册

本版积分规则

全国统一客服电话
0570-8028505

24x7小时免费咨询

  • 官方在线客服

    QQ客服:小西

    点击交谈

    QQ客服:良子

    点击交谈

    QQ客服:闵月

    点击交谈
  • 衢州市柯城区财富中心3号楼2楼

  • 衢州格堂装饰有限公司

  • 扫一扫关注官方微信

    获取一手特惠信息

快速回复 返回顶部 返回列表