• 手机版

    扫码体验手机版

  • 微信公众号

    扫码关注公众号

登录注册
游客您好
第三方账号登陆

[衢州] 衢州公馆1-1-2-145㎡ 现代——灰色山泉

[复制链接]
发表于 2019-11-14 14:59:43 | 显示全部楼层 |阅读模式
灰色山泉

格堂装饰为您全程记录装修全过程!

小区名称
衢州公馆
房屋面积
145㎡
户型结构
套房
装修风格
现代
装修方式
半包
装修造价
查看请联系客服万元
设计师
郑工
项目经理
周工
装修公司
格堂装饰
完工实景
完工实景
水电全景
水电全景
VR全景
VR全景
设计说明
设计理念

灰度现代风。将原有入户门处房间改为开放式书房,客餐厅就更开阔了,
整体色调灰色,和浅灰色木制家具相互融合,餐厅的位置用尽可能的简洁、清爽的形式
去将空间与客厅融合,灰色墙体搭配石材背景,整个空间硬朗产生一种质感之美,让人萌生出一探究竟的好奇。
更多信息

效果图
IMG_1760.JPG

IMG_1758.JPG

IMG_1761.JPG
回复

使用道具 举报

 楼主| 发表于 2019-11-14 15:00:34 | 显示全部楼层

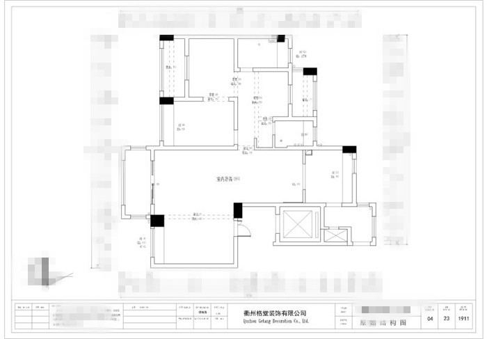
原始结构图
IMG_1762_副本.jpg
回复 支持 反对

使用道具 举报

 楼主| 发表于 2019-11-14 15:00:56 | 显示全部楼层

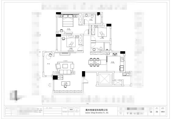
平面布置图
IMG_1759_副本.jpg
回复 支持 反对

使用道具 举报

 楼主| 发表于 2019-11-14 15:03:45 | 显示全部楼层

项目经理正在搭桌子,开工前准备工作,先要做好哦!
IMG_1558.JPG

IMG_1559.JPG
回复 支持 反对

使用道具 举报

 楼主| 发表于 2019-11-14 15:05:28 | 显示全部楼层

大红桌布铺起来,红红火火哟!
IMG_1560.JPG
回复 支持 反对

使用道具 举报

 楼主| 发表于 2019-11-14 15:08:17 | 显示全部楼层

项目经理正在墙面挂公司横幅和施工牌。
IMG_1562.JPG
施工规范牌,同样展示到位,方便检查和验收。进度控制表,使工地进度按预定的目标进行,确保按期完工。施工铭牌上标示着设计师、项目经理、施工工人的姓名和电话,方便业主随时监督。

IMG_1565.JPG
回复 支持 反对

使用道具 举报

 楼主| 发表于 2019-11-14 15:10:32 | 显示全部楼层

项目经理正在大门保护。
IMG_1576.JPG
大门保护到位,防止磕碰哦!
IMG_1599.JPG
回复 支持 反对

使用道具 举报

 楼主| 发表于 2019-11-14 15:11:23 | 显示全部楼层

门槛也保护到位,防止磕碰哦!
IMG_1600.JPG
回复 支持 反对

使用道具 举报

 楼主| 发表于 2019-11-14 15:13:08 | 显示全部楼层

师傅正在下水管道保护,防止堵塞。
IMG_1567.JPG

IMG_1569.JPG

IMG_1574.JPG
回复 支持 反对

使用道具 举报

 楼主| 发表于 2019-11-14 15:14:12 | 显示全部楼层

水管用格堂专用保护盖保护,防止砂石堵塞管道.

IMG_1568.JPG

IMG_1570.JPG

IMG_1575.JPG
回复 支持 反对

使用道具 举报

您需要登录后才可以回帖 登录 | 立即注册

本版积分规则

全国统一客服电话
0570-8028505

24x7小时免费咨询

  • 官方在线客服

    QQ客服:小西

    点击交谈

    QQ客服:良子

    点击交谈

    QQ客服:闵月

    点击交谈
  • 衢州市柯城区财富中心3号楼2楼

  • 衢州格堂装饰有限公司

  • 扫一扫关注官方微信

    获取一手特惠信息

快速回复 返回顶部 返回列表