• 手机版

    扫码体验手机版

  • 微信公众号

    扫码关注公众号

登录注册
游客您好
第三方账号登陆

[龙游] 龙游石佛白马村别墅#258.5㎡新中式——东方的庭院

[复制链接]
发表于 2019-11-8 12:25:46 | 显示全部楼层 |阅读模式
东方的庭院

格堂装饰为您全程记录装修全过程!

小区名称
白马村自建别墅
房屋面积
258.2㎡
户型结构
别墅
装修风格
新中式
装修方式
全包
装修造价
查看请联系客服万元
设计师
王工
项目经理
吴工
装修公司
格堂装饰
完工实景
完工实景
水电全景
水电全景
VR全景
VR全景
设计说明
阅尽繁华,纵情山水之乐,不陷深山,享真正的山居桃源。不仅仅是居住的尺度,更是一种内在的心灵回归。一砖一瓦、一树一木、一山一世界,一院一人生。
林枫欲老柿已熟,秋在万山深处红,品仲秋光年的意韵绵绵,心中有田园,方寸即世界。家人闲坐,灯火可亲,寄月共此时
更多信息
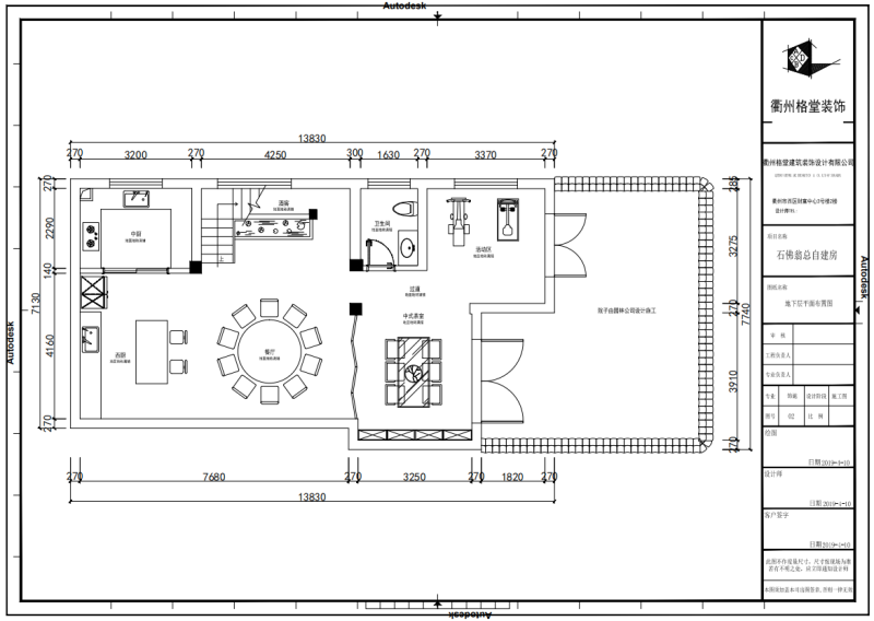
原始结构图地下室
图片1.png

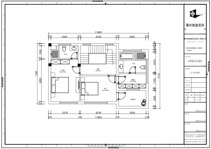
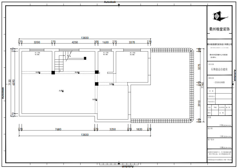
一楼
图片2.png

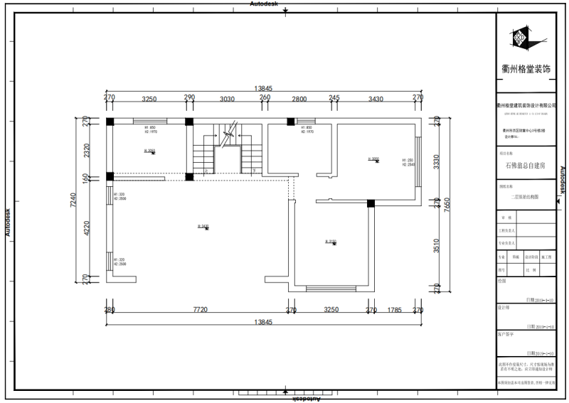
二楼
图片3.png
回复

使用道具 举报

 楼主| 发表于 2019-11-8 12:26:08 | 显示全部楼层
平面布置图






回复 支持 反对

使用道具 举报

 楼主| 发表于 2019-11-8 12:26:08 | 显示全部楼层
平面布置图

图片4.png

图片5.png

图片6.png
回复 支持 反对

使用道具 举报

 楼主| 发表于 2019-11-8 12:27:54 | 显示全部楼层
效果图
图片1.png

图片2.png

回复 支持 反对

使用道具 举报

 楼主| 发表于 2019-11-8 12:30:04 | 显示全部楼层
开工前做准备

回复 支持 反对

使用道具 举报

 楼主| 发表于 2019-11-8 12:30:04 | 显示全部楼层
开工前做准备
IMG_1074.JPG
回复 支持 反对

使用道具 举报

 楼主| 发表于 2019-11-8 12:30:27 | 显示全部楼层
IMG_1076.JPG

IMG_1071.JPG
回复 支持 反对

使用道具 举报

 楼主| 发表于 2019-11-8 12:31:00 | 显示全部楼层
下水道做好保护,防止沙石阻塞

IMG_1077.JPG

IMG_1078.JPG

IMG_1079.JPG
回复 支持 反对

使用道具 举报

 楼主| 发表于 2019-11-8 12:31:24 | 显示全部楼层
IMG_1080.JPG

IMG_1083.JPG
回复 支持 反对

使用道具 举报

 楼主| 发表于 2019-11-8 12:32:08 | 显示全部楼层
吉时已到,开工大吉

IMG_1095.JPG
回复 支持 反对

使用道具 举报

您需要登录后才可以回帖 登录 | 立即注册

本版积分规则

全国统一客服电话
0570-8028505

24x7小时免费咨询

  • 官方在线客服

    QQ客服:小西

    点击交谈

    QQ客服:良子

    点击交谈

    QQ客服:闵月

    点击交谈
  • 衢州市柯城区财富中心3号楼2楼

  • 衢州格堂装饰有限公司

  • 扫一扫关注官方微信

    获取一手特惠信息

快速回复 返回顶部 返回列表