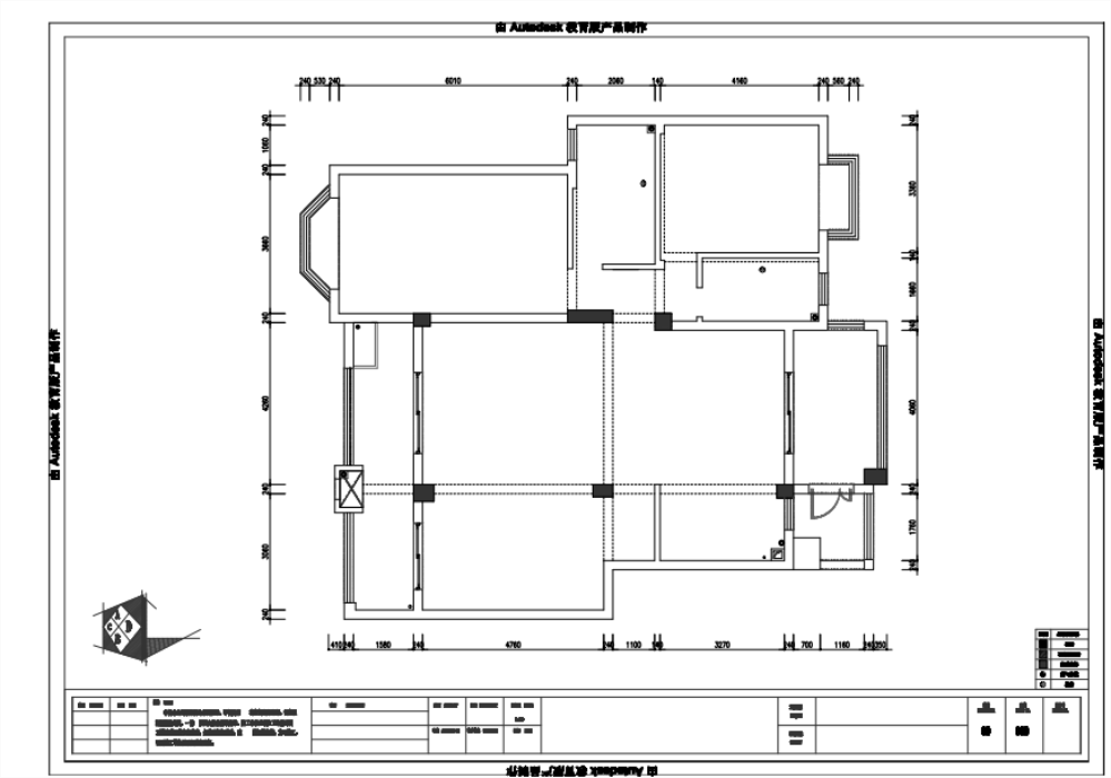
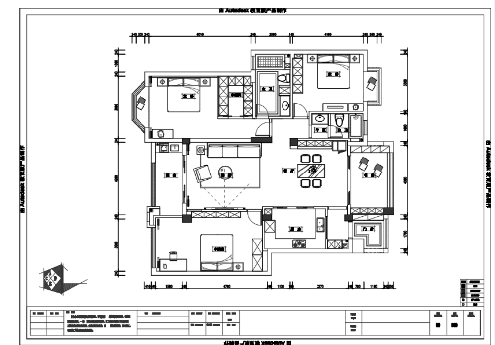
[衢州] 金河湾7-1-3# 161㎡现代——安得广厦千万间 |
|
安得广厦千万间
格堂装饰为您全程记录装修全过程! 设计说明
兜兜转转、修修改改,J女士这套房子的设计可谓是好事多磨,男业主几乎是不管事情的,装修的重担自然而然的压在了J女士身上,很幸运的是J女士对于房子的设计十分感兴趣,很多灵感和设计师不谋而合,于是乎,和J女士讨论这套房子的设计变成了一段很有趣的交流之旅。
J女士喜欢现代简约的设计,和她的性格很像,简约、大方。于是我们搭配现在流行灰色大理石作为主色调,以爱马仕橙色,作为空间调色,营造出一个现代且温馨的家。 更多信息
| |


在线客服
微信客服
关注有礼