[衢州] 衢州公馆14-16# 119㎡中式—— 优雅慢时光 |
|
优雅慢时光
格堂装饰为您全程记录装修全过程! 设计说明
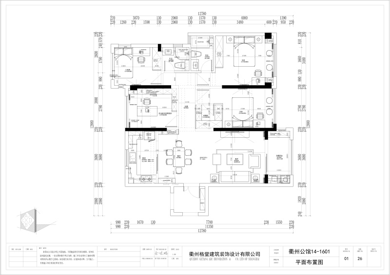
新中式风格装修带给人庄重与优雅的双重感受,也是中国人对于家居新环境的研究和追求的一种创新,这不单单是对明清家居装饰的复制,更多的是结合现代的装修理念来表达出新中式风格中对清雅含蓄,端庄风华的东方精神文化的追求,本案通过深色木饰面和浅色大理石以及金色线条,勾勒出新中式的沉稳,再辅以米色系地砖与墙面,让空间温暖优雅起来,不会显得沉闷,最后配上跳色软装,使得空间丰富起来,享受优雅慢时光。
更多信息
| |


在线客服
微信客服
关注有礼