[衢州] 府前一号10-1-16#260㎡现代简约——我心安处 无问西东 |
|
我心安处 无问西东
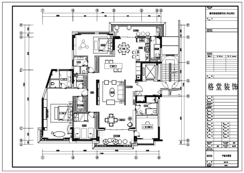
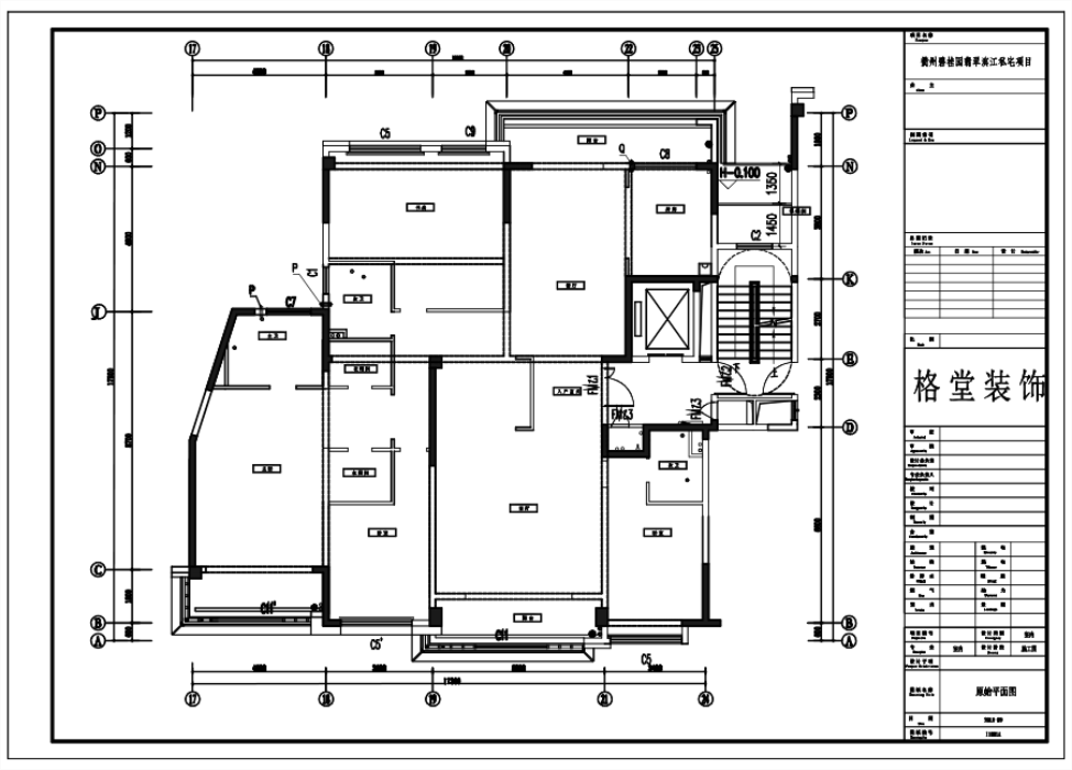
格堂装饰为您全程记录装修全过程! 设计说明
初见J小姐,觉得她是个极其精致的人、追求自我、富有个性,可能是因为工作性质原因,对于任何事物她都会认真的记录下来。
大礼不辞小让—— 真正的奢华隐藏于细节的雕琢之中,集于凝练成简洁、优雅的存在,才能直抵内心 空间承载着生活,设计也不再是去创造某种视觉感受 ,而是更多的关乎人性,重建人与物的美好关系,构建与心一致的生活状态。 更多信息
| |


在线客服
微信客服
关注有礼