• 手机版

    扫码体验手机版

  • 微信公众号

    扫码关注公众号

登录注册
游客您好
第三方账号登陆

[衢州] 中梁首府19-3-3#125㎡ 简美风格——梦境生活

[复制链接]
发表于 2019-9-21 11:34:24 | 显示全部楼层 |阅读模式
梦境生活

格堂装饰为您全程记录装修全过程!

小区名称
中梁首府
房屋面积
125㎡
户型结构
套房
装修风格
简美
装修方式
半包
装修造价
查看请联系客服万元
设计师
胡工
项目经理
胡工
装修公司
格堂装饰
完工实景
完工实景
水电全景
水电全景
VR全景
VR全景
设计说明
“一花一世界,一木一浮生,闲情寄趣,自在一方”是业主对未来生活的美好向往,回家便能感知轻松与温暖,在休憩的午后,闲暇的时光,窝在沙发上,看一本书或看一部喜欢的电影,享受当下生活的惬意,家就是属于他们的”一方自在“。
更多信息

效果图
11e3f778061a4b1ac523d7b8004a85a.jpg

77043124f5f83433c378d3d0090bbed.jpg
回复

使用道具 举报

 楼主| 发表于 2019-9-21 11:34:56 | 显示全部楼层

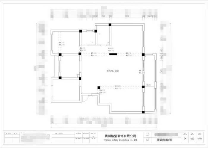
原始结构图
304eac8a8d4ed787ed0a3a98cf045d4_副本.jpg
回复 支持 反对

使用道具 举报

 楼主| 发表于 2019-9-21 11:35:19 | 显示全部楼层

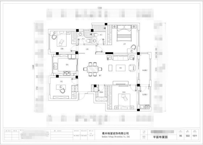
平面布置图
c9cf5eea0fdfcb03d8f1b3ddedaca1f_副本.jpg
回复 支持 反对

使用道具 举报

 楼主| 发表于 2019-9-21 11:43:26 | 显示全部楼层
本帖最后由 格堂飞飞 于 2019-9-22 08:24 编辑

开工前准备工作先做好,项目经理正在搭桌子。
IMG_7034.JPG

IMG_7036.JPG

回复 支持 反对

使用道具 举报

 楼主| 发表于 2019-9-22 08:14:27 | 显示全部楼层

红桌布铺好了红红火火哟!
IMG_7040.JPG
回复 支持 反对

使用道具 举报

 楼主| 发表于 2019-9-22 08:25:52 | 显示全部楼层

项目经理正在墙面挂施工牌。
IMG_7041.JPG

IMG_7042.JPG
回复 支持 反对

使用道具 举报

 楼主| 发表于 2019-9-22 08:29:56 | 显示全部楼层

项目经理正在大门保护,防止磕碰。
IMG_7056.JPG

IMG_7059.JPG

回复 支持 反对

使用道具 举报

 楼主| 发表于 2019-9-22 08:32:41 | 显示全部楼层

临时马桶安装到位,要讲究卫生哦!
IMG_7064.JPG
回复 支持 反对

使用道具 举报

 楼主| 发表于 2019-9-22 08:35:55 | 显示全部楼层

水管用格堂专用保护盖保护,防止砂石堵塞管道.

IMG_7062.JPG

IMG_7063.JPG
回复 支持 反对

使用道具 举报

 楼主| 发表于 2019-9-22 08:36:57 | 显示全部楼层

煤气表也要保护起来,防止磕碰。
IMG_7079.JPG

回复 支持 反对

使用道具 举报

您需要登录后才可以回帖 登录 | 立即注册

本版积分规则

全国统一客服电话
0570-8028505

24x7小时免费咨询

  • 官方在线客服

    QQ客服:小西

    点击交谈

    QQ客服:良子

    点击交谈

    QQ客服:闵月

    点击交谈
  • 衢州市柯城区财富中心3号楼2楼

  • 衢州格堂装饰有限公司

  • 扫一扫关注官方微信

    获取一手特惠信息

快速回复 返回顶部 返回列表