• 手机版

    扫码体验手机版

  • 微信公众号

    扫码关注公众号

登录注册
游客您好
第三方账号登陆

[衢州] 衢州公馆23#367㎡后现代—家人闲坐,灯火可亲

[复制链接]
发表于 2019-9-18 14:54:10 | 显示全部楼层 |阅读模式
家人闲坐,灯火可亲

格堂装饰为您全程记录装修全过程!

小区名称
衢州公馆
房屋面积
367㎡
户型结构
别墅
装修风格
后现代
装修方式
半包
装修造价
查看请联系客服万元
设计师
王工
项目经理
甘工
装修公司
格堂装饰
完工实景
完工实景
水电全景
水电全景
VR全景
VR全景
设计说明
日间的一番忙录过后,我们总要回归个人生活,享受独属于自己的那一份宁静。每一个家都有自己的性格,回归生活,关照内心,设计师希望,在这个案例里让居住者融入其中,找到存在与归属感,通过舒适温暖的居住环境,和居住者对话,给疲惫的现代人提供新鲜的灵感。
更多信息
效果图。
mmexport1568788920392.jpg
mmexport1568788988306.jpg
回复

使用道具 举报

 楼主| 发表于 2019-9-18 14:56:31 | 显示全部楼层

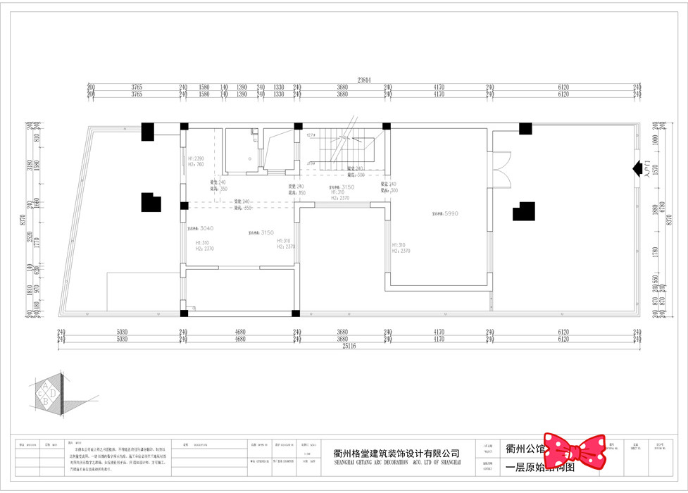
原始结构图。
mmexport1568788927417.jpg

mmexport1568788930803.jpg

mmexport1568788934321.jpg

mmexport1568788937530.jpg
回复 支持 反对

使用道具 举报

 楼主| 发表于 2019-9-18 14:57:15 | 显示全部楼层

平面布置图。
mmexport1568788926074.jpg

mmexport1568788929039.jpg

mmexport1568788932584.jpg

mmexport1568788935897.jpg
回复 支持 反对

使用道具 举报

 楼主| 发表于 2019-9-18 15:03:14 | 显示全部楼层

大门保护到位防止后期磕碰到。
IMG_20190917_114202.jpg
回复 支持 反对

使用道具 举报

 楼主| 发表于 2019-9-18 15:03:48 | 显示全部楼层

煤气表保护到位。
IMG_20190917_114212.jpg
回复 支持 反对

使用道具 举报

 楼主| 发表于 2019-9-18 15:06:59 | 显示全部楼层

四大工种的施工规范牌,同样展示到位,方便检查和验收。进度控制表,使工地进度按预定的目标进行,确保按期完工。施工铭牌上标示着设计师、项目经理、施工工人的姓名和电话,方便业主随时监督。
mmexport1568692954474.jpg
回复 支持 反对

使用道具 举报

 楼主| 发表于 2019-9-18 15:07:38 | 显示全部楼层

吉时到了,恭祝业主开工大吉。
mmexport1568692964716.jpg

mmexport1568692987870.jpg
回复 支持 反对

使用道具 举报

 楼主| 发表于 2020-3-6 11:03:37 | 显示全部楼层

水电放样:水电是隐蔽工程,关乎安全及舒适的重要阶段,一定要严肃对待。空调、橱柜、洁具店的工作人员一起到工地现场协助放样,认真核对设计图纸,并仔细做好尺寸标注。

IMG_20190917_105531.jpg

IMG_20190917_105517.jpg

IMG_20190917_105749.jpg

IMG_20190917_110449.jpg
回复 支持 反对

使用道具 举报

 楼主| 发表于 2020-3-6 11:06:42 | 显示全部楼层
楼梯处开关和插座已经标识到位,方便后续安装。
IMG_20190917_110744.jpg

IMG_20190917_110748.jpg

IMG_20190917_110750.jpg

IMG_20190917_110751.jpg
IMG_20190917_110747.jpg
回复 支持 反对

使用道具 举报

 楼主| 发表于 2020-3-6 11:14:42 | 显示全部楼层

楼梯对角。
IMG_20190917_110756.jpg

IMG_20190917_110759.jpg

IMG_20190917_110800.jpg

IMG_20190917_110802.jpg

IMG_20190917_110803.jpg
回复 支持 反对

使用道具 举报

您需要登录后才可以回帖 登录 | 立即注册

本版积分规则

全国统一客服电话
0570-8028505

24x7小时免费咨询

  • 官方在线客服

    QQ客服:小西

    点击交谈

    QQ客服:良子

    点击交谈

    QQ客服:闵月

    点击交谈
  • 衢州市柯城区财富中心3号楼2楼

  • 衢州格堂装饰有限公司

  • 扫一扫关注官方微信

    获取一手特惠信息

快速回复 返回顶部 返回列表