• 手机版

    扫码体验手机版

  • 微信公众号

    扫码关注公众号

登录注册
游客您好
第三方账号登陆

[龙游] 龙游印江南 9--902 130㎡ ----- 半暖阳光

[复制链接]
发表于 2019-9-7 18:27:24 | 显示全部楼层 |阅读模式
半暖阳光

格堂装饰为您全程记录装修全过程!

小区名称
龙游印江南
房屋面积
130㎡
户型结构
套房
装修风格
美式
装修方式
半包
装修造价
查看请联系客服万元
设计师
梁工
项目经理
杨工
装修公司
格堂装饰
完工实景
完工实景
水电全景
水电全景
VR全景
VR全景
设计说明
生活的原貌应该是生动的,会像一支悠扬的小提琴曲,像一声轻快地鸟鸣,像花儿的瓣叶,像温暖的阳光。
更多信息
本帖最后由 格堂曼淇 于 2019-9-14 16:37 编辑

   原始结构图
      微信图片_201909091517282.jpg
回复

使用道具 举报

 楼主| 发表于 2019-9-7 18:30:11 | 显示全部楼层
本帖最后由 格堂曼淇 于 2019-9-9 16:03 编辑

  

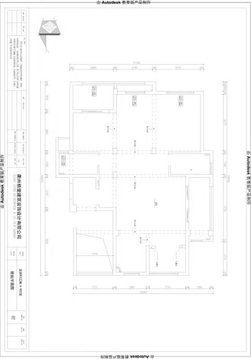
    平面布置图

      微信图片_201909091517283.jpg


回复 支持 反对

使用道具 举报

 楼主| 发表于 2019-9-7 18:30:33 | 显示全部楼层
本帖最后由 格堂曼淇 于 2019-9-9 16:18 编辑

    效果图
    微信图片_201909091517281.jpg
   




微信图片_20190909161608.jpg
回复 支持 反对

使用道具 举报

 楼主| 发表于 2019-9-7 18:35:08 | 显示全部楼层

   开工准备啦,献花必备
微信图片_201909071523148.jpg

回复 支持 反对

使用道具 举报

 楼主| 发表于 2019-9-7 18:37:20 | 显示全部楼层


   门槛及电梯口保护起来,为了防止磕碰

    微信图片_201909071523131.jpg


   微信图片_201909071523133.jpg


   微信图片_2019090715231336.jpg
回复 支持 反对

使用道具 举报

 楼主| 发表于 2019-9-7 18:49:09 | 显示全部楼层


下水道红盖头盖起来啦,防止操作中砂石掉落

   微信图片_20190907152314.jpg


微信图片_201909071523141.jpg


微信图片_2019090715231339.jpg




回复 支持 反对

使用道具 举报

 楼主| 发表于 2019-9-7 18:50:08 | 显示全部楼层



   微信图片_2019090715231351.jpg


微信图片_2019090715231352.jpg


微信图片_2019090715231353.jpg
回复 支持 反对

使用道具 举报

 楼主| 发表于 2019-9-7 18:51:46 | 显示全部楼层


  临时小便器安装好了,确保工地卫生清洁。随时随地检查有无异味

    微信图片_2019090715231350.jpg



回复 支持 反对

使用道具 举报

 楼主| 发表于 2019-9-7 18:52:50 | 显示全部楼层



  煤气表的保护必不可少

   微信图片_2019090715231340.jpg


回复 支持 反对

使用道具 举报

 楼主| 发表于 2019-9-7 18:54:51 | 显示全部楼层


   横幅挂起来啦,公司铭牌记在心

    微信图片_201909071523147.jpg


   微信图片_201909071523146.jpg


   微信图片_2019090715231337.jpg
回复 支持 反对

使用道具 举报

您需要登录后才可以回帖 登录 | 立即注册

本版积分规则

全国统一客服电话
0570-8028505

24x7小时免费咨询

  • 官方在线客服

    QQ客服:小西

    点击交谈

    QQ客服:良子

    点击交谈

    QQ客服:闵月

    点击交谈
  • 衢州市柯城区财富中心3号楼2楼

  • 衢州格堂装饰有限公司

  • 扫一扫关注官方微信

    获取一手特惠信息

快速回复 返回顶部 返回列表