• 手机版

    扫码体验手机版

  • 微信公众号

    扫码关注公众号

登录注册
游客您好
第三方账号登陆

[衢州] 衢州公馆6-15#165㎡日式——恬静

[复制链接]
发表于 2019-8-22 14:04:52 | 显示全部楼层 |阅读模式
恬静

格堂装饰为您全程记录装修全过程!

小区名称
衢州公馆
房屋面积
165㎡
户型结构
套房
装修风格
日式
装修方式
半包
装修造价
查看请联系客服万元
设计师
胡工
项目经理
余工
装修公司
格堂装饰
完工实景
完工实景
水电全景
水电全景
VR全景
VR全景
设计说明
对有些人而言,最舒服的生活状态,也许是拥有一个自己的小窝,让每个角落都充斥着家的味道。对于小窝,如何做到视野开阔尤为重要,最有效直接的方法便是让空间隔而不断,似隔非隔。
更多信息
本帖最后由 格堂小余 于 2019-8-22 14:26 编辑

效果图。
mmexport1566445750885.jpg

mmexport1566445753098.jpg
回复

使用道具 举报

 楼主| 发表于 2019-8-22 14:05:12 | 显示全部楼层

原始结构图。
mmexport1566445748680.jpg
回复 支持 反对

使用道具 举报

 楼主| 发表于 2019-8-22 14:05:32 | 显示全部楼层

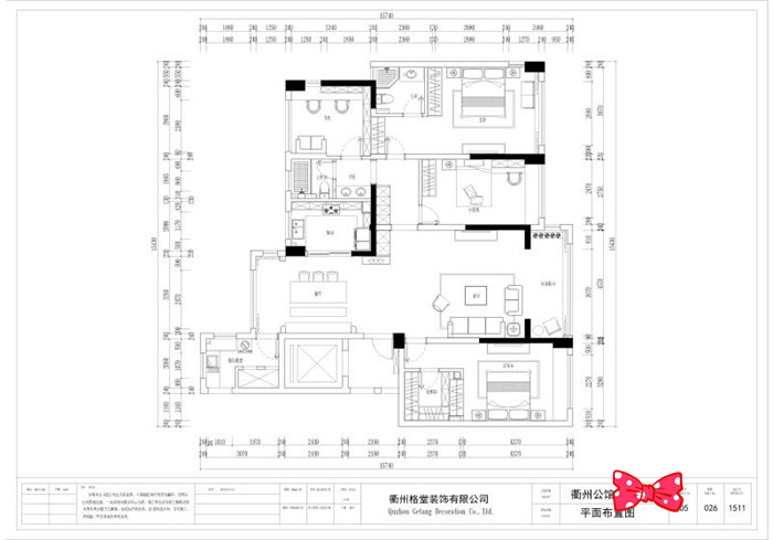
平面布置图。
mmexport1566445746383.jpg
回复 支持 反对

使用道具 举报

 楼主| 发表于 2019-8-22 14:06:22 | 显示全部楼层

美丽的鲜花准备好了,送给帅气的业主大人。
IMG_20190818_113047.jpg
回复 支持 反对

使用道具 举报

 楼主| 发表于 2019-8-22 14:06:49 | 显示全部楼层

礼炮已经到位。
IMG_20190818_113021.jpg

IMG_20190818_113026.jpg
回复 支持 反对

使用道具 举报

 楼主| 发表于 2019-8-22 14:09:09 | 显示全部楼层

格堂简易马桶安装到位。
IMG_20190818_113036.jpg
回复 支持 反对

使用道具 举报

 楼主| 发表于 2019-8-22 14:11:35 | 显示全部楼层

水管用格堂专用保护盖保护,防止砂石堵塞管道。
IMG_20190818_113038.jpg

IMG_20190818_113041.jpg
回复 支持 反对

使用道具 举报

 楼主| 发表于 2019-8-22 14:13:13 | 显示全部楼层

加多宝准备到位。
IMG_20190818_113052.jpg
回复 支持 反对

使用道具 举报

 楼主| 发表于 2019-8-22 14:13:42 | 显示全部楼层

四大工种的施工规范牌,同样展示到位,方便检查和验收。进度控制表,使工地进度按预定的目标进行,确保按期完工。施工铭牌上标示着设计师、项目经理、施工工人的姓名和电话,方便业主随时监督。
IMG_20190818_113101.jpg
回复 支持 反对

使用道具 举报

 楼主| 发表于 2019-8-22 14:14:00 | 显示全部楼层

煤气表保护到位。
IMG_20190818_113111.jpg
回复 支持 反对

使用道具 举报

您需要登录后才可以回帖 登录 | 立即注册

本版积分规则

全国统一客服电话
0570-8028505

24x7小时免费咨询

  • 官方在线客服

    QQ客服:小西

    点击交谈

    QQ客服:良子

    点击交谈

    QQ客服:闵月

    点击交谈
  • 衢州市柯城区财富中心3号楼2楼

  • 衢州格堂装饰有限公司

  • 扫一扫关注官方微信

    获取一手特惠信息

快速回复 返回顶部 返回列表