• 手机版

    扫码体验手机版

  • 微信公众号

    扫码关注公众号

登录注册
游客您好
第三方账号登陆

[衢州] 月亮湾雅园14-2#130㎡新中式——新中式之美

[复制链接]
发表于 2019-8-21 17:34:02 | 显示全部楼层 |阅读模式
新中式之美

格堂装饰为您全程记录装修全过程!

小区名称
月亮湾雅园
房屋面积
130㎡
户型结构
套房
装修风格
新中式
装修方式
全包
装修造价
查看请联系客服万元
设计师
周工
项目经理
刘工
装修公司
格堂装饰
完工实景
完工实景
水电全景
水电全景
VR全景
VR全景
设计说明
设计说明:柴米油盐酱醋茶是人间的烟火,诗书礼乐酒食画是生活的底蕴。
居与住,呈现了一个家从精神到物质的和谐。
本案以“流动的自然”为设计语言,以山水、草木、繁花图景为灵感,
并将线条、屏风等所有东方元素运用的恰到好处,
打造一个低奢又独具人文艺术的现代中式空间。
更多信息

效果图
e9c35c5b39fed103f277716540d7179.jpg

346c56f6fc925f94dbd3635b6659928.jpg
回复

使用道具 举报

 楼主| 发表于 2019-8-21 17:34:33 | 显示全部楼层
原始结构图
79ca17c86877d4c3d877c5399d7408d_副本.jpg
回复 支持 反对

使用道具 举报

 楼主| 发表于 2019-8-21 17:35:16 | 显示全部楼层

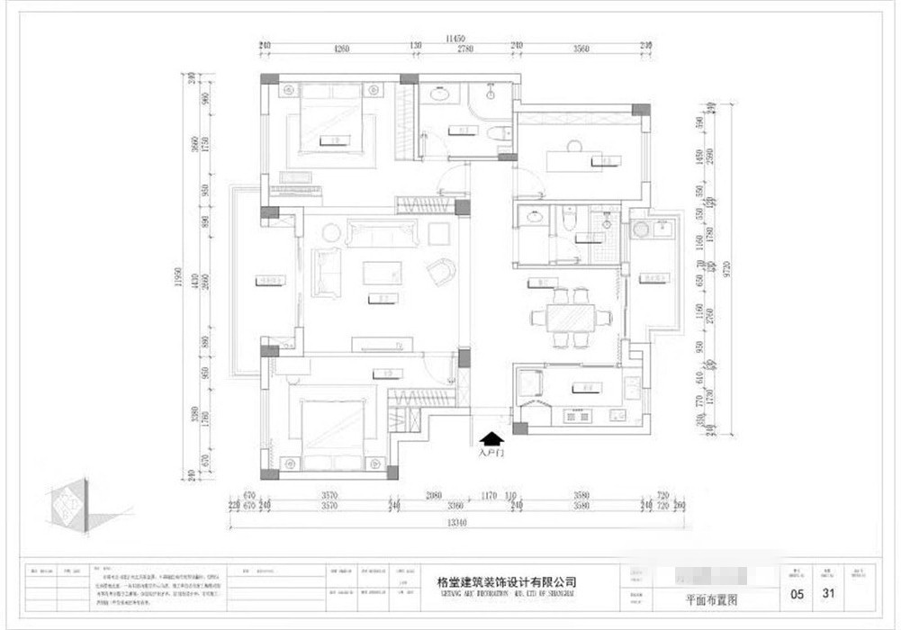
平整布置图
969f44e205f2c306da4e8f88426328a_副本.jpg
回复 支持 反对

使用道具 举报

 楼主| 发表于 2019-8-21 17:43:14 | 显示全部楼层

开工前准备工作先做好哦!
IMG_7619.JPG
项目经理正在搭桌子。
IMG_7621.JPG
回复 支持 反对

使用道具 举报

 楼主| 发表于 2019-8-21 17:44:44 | 显示全部楼层

红桌布铺起来,红红火火哟!
IMG_7624.JPG

IMG_7627.JPG
回复 支持 反对

使用道具 举报

 楼主| 发表于 2019-8-21 17:46:04 | 显示全部楼层
师傅正在大门保护,防止磕碰哦!
IMG_7626.JPG

IMG_7638.JPG
回复 支持 反对

使用道具 举报

 楼主| 发表于 2019-8-21 17:47:43 | 显示全部楼层

公司横幅也要挂起来哦!
IMG_7629.JPG
回复 支持 反对

使用道具 举报

 楼主| 发表于 2019-8-21 17:48:55 | 显示全部楼层

项目经理正在安装临时马桶,要讲究卫生哦!
IMG_7625.JPG

IMG_7633.JPG
回复 支持 反对

使用道具 举报

 楼主| 发表于 2019-8-21 17:49:46 | 显示全部楼层

师傅正在下水管道保护。
IMG_7634.JPG
回复 支持 反对

使用道具 举报

 楼主| 发表于 2019-8-21 17:51:55 | 显示全部楼层

水管用格堂专用保护盖保护,防止砂石堵塞管道.

IMG_7635.JPG
回复 支持 反对

使用道具 举报

您需要登录后才可以回帖 登录 | 立即注册

本版积分规则

全国统一客服电话
0570-8028505

24x7小时免费咨询

  • 官方在线客服

    QQ客服:小西

    点击交谈

    QQ客服:良子

    点击交谈

    QQ客服:闵月

    点击交谈
  • 衢州市柯城区财富中心3号楼2楼

  • 衢州格堂装饰有限公司

  • 扫一扫关注官方微信

    获取一手特惠信息

快速回复 返回顶部 返回列表