• 手机版

    扫码体验手机版

  • 微信公众号

    扫码关注公众号

登录注册
游客您好
第三方账号登陆

[衢州] 衢州公馆9-2-1#98㎡现代——「 边缘  界限 」

[复制链接]
发表于 2019-8-21 11:08:39 | 显示全部楼层 |阅读模式
「 边缘  界限 」

格堂装饰为您全程记录装修全过程!

小区名称
衢州公馆
房屋面积
98㎡
户型结构
套房
装修风格
现代
装修方式
半包
装修造价
查看请联系客服万元
设计师
毛工
项目经理
李工
装修公司
格堂装饰
完工实景
完工实景
水电全景
水电全景
VR全景
VR全景
设计说明
设计上的节点关系,存在于材质、比例、光影及颜色的边界,以形构出居宅丰富的生命力。
居住者追寻着一种明朗静谧的生活方式,减少空间多余的区隔、动线。
更多信息

效果图。
3c0eb9483989d55d6a9bb847d9864c9.jpg

fbf11bd99faed0eaa8da228af575081.jpg
回复

使用道具 举报

 楼主| 发表于 2019-8-21 11:11:51 | 显示全部楼层

拆墙图。
01d8dbd8a216f978bf2c9902cb47467.jpg
回复 支持 反对

使用道具 举报

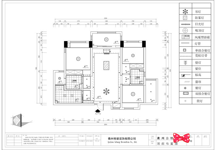
 楼主| 发表于 2019-8-21 11:13:02 | 显示全部楼层
顶面布置图。
39c6a7100789fbd965d9cf320ccd5d3.jpg
回复 支持 反对

使用道具 举报

 楼主| 发表于 2019-8-21 11:16:32 | 显示全部楼层

砌墙图。
67c9fe16661e675d15bcf7c117635d8.jpg
回复 支持 反对

使用道具 举报

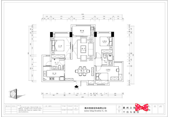
 楼主| 发表于 2019-8-21 11:17:25 | 显示全部楼层

平面布置图。
cdc3816a532cfc5155b72ec6cfa622b.jpg
回复 支持 反对

使用道具 举报

 楼主| 发表于 2019-8-21 11:18:44 | 显示全部楼层

鲜花到位,美丽的鲜花送给美丽的业主。
IMG_20190819_062642.jpg
回复 支持 反对

使用道具 举报

 楼主| 发表于 2019-8-21 11:22:30 | 显示全部楼层

开工前,项目经理与师傅正在做准备工作。
IMG_20190819_062328.jpg

IMG_20190819_062610.jpg

IMG_20190819_062648.jpg

IMG_20190819_062738.jpg

IMG_20190819_062920.jpg
回复 支持 反对

使用道具 举报

 楼主| 发表于 2019-8-21 11:26:18 | 显示全部楼层

四大工种的施工规范牌,同样展示到位,方便检查和验收。进度控制表,使工地进度按预定的目标进行,确保按期完工。施工铭牌上标示着设计师、项目经理、施工工人的姓名和电话,方便业主随时监督。
IMG_20190819_063051.jpg
回复 支持 反对

使用道具 举报

 楼主| 发表于 2019-8-21 11:27:00 | 显示全部楼层

开工前,设计师与项目经理正在交流讨论。
IMG_20190819_063314.jpg

IMG_20190819_063404.jpg

IMG_20190819_063407.jpg

IMG_20190819_063820.jpg

IMG_20190819_063904.jpg
回复 支持 反对

使用道具 举报

 楼主| 发表于 2019-8-21 11:27:55 | 显示全部楼层

吉时到了,恭祝业主开工大吉。
IMG_20190819_063541.jpg

IMG_20190819_063616.jpg
回复 支持 反对

使用道具 举报

您需要登录后才可以回帖 登录 | 立即注册

本版积分规则

全国统一客服电话
0570-8028505

24x7小时免费咨询

  • 官方在线客服

    QQ客服:小西

    点击交谈

    QQ客服:良子

    点击交谈

    QQ客服:闵月

    点击交谈
  • 衢州市柯城区财富中心3号楼2楼

  • 衢州格堂装饰有限公司

  • 扫一扫关注官方微信

    获取一手特惠信息

快速回复 返回顶部 返回列表