• 手机版

    扫码体验手机版

  • 微信公众号

    扫码关注公众号

登录注册
游客您好
第三方账号登陆

[衢州] 月亮湾雅园21-2#126㎡现代简约——质感生活

[复制链接]
发表于 2019-8-16 17:16:06 | 显示全部楼层 |阅读模式
质感生活

格堂装饰为您全程记录装修全过程!

小区名称
月亮湾雅园
房屋面积
126㎡
户型结构
套房
装修风格
现代
装修方式
全包
装修造价
查看请联系客服万元
设计师
吕工
项目经理
彭工
装修公司
格堂装饰
完工实景
完工实景
水电全景
水电全景
VR全景
VR全景
设计说明
理念:现在不光是大多数年轻人追求时尚与潮流,中年夫妻也是。但是我们最重要的是注重居室空间的布局,使用功能的完美结合,现代简约风这一独特的简而不单的设计美学将这些需求完美融合,使时尚与功能的舒适感碰撞而不失雅致、
更多信息

效果图
c62df19e134759b868e8ed9ea9233fc.jpg
回复

使用道具 举报

 楼主| 发表于 2019-8-16 17:16:26 | 显示全部楼层
本帖最后由 格堂飞飞 于 2019-9-4 11:48 编辑

原始结构图
b2ecae3d72ff306c061fcfd8dd65654_副本.jpg
回复 支持 反对

使用道具 举报

 楼主| 发表于 2019-8-16 17:16:32 | 显示全部楼层
本帖最后由 格堂飞飞 于 2019-9-4 11:49 编辑

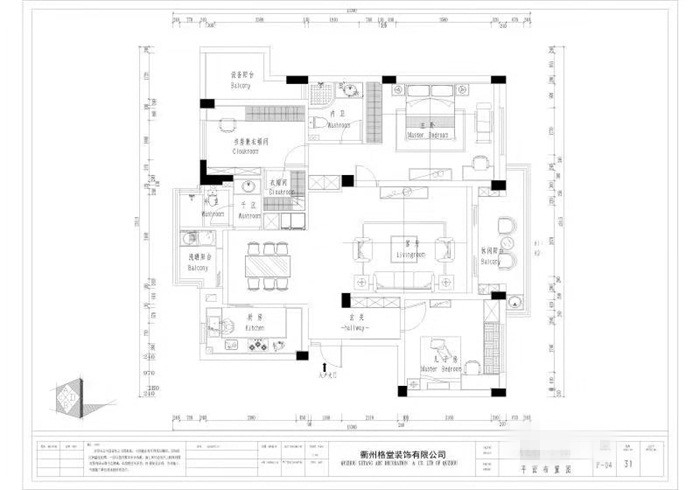
平面布置图
08e357877d12fde305affa53dc78e8b_副本.jpg
回复 支持 反对

使用道具 举报

 楼主| 发表于 2019-8-16 17:24:56 | 显示全部楼层

开工前大门先要保护起来,防止磕碰哦!
IMG_3600.JPG

IMG_3601.JPG

IMG_3652.JPG

IMG_3653.JPG

回复 支持 反对

使用道具 举报

 楼主| 发表于 2019-8-16 17:28:40 | 显示全部楼层

项目经理正在做开工前的准备工作。
IMG_3597.JPG
红桌布铺好了,红红火火哟!
IMG_3599.JPG
回复 支持 反对

使用道具 举报

 楼主| 发表于 2019-8-16 17:32:43 | 显示全部楼层

项目经理正在安装临时马桶,要讲究卫生哦!
IMG_3603.JPG

IMG_3604.JPG
回复 支持 反对

使用道具 举报

 楼主| 发表于 2019-8-16 17:34:23 | 显示全部楼层

下水管用格堂专用保护盖保护,防止砂石堵塞管道。

IMG_3606.JPG
回复 支持 反对

使用道具 举报

 楼主| 发表于 2019-8-16 17:35:24 | 显示全部楼层

煤气表也要保护到位,防止磕碰。
IMG_3616.JPG

回复 支持 反对

使用道具 举报

 楼主| 发表于 2019-8-16 17:37:19 | 显示全部楼层

门槛保护到位,防止磕碰。
IMG_3613.JPG
回复 支持 反对

使用道具 举报

 楼主| 发表于 2019-8-16 17:41:15 | 显示全部楼层

项目经理正在墙面开关面板拆除,防止磕碰
IMG_3611.JPG

IMG_3612.JPG
回复 支持 反对

使用道具 举报

您需要登录后才可以回帖 登录 | 立即注册

本版积分规则

全国统一客服电话
0570-8028505

24x7小时免费咨询

  • 官方在线客服

    QQ客服:小西

    点击交谈

    QQ客服:良子

    点击交谈

    QQ客服:闵月

    点击交谈
  • 衢州市柯城区财富中心3号楼2楼

  • 衢州格堂装饰有限公司

  • 扫一扫关注官方微信

    获取一手特惠信息

快速回复 返回顶部 返回列表