• 手机版

    扫码体验手机版

  • 微信公众号

    扫码关注公众号

登录注册
游客您好
第三方账号登陆

[衢州] 衢州公馆7-23#-163㎡现代日式——神秘学者之家

[复制链接]
发表于 2019-8-13 08:41:21 | 显示全部楼层 |阅读模式
神秘学者之家

格堂装饰为您全程记录装修全过程!

小区名称
衢州公馆
房屋面积
163㎡
户型结构
套房
装修风格
日式
装修方式
半包
装修造价
查看请联系客服万元
设计师
毛工
项目经理
施工
装修公司
格堂装饰
完工实景
完工实景
水电全景
水电全景
VR全景
VR全景
设计说明
家的本质,是一个让人放松惬意的场所,它不在于富有,而在于温馨。
所以最高级的空间设计,不是金银堆砌、不是富丽堂皇,而是摒弃一切多余的修饰,回归到其最简单纯粹的本质上来。
更多信息

效果图。
95d18704012cf335ebb13f8ea540b60.jpg

2989f5b6029ddf64c9ea6a929ad89b7.png
回复

使用道具 举报

 楼主| 发表于 2019-8-13 08:43:24 | 显示全部楼层

拆墙图。
9ba120c8cb97e4e7e13cfbf54a5425c.jpg
回复 支持 反对

使用道具 举报

 楼主| 发表于 2019-8-13 08:43:51 | 显示全部楼层

砌墙图。
086d18024fd45fa8b2fb0772f4700d4.jpg
回复 支持 反对

使用道具 举报

 楼主| 发表于 2019-8-13 08:44:55 | 显示全部楼层

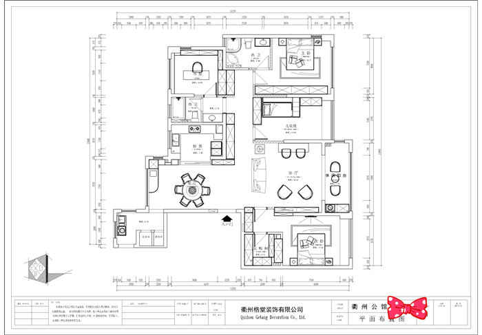
平面布置图。
686c205f8251127956e8bed4825f1f1.jpg
回复 支持 反对

使用道具 举报

 楼主| 发表于 2019-8-13 08:46:14 | 显示全部楼层

顶面布置图。
b1d94928367126c2e7fad19cbc413f5.jpg
回复 支持 反对

使用道具 举报

 楼主| 发表于 2019-8-13 08:52:29 | 显示全部楼层

大门保护、电梯保护、地面保护,防止后期磕碰到。
IMG_20190811_085647.jpg

IMG_20190811_085649.jpg

IMG_20190811_085650.jpg

IMG_20190811_085652.jpg

IMG_20190811_085653.jpg
回复 支持 反对

使用道具 举报

 楼主| 发表于 2019-8-13 08:54:55 | 显示全部楼层

大门对角。
IMG_20190811_085657.jpg

IMG_20190811_085659.jpg

IMG_20190811_085700.jpg

IMG_20190811_085701.jpg

IMG_20190811_085703.jpg
回复 支持 反对

使用道具 举报

 楼主| 发表于 2019-8-13 08:57:23 | 显示全部楼层

美丽的鲜花送给美丽的业主。
IMG_20190811_080856.jpg

IMG_20190811_081558.jpg

IMG_20190811_081603.jpg
回复 支持 反对

使用道具 举报

 楼主| 发表于 2019-8-13 08:59:34 | 显示全部楼层

开工前正在做准备工作。
IMG_20190811_080745.jpg

IMG_20190811_081613.jpg

IMG_20190811_081735.jpg

IMG_20190811_082113.jpg

IMG_20190811_082249.jpg

IMG_20190811_082534.jpg
回复 支持 反对

使用道具 举报

 楼主| 发表于 2019-8-13 09:11:51 | 显示全部楼层

礼炮准备到位。
IMG_20190811_081607.jpg
回复 支持 反对

使用道具 举报

您需要登录后才可以回帖 登录 | 立即注册

本版积分规则

全国统一客服电话
0570-8028505

24x7小时免费咨询

  • 官方在线客服

    QQ客服:小西

    点击交谈

    QQ客服:良子

    点击交谈

    QQ客服:闵月

    点击交谈
  • 衢州市柯城区财富中心3号楼2楼

  • 衢州格堂装饰有限公司

  • 扫一扫关注官方微信

    获取一手特惠信息

快速回复 返回顶部 返回列表