• 手机版

    扫码体验手机版

  • 微信公众号

    扫码关注公众号

登录注册
游客您好
第三方账号登陆

[衢州] 衢州公馆15-3-#-140㎡美式——怡然锦居

[复制链接]
发表于 2019-7-27 16:51:52 | 显示全部楼层 |阅读模式
怡然锦居

格堂装饰为您全程记录装修全过程!

小区名称
衢州公馆
房屋面积
140㎡
户型结构
套房
装修风格
美式
装修方式
全包
装修造价
查看请联系客服万元
设计师
郑工
项目经理
余工
装修公司
格堂装饰
完工实景
完工实景
水电全景
水电全景
VR全景
VR全景
设计说明
原有客厅面积不大,将阳台打通地面抬高作为独立的休闲区域。不但提高了整体客餐厅的通透性,也增加了趣味性。
敲除部分墙体做了和墙面平齐的酒柜,在提高实用性的基础上也让整体空间更为美观,
冷色调的硬装及木制沉稳的软装搭配,以及金属色彩的点缀,呈现出以温馨舒适为主的美式风格。
更多信息

效果图
mmexport1564105286353.jpg

mmexport1564105292830.jpg

mmexport1564105296528.jpg

mmexport1564105299360.jpg
回复

使用道具 举报

 楼主| 发表于 2019-7-27 16:52:14 | 显示全部楼层

原始结构图
mmexport1564105657367.jpg
回复 支持 反对

使用道具 举报

 楼主| 发表于 2019-7-27 16:52:46 | 显示全部楼层

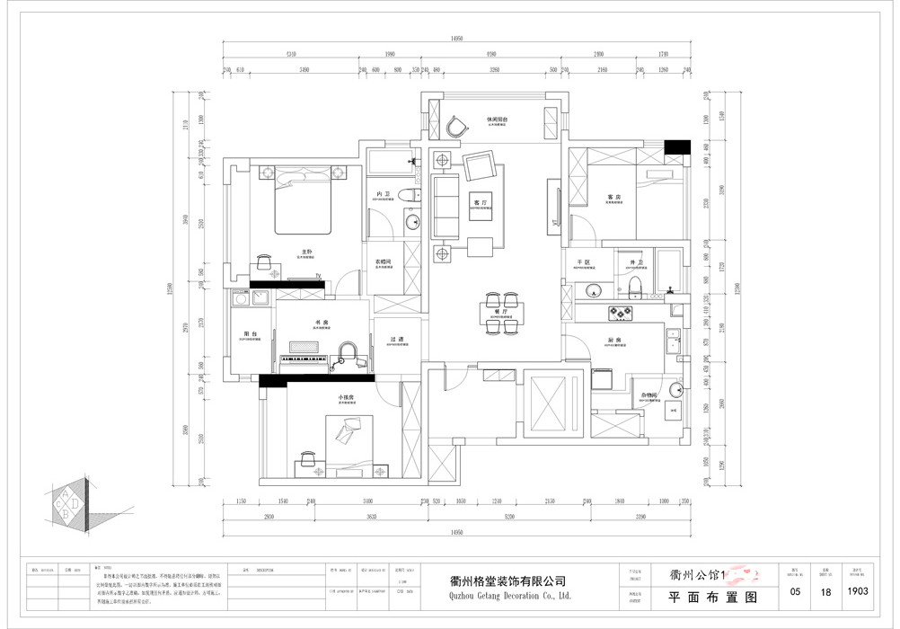
平面布置图
mmexport1564105668151.jpg
回复 支持 反对

使用道具 举报

 楼主| 发表于 2019-7-27 16:55:00 | 显示全部楼层

开工前,杂工师傅正在保护大门,防止后期磕碰。
IMG_20190726_081300.jpg

IMG_20190726_081711.jpg

IMG_20190726_081717.jpg
回复 支持 反对

使用道具 举报

 楼主| 发表于 2019-7-27 16:56:01 | 显示全部楼层

下水管用格堂专用保护盖保护,防止砂石堵塞管道。
IMG_20190726_080946.jpg

IMG_20190726_081000.jpg
回复 支持 反对

使用道具 举报

 楼主| 发表于 2019-7-27 16:56:50 | 显示全部楼层

临时马桶:每一个施工现场都会配备临时小便斗,并且时刻保持干净卫生、保证工地环境干净、整洁。
IMG_20190726_080942.jpg
回复 支持 反对

使用道具 举报

 楼主| 发表于 2019-7-27 16:57:45 | 显示全部楼层

煤气表保护好,防止后期磕碰。
IMG_20190726_081704.jpg
回复 支持 反对

使用道具 举报

 楼主| 发表于 2019-7-27 16:58:20 | 显示全部楼层

礼炮准备好了
IMG_20190726_080900.jpg
回复 支持 反对

使用道具 举报

 楼主| 发表于 2019-7-27 16:58:55 | 显示全部楼层

给业主大人送上美丽的鲜花。
IMG_20190726_080846.jpg
回复 支持 反对

使用道具 举报

 楼主| 发表于 2019-7-27 17:00:04 | 显示全部楼层

横幅挂好了,开工桌也铺上红彤彤的桌布,一切准备就绪,就等吉时啦。
IMG_20190726_080920.jpg
回复 支持 反对

使用道具 举报

您需要登录后才可以回帖 登录 | 立即注册

本版积分规则

全国统一客服电话
0570-8028505

24x7小时免费咨询

  • 官方在线客服

    QQ客服:小西

    点击交谈

    QQ客服:良子

    点击交谈

    QQ客服:闵月

    点击交谈
  • 衢州市柯城区财富中心3号楼2楼

  • 衢州格堂装饰有限公司

  • 扫一扫关注官方微信

    获取一手特惠信息

快速回复 返回顶部 返回列表