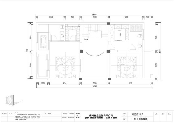
[衢州] 月亮湾18-2#446㎡简欧——让简单生活充满仪式感 |
|
让简单生活充满仪式感
格堂装饰为您全程记录装修全过程! 设计说明
设计理念:现代都市生活的快节奏呼唤简洁与明快,
温暖与放松成为家的主题, 家的装修更是一种细致入微的感受。色彩的秘密,不是那么简单,往往最疯狂的色彩都来自于对生活的乐趣与积累。在本案设计中,采用丰富的颜色完美的展现出生活本该有的明媚感与轻松感。把充满梦幻色彩的蓝色发挥到了极致,恰如其分的灰白,让整个空间增添了几分浪漫情怀。本案中,以“不跟随”的设计手法让浪漫的爱琴海设计风格表现力十足,结合当下人们对于简约而不简单的生活的向往,注入了欧式家居的典雅和华贵,别致的家具造型、触感十足的织布用品、晶莹剔透的器皿、时尚婉转的线条,这些都恰到好处的表现了匠心独运,独领风骚。整体色调上,柔和高雅的高级灰和白色调让整个空间倍感清新爽朗,将海岸上的那一抹蓝延用到室内的整个空间,显示出温馨浪漫之气,明亮而又亲切。 更多信息
| |
| |


在线客服
微信客服
关注有礼