• 手机版

    扫码体验手机版

  • 微信公众号

    扫码关注公众号

登录注册
游客您好
第三方账号登陆

[龙游] 印江南25-1#105㎡优雅格调北欧风

[复制链接]
发表于 2019-7-3 14:55:09 | 显示全部楼层 |阅读模式
优雅格调北欧风

格堂装饰为您全程记录装修全过程!

小区名称
龙游印江南
房屋面积
105㎡
户型结构
套房
装修风格
北欧
装修方式
半包
装修造价
查看请联系客服万元
设计师
郑工
项目经理
吴工
装修公司
格堂装饰
完工实景
完工实景
水电全景
水电全景
VR全景
VR全景
设计说明
整个客厅以灰色与木色作为基础色调,给人一种自然简约的感觉。客厅的北欧风格设计,营造出温润而舒适的家居环境。灰色调的沙发背景墙搭配上错落有致的装饰画,精致又美观。简洁的吊顶配以造型时尚的吊灯,让北欧风变得更加浓郁。
更多信息
本帖最后由 格堂小超 于 2019-7-10 11:43 编辑

原始结构图
图片5.png
回复

使用道具 举报

 楼主| 发表于 2019-7-3 14:55:27 | 显示全部楼层
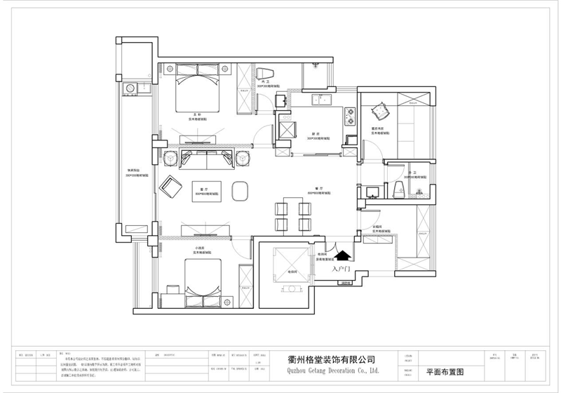
平面布置图
图片6.png
回复 支持 反对

使用道具 举报

 楼主| 发表于 2019-7-3 14:55:49 | 显示全部楼层
效果图
图片7.png

图片8.png
回复 支持 反对

使用道具 举报

 楼主| 发表于 2019-7-3 14:59:37 | 显示全部楼层
下水道保护,防止沙石阻塞
IMG20190701085019.jpg

IMG20190701085026.jpg

IMG20190701085036.jpg

IMG20190701085051.jpg

IMG20190701085108.jpg
回复 支持 反对

使用道具 举报

 楼主| 发表于 2019-7-3 14:59:53 | 显示全部楼层
IMG20190701085056.jpg
回复 支持 反对

使用道具 举报

 楼主| 发表于 2019-7-3 15:00:18 | 显示全部楼层
煤气表保护,防止磕碰受损
IMG20190701085112.jpg
回复 支持 反对

使用道具 举报

 楼主| 发表于 2019-7-3 15:00:49 | 显示全部楼层
所有门窗在铲灰前做好保护
IMG20190701085155.jpg
回复 支持 反对

使用道具 举报

 楼主| 发表于 2019-7-3 15:01:06 | 显示全部楼层
IMG20190701085211.jpg
回复 支持 反对

使用道具 举报

 楼主| 发表于 2019-7-3 15:01:31 | 显示全部楼层
施工规范铭牌
IMG20190701085217.jpg
回复 支持 反对

使用道具 举报

 楼主| 发表于 2019-7-3 15:01:55 | 显示全部楼层
吉时已到,开工大吉
IMG20190701085812_mh1561942790611.jpg
回复 支持 反对

使用道具 举报

您需要登录后才可以回帖 登录 | 立即注册

本版积分规则

全国统一客服电话
0570-8028505

24x7小时免费咨询

  • 官方在线客服

    QQ客服:小西

    点击交谈

    QQ客服:良子

    点击交谈

    QQ客服:闵月

    点击交谈
  • 衢州市柯城区财富中心3号楼2楼

  • 衢州格堂装饰有限公司

  • 扫一扫关注官方微信

    获取一手特惠信息

快速回复 返回顶部 返回列表