• 手机版

    扫码体验手机版

  • 微信公众号

    扫码关注公众号

登录注册
游客您好
第三方账号登陆

[龙游] 印江南24-9#112㎡现代北欧——清秋

[复制链接]
发表于 2019-7-2 16:04:36 | 显示全部楼层 |阅读模式
清秋

格堂装饰为您全程记录装修全过程!

小区名称
龙游印江南
房屋面积
112㎡
户型结构
套房
装修风格
现代
装修方式
半包
装修造价
查看请联系客服万元
设计师
叶工
项目经理
吴工
装修公司
格堂装饰
完工实景
完工实景
水电全景
水电全景
VR全景
VR全景
设计说明
北欧风格家居设计,简洁、干练,让家中呈现一种自然的舒适、干净之美。木质地板,白色墙面,餐桌椅用木质长桌,一股浓浓的北欧范,更显明朗与温馨。 白色的塑料餐椅与原木色的餐桌搭配,现代与自然元素想结合,温暖的色调搭配,让整个餐厅温暖起来。 多种暖色调的融合,让餐厅氛围立刻活跃起来。
更多信息
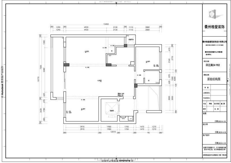
原始结构图
图片1.png
回复

使用道具 举报

 楼主| 发表于 2019-7-2 16:04:59 | 显示全部楼层
平面布置图 图片2.png
回复 支持 反对

使用道具 举报

 楼主| 发表于 2019-7-2 16:05:19 | 显示全部楼层
效果图
图片3.png

图片4.png
回复 支持 反对

使用道具 举报

 楼主| 发表于 2019-7-2 16:06:26 | 显示全部楼层
下水道保护,防止沙石阻塞 IMG20190622094035.jpg

IMG20190622094039.jpg

IMG20190622094053.jpg

IMG20190622094245.jpg
回复 支持 反对

使用道具 举报

 楼主| 发表于 2019-7-2 16:07:00 | 显示全部楼层
煤气表保护,防止磕碰受损
IMG20190622094100.jpg
回复 支持 反对

使用道具 举报

 楼主| 发表于 2019-7-2 16:07:14 | 显示全部楼层
IMG20190622094043.jpg
回复 支持 反对

使用道具 举报

 楼主| 发表于 2019-7-2 16:07:42 | 显示全部楼层
IMG20190622094125.jpg
回复 支持 反对

使用道具 举报

 楼主| 发表于 2019-7-2 16:08:11 | 显示全部楼层
施工铭牌规范
IMG20190622094131.jpg
回复 支持 反对

使用道具 举报

 楼主| 发表于 2019-7-2 16:08:52 | 显示全部楼层
入户门和电梯门口做好保护,防止磕碰受损
IMG20190622094149.jpg

IMG20190622094209.jpg
回复 支持 反对

使用道具 举报

 楼主| 发表于 2019-7-2 16:09:22 | 显示全部楼层
吉时已到开工大吉
IMG20190622095837_mh1561169013768.jpg
回复 支持 反对

使用道具 举报

您需要登录后才可以回帖 登录 | 立即注册

本版积分规则

全国统一客服电话
0570-8028505

24x7小时免费咨询

  • 官方在线客服

    QQ客服:小西

    点击交谈

    QQ客服:良子

    点击交谈

    QQ客服:闵月

    点击交谈
  • 衢州市柯城区财富中心3号楼2楼

  • 衢州格堂装饰有限公司

  • 扫一扫关注官方微信

    获取一手特惠信息

快速回复 返回顶部 返回列表