• 手机版

    扫码体验手机版

  • 微信公众号

    扫码关注公众号

登录注册
游客您好
第三方账号登陆

[衢州] 衢州公馆10-26#㎡新中式——回归自然中

[复制链接]
发表于 2019-7-2 11:29:09 | 显示全部楼层 |阅读模式
回归自然中

格堂装饰为您全程记录装修全过程!

小区名称
衢州公馆
房屋面积
113㎡
户型结构
套房
装修风格
新中式
装修方式
半包
装修造价
查看请联系客服万元
设计师
曹工
项目经理
周工
装修公司
格堂装饰
完工实景
完工实景
水电全景
水电全景
VR全景
VR全景
设计说明
设计理念:从繁华回归淡泊,从都市回归自然,从自然中寻找心中的那一方山水,本案摒弃繁杂的装饰,以现代的形式表达中式蕴味,石为山、地为水、木为树,一切取自天然,表达自然;以胡桃木色调为基调,搭配黑灰色家居;将家居实用功能和装饰效果完美结合,“虽为人做,宛若天开“。
更多信息
本帖最后由 格堂飞飞 于 2019-9-28 08:11 编辑

效果图
1a1c03b857870f9fc68eb795f59f471.jpg

27fe20cc84dc82e342d07b8e98625c2.jpg
回复

使用道具 举报

 楼主| 发表于 2019-7-2 11:29:51 | 显示全部楼层

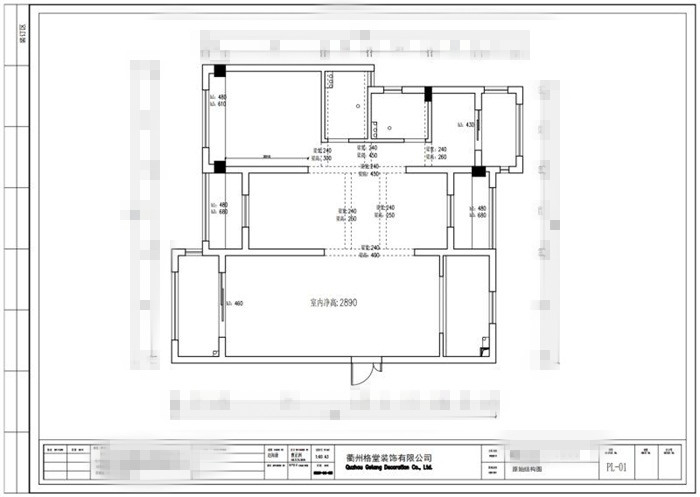
原始结构图
da7a428b29356a073dadaf5528daf6c_副本.jpg


回复 支持 反对

使用道具 举报

 楼主| 发表于 2019-7-2 11:30:18 | 显示全部楼层

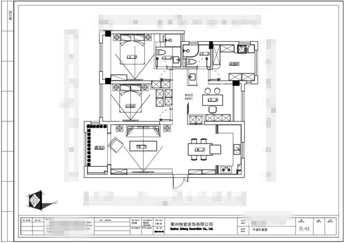
平面布置图
78ed6b9df5d31472a06c5f916e5162d_副本.jpg
回复 支持 反对

使用道具 举报

 楼主| 发表于 2019-7-2 11:42:58 | 显示全部楼层

师傅正在做开工前的准备工作。
IMG_7263.JPG
回复 支持 反对

使用道具 举报

 楼主| 发表于 2019-7-2 11:44:57 | 显示全部楼层

开工前大门先要保护起来哦!
IMG_7276.JPG
大门保护到位,防止磕碰。
IMG_7279.JPG
回复 支持 反对

使用道具 举报

 楼主| 发表于 2019-7-2 11:47:47 | 显示全部楼层

红桌布铺起来,红红火火哟!
IMG_7267.JPG
回复 支持 反对

使用道具 举报

 楼主| 发表于 2019-7-2 11:50:32 | 显示全部楼层

伙伴们正在墙面挂公司横幅哦!
IMG_7268.JPG

IMG_7270.JPG
回复 支持 反对

使用道具 举报

 楼主| 发表于 2019-7-2 11:51:52 | 显示全部楼层

门坎也要保护起来哦!
IMG_7277.JPG
门坎保护到位,防止磕碰。
IMG_7280.JPG
回复 支持 反对

使用道具 举报

 楼主| 发表于 2019-7-2 11:53:17 | 显示全部楼层

临时马桶安装到位,要讲究卫生哦!
IMG_7281.JPG
回复 支持 反对

使用道具 举报

 楼主| 发表于 2019-7-2 11:54:32 | 显示全部楼层

师傅正在保护煤气表,防止磕碰。
IMG_7282.JPG
回复 支持 反对

使用道具 举报

您需要登录后才可以回帖 登录 | 立即注册

本版积分规则

全国统一客服电话
0570-8028505

24x7小时免费咨询

  • 官方在线客服

    QQ客服:小西

    点击交谈

    QQ客服:良子

    点击交谈

    QQ客服:闵月

    点击交谈
  • 衢州市柯城区财富中心3号楼2楼

  • 衢州格堂装饰有限公司

  • 扫一扫关注官方微信

    获取一手特惠信息

快速回复 返回顶部 返回列表