• 手机版

    扫码体验手机版

  • 微信公众号

    扫码关注公众号

登录注册
游客您好
第三方账号登陆

[常山] 常山东方广场2-3-12#184㎡现代——完美的家

[复制链接]
发表于 2019-7-1 13:27:02 | 显示全部楼层 |阅读模式
常山东方广场2-3-12#184㎡现代——完美的家

格堂装饰为您全程记录装修全过程!

小区名称
东方广场
房屋面积
184㎡
户型结构
套房
装修风格
现代
装修方式
全包
装修造价
查看请联系客服万元
设计师
周工
项目经理
王工
装修公司
格堂装饰
完工实景
完工实景
水电全景
水电全景
VR全景
VR全景
设计说明
对设计师来说,最难的不是想法,而是想法的完美落地。
这对设计师来说,确实会有太多不同的答案,
而winter的答案,则是不断的坚持!
更多信息
本帖最后由 格堂小丽 于 2021-11-1 13:57 编辑

效果图
a8ab3521dd9d03edc78728605a562b1.png
回复

使用道具 举报

匿名  发表于 2019-7-19 15:29:36


地固(绿地)是一种专门作用于水泥地面上的涂料,适用于家庭装修或工程装修初期水泥地面的封闭处理,防止跑沙现象。地固耐水防潮,也可以避免木地板受潮气侵蚀而产生的变形,同时避免日后从地板缝隙中“扑灰”

e2f48e66bbfd166f9f44a82087d1585.jpg

68e4e808c87a2dcfb7977b136989e52.jpg

a5a659792029b1aa92219a8b1321517.jpg



回复 支持 1 反对 0

使用道具

 楼主| 发表于 2019-7-1 13:27:28 | 显示全部楼层


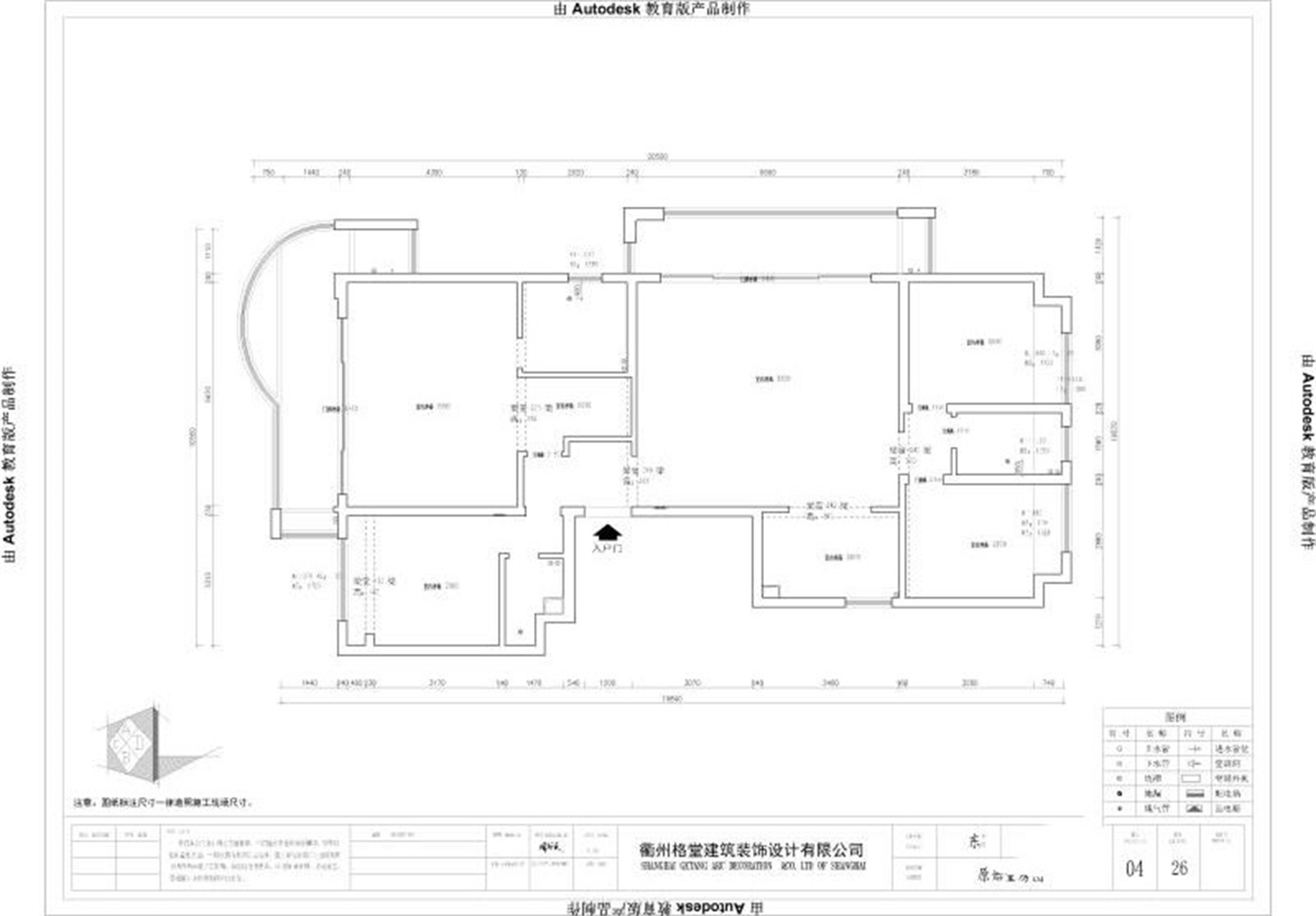
原始结构图

c6a27a78bdcd8575177270c9a300358.jpg


回复 支持 反对

使用道具 举报

 楼主| 发表于 2019-7-1 13:27:45 | 显示全部楼层


平面布置图

31f246157fd8f57139d78fa798aa3ff.jpg


回复 支持 反对

使用道具 举报

 楼主| 发表于 2019-7-1 14:33:09 | 显示全部楼层


开工仪式准备好,开工横幅,施工铭牌钉好

d6d4d4c41d72d8ed12f550973567b37.jpg

eb6bb1e38e3d6a0637792fa20923b77.jpg


回复 支持 反对

使用道具 举报

 楼主| 发表于 2019-7-1 14:33:34 | 显示全部楼层


礼炮 鲜花也都准备好了

84ed37d1e84748246f12894c484dcee.jpg

2151f18248aca5bf28674b276e784f1.jpg


回复 支持 反对

使用道具 举报

 楼主| 发表于 2019-7-1 14:34:10 | 显示全部楼层


开工吉时到,恭祝业主开工大吉,大吉大利!

d63702e15b2aa92d607468a906e2085.jpg


回复 支持 反对

使用道具 举报

 楼主| 发表于 2019-7-1 14:35:27 | 显示全部楼层


下水管道用格堂专用保护盖保护好,防止后期施工砂石堵塞进入

6c444f9b7df02db5bdcb75d9e947ded.jpg

78be28d098ecae83e94e760a55c4cbd.jpg

402d96112445af2c506d4f0e4236269.jpg

025965332deebb873c7acf51fd23b8c.jpg

e93cfe0b1df85fd28cb299aec907274.jpg


回复 支持 反对

使用道具 举报

 楼主| 发表于 2019-7-1 14:35:52 | 显示全部楼层


简易马桶安装到位

f03420e41dffb3b39de520f315e8ed7.jpg


回复 支持 反对

使用道具 举报

 楼主| 发表于 2019-7-1 14:36:38 | 显示全部楼层


开工第一锤!

62cb569ef02738e54cf1cf966568197.jpg


回复 支持 反对

使用道具 举报

 楼主| 发表于 2019-7-1 14:37:49 | 显示全部楼层


厨房及小房间拆改,小房间改为餐厅

712f37dab6a9c9a28039b117e165e61.jpg

d8a6bc9dec224d360be34e7abb69199.jpg

0c6f816ed4ddb29b8232892f1a40281.jpg

99ef833d5b89331f94a4cac36a81cae.jpg

d314e15fc299388b82965044340c1f3.jpg



回复 支持 反对

使用道具 举报

您需要登录后才可以回帖 登录 | 立即注册

本版积分规则

全国统一客服电话
0570-8028505

24x7小时免费咨询

  • 官方在线客服

    QQ客服:小西

    点击交谈

    QQ客服:良子

    点击交谈

    QQ客服:闵月

    点击交谈
  • 衢州市柯城区财富中心3号楼2楼

  • 衢州格堂装饰有限公司

  • 扫一扫关注官方微信

    获取一手特惠信息

快速回复 返回顶部 返回列表