• 手机版

    扫码体验手机版

  • 微信公众号

    扫码关注公众号

登录注册
游客您好
第三方账号登陆

[龙游] 龙游印江南24-8#112㎡现代中式——山水之间

[复制链接]
发表于 2019-6-26 14:46:38 | 显示全部楼层 |阅读模式
山水之间

格堂装饰为您全程记录装修全过程!

小区名称
龙游印江南
房屋面积
112㎡
户型结构
套房
装修风格
新中式
装修方式
半包
装修造价
查看请联系客服万元
设计师
梁工
项目经理
吴工
装修公司
格堂装饰
完工实景
完工实景
水电全景
水电全景
VR全景
VR全景
设计说明
山水墨韵,笔锋由浓转淡,在炊烟袅袅间扬起隔江千万里的大气。提笔而作,一圈一圈沁开来,染透了黑白的山水。去掉传统的、刻板的形式“美”的标签,纯粹的,有旋律的“构成”依然向我们诉说着关于“东方美”的故事。
更多信息
本帖最后由 格堂小超 于 2019-7-2 14:58 编辑

原始结构图

印江南 24-802室原始户型图.jpg
回复

使用道具 举报

 楼主| 发表于 2019-6-26 14:48:19 | 显示全部楼层
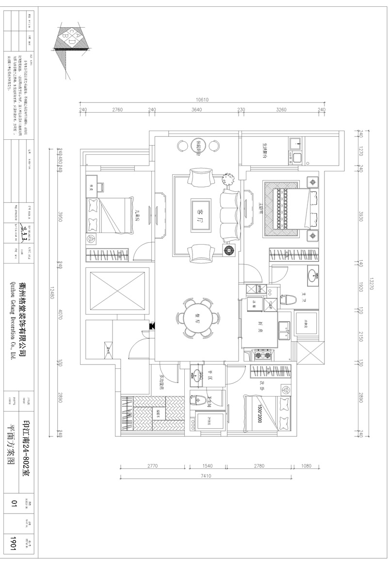
平面布置图
印江南 24-802室平面布置图.jpg
回复 支持 反对

使用道具 举报

 楼主| 发表于 2019-6-26 14:48:45 | 显示全部楼层
本帖最后由 格堂小超 于 2019-7-2 14:58 编辑

效果图
微信图片_20190625200609.jpg

微信图片_20190625200626.jpg
回复 支持 反对

使用道具 举报

 楼主| 发表于 2019-6-26 14:56:26 | 显示全部楼层
下水道口做好保护,防止沙石阻塞

IMG20190622091118.jpg

IMG20190622091121.jpg

IMG20190622091128.jpg

IMG20190622091132.jpg

IMG20190622091243.jpg
回复 支持 反对

使用道具 举报

 楼主| 发表于 2019-6-26 14:57:02 | 显示全部楼层
IMG20190622091135.jpg
回复 支持 反对

使用道具 举报

 楼主| 发表于 2019-6-26 14:57:26 | 显示全部楼层
煤气表保护防止磕碰受损

IMG20190622091106.jpg
回复 支持 反对

使用道具 举报

 楼主| 发表于 2019-6-26 14:58:18 | 显示全部楼层
入户门及电梯门口做好保护,防止磕碰受损

IMG20190622091419.jpg

IMG20190622091432.jpg
回复 支持 反对

使用道具 举报

 楼主| 发表于 2019-6-26 14:59:14 | 显示全部楼层
所有门窗在铲灰前做好保护,防尘

IMG20190622091522.jpg

IMG20190622091534.jpg

IMG20190622091537.jpg

IMG20190622091543.jpg

IMG20190622091553.jpg
回复 支持 反对

使用道具 举报

 楼主| 发表于 2019-6-26 14:59:39 | 显示全部楼层
IMG20190622091215.jpg
回复 支持 反对

使用道具 举报

 楼主| 发表于 2019-6-26 15:00:07 | 显示全部楼层
施工铭牌规范
IMG20190622091704.jpg
回复 支持 反对

使用道具 举报

您需要登录后才可以回帖 登录 | 立即注册

本版积分规则

全国统一客服电话
0570-8028505

24x7小时免费咨询

  • 官方在线客服

    QQ客服:小西

    点击交谈

    QQ客服:良子

    点击交谈

    QQ客服:闵月

    点击交谈
  • 衢州市柯城区财富中心3号楼2楼

  • 衢州格堂装饰有限公司

  • 扫一扫关注官方微信

    获取一手特惠信息

快速回复 返回顶部 返回列表