• 手机版

    扫码体验手机版

  • 微信公众号

    扫码关注公众号

登录注册
游客您好
第三方账号登陆

[衢州] 衢州公馆9-1-7#117㎡美式——满满温暖的家

[复制链接]
发表于 2019-6-24 15:05:22 | 显示全部楼层 |阅读模式
满满温暖的家

格堂装饰为您全程记录装修全过程!

小区名称
衢州公馆
房屋面积
117㎡
户型结构
套房
装修风格
美式
装修方式
全包
装修造价
查看请联系客服万元
设计师
曹工
项目经理
周工
装修公司
格堂装饰
完工实景
完工实景
水电全景
水电全景
VR全景
VR全景
设计说明
柔和的居家的线条和温润灯光。这里将美式的精致与慵懒融合得恰到好处,奶茶色的主色调,整体空间强调自然又给人满满的温暖感。
更多信息

效果图
效果图 客厅效果图_看图王.jpg

效果图 次卧效果图_看图王.jpg

效果图 主卧效果图_看图王.jpg
回复

使用道具 举报

 楼主| 发表于 2019-6-24 15:07:22 | 显示全部楼层

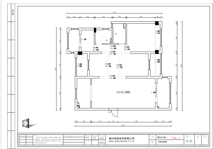
原始结构图
9c389c98c60e92af28af0ed2f2efe2c.png
回复 支持 反对

使用道具 举报

 楼主| 发表于 2019-6-24 15:07:43 | 显示全部楼层

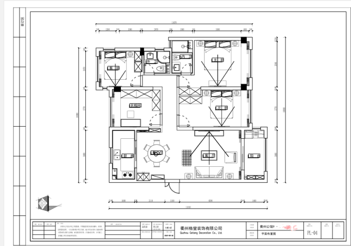
平面布置图
35e6d4a3d7f4df37febc101c8d86ecc.png
回复 支持 反对

使用道具 举报

 楼主| 发表于 2019-6-24 15:08:42 | 显示全部楼层

开工前,大门保护到位,防止后期磕碰
IMG_20190622_085953.jpg

IMG_20190622_090003.jpg
回复 支持 反对

使用道具 举报

 楼主| 发表于 2019-6-24 15:09:07 | 显示全部楼层

门槛也保护好了
IMG_20190622_085949.jpg
回复 支持 反对

使用道具 举报

 楼主| 发表于 2019-6-24 15:09:33 | 显示全部楼层

煤气表保护到位
IMG_20190622_090028.jpg
回复 支持 反对

使用道具 举报

 楼主| 发表于 2019-6-24 15:10:23 | 显示全部楼层

水管用格堂专用保护盖保护,防止砂石堵塞管道
IMG_20190622_090031.jpg

IMG_20190622_090043.jpg

IMG_20190622_090047.jpg

IMG_20190622_090056.jpg
回复 支持 反对

使用道具 举报

 楼主| 发表于 2019-6-24 15:11:02 | 显示全部楼层

临时小便斗:每一个施工现场都会配备临时小便斗,并且时刻保持干净卫生、保证工地环境干净、整洁。
IMG_20190622_090100.jpg
回复 支持 反对

使用道具 举报

 楼主| 发表于 2019-6-24 15:12:51 | 显示全部楼层

电梯口墙面和地面都贴好了格堂专用的保护垫。
IMG_20190622_093117.jpg

IMG_20190622_093121.jpg

IMG_20190622_093125.jpg

IMG_20190622_093129.jpg

IMG_20190622_093132.jpg
回复 支持 反对

使用道具 举报

 楼主| 发表于 2019-6-24 15:13:29 | 显示全部楼层

电梯口对角
IMG_20190622_093139.jpg

IMG_20190622_093145.jpg

IMG_20190622_093149.jpg

IMG_20190622_093151.jpg

IMG_20190622_093153.jpg
回复 支持 反对

使用道具 举报

您需要登录后才可以回帖 登录 | 立即注册

本版积分规则

全国统一客服电话
0570-8028505

24x7小时免费咨询

  • 官方在线客服

    QQ客服:小西

    点击交谈

    QQ客服:良子

    点击交谈

    QQ客服:闵月

    点击交谈
  • 衢州市柯城区财富中心3号楼2楼

  • 衢州格堂装饰有限公司

  • 扫一扫关注官方微信

    获取一手特惠信息

快速回复 返回顶部 返回列表