• 手机版

    扫码体验手机版

  • 微信公众号

    扫码关注公众号

登录注册
游客您好
第三方账号登陆

[衢州] 中梁首府20-2-7#174㎡现代简约——时光

[复制链接]
发表于 2019-6-19 09:30:32 | 显示全部楼层 |阅读模式
时光

格堂装饰为您全程记录装修全过程!

小区名称
中梁首府
房屋面积
174㎡
户型结构
复式
装修风格
现代
装修方式
全包
装修造价
查看请联系客服万元
设计师
韩工
项目经理
周工
装修公司
格堂装饰
完工实景
完工实景
水电全景
水电全景
VR全景
VR全景
设计说明
喜欢简洁的整齐,
胜过繁杂的堆砌。
喜欢迎着光,
向着明亮的那方,
做一个内心有光的姑娘。
喜欢柔,
喜欢留白的纯净感,
怀着简单的心,
解生活的繁。
不造作,不浮夸,
自由自在,自然而然。
更多信息
效果图
e3dd532cdbde09c614812553ce492ad.jpg
7f98c71f7450b047b4a3ed97c291b0a.jpg
回复

使用道具 举报

 楼主| 发表于 2019-6-19 09:33:43 | 显示全部楼层
原始结构图
9df6abe4a806d2888262218e864a9f0_副本.jpg

285c17daca3974bec72549010536e18_副本.jpg
回复 支持 反对

使用道具 举报

 楼主| 发表于 2019-6-19 09:34:37 | 显示全部楼层

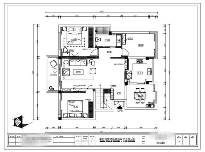
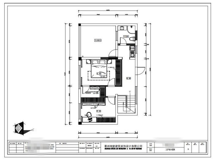
平面布置图
7495f12b942a3b18801113b5356780d_副本.jpg

dba1a1d6794ff45efd951d33b194710_副本.jpg
回复 支持 反对

使用道具 举报

 楼主| 发表于 2019-6-19 09:42:08 | 显示全部楼层

开工前大门先要保护起来哦!
IMG_0961.JPG
师傅正在大门保护,防止磕碰。
IMG_0962.JPG

IMG_0965.JPG
回复 支持 反对

使用道具 举报

 楼主| 发表于 2019-6-19 09:42:55 | 显示全部楼层
临时马桶安装到位,要讲究卫生哦!
IMG_0959.JPG
回复 支持 反对

使用道具 举报

 楼主| 发表于 2019-6-19 09:44:21 | 显示全部楼层

师傅正在下水道管保护,防止堵塞。
IMG_0958.JPG

IMG_0960.JPG
回复 支持 反对

使用道具 举报

 楼主| 发表于 2019-6-19 09:46:32 | 显示全部楼层

项目经理正在安装施工牌,红桌布也铺好了,红红火火!
IMG_0953.JPG
回复 支持 反对

使用道具 举报

 楼主| 发表于 2019-6-19 09:48:07 | 显示全部楼层

准备工作做好了,就等开工吉时喽!
IMG_0969.JPG
回复 支持 反对

使用道具 举报

 楼主| 发表于 2019-6-19 09:50:00 | 显示全部楼层
本帖最后由 格堂飞飞 于 2019-6-19 09:52 编辑

吉时已到,恭祝业主大人开工大吉!
IMG_1013_副本.jpg
回复 支持 反对

使用道具 举报

 楼主| 发表于 2019-6-19 09:53:31 | 显示全部楼层

开工第一锤,由业主大人亲自来哦!
IMG_1009_副本.jpg
回复 支持 反对

使用道具 举报

您需要登录后才可以回帖 登录 | 立即注册

本版积分规则

全国统一客服电话
0570-8028505

24x7小时免费咨询

  • 官方在线客服

    QQ客服:小西

    点击交谈

    QQ客服:良子

    点击交谈

    QQ客服:闵月

    点击交谈
  • 衢州市柯城区财富中心3号楼2楼

  • 衢州格堂装饰有限公司

  • 扫一扫关注官方微信

    获取一手特惠信息

快速回复 返回顶部 返回列表