• 手机版

    扫码体验手机版

  • 微信公众号

    扫码关注公众号

登录注册
游客您好
第三方账号登陆

[衢州] 梅花小区93#300㎡现代北欧风——北欧小清新

[复制链接]
发表于 2019-6-18 17:05:05 | 显示全部楼层 |阅读模式
北欧小清新

格堂装饰为您全程记录装修全过程!

小区名称
梅花小区
房屋面积
300㎡
户型结构
别墅
装修风格
现代
装修方式
半包
装修造价
查看请联系客服万元
设计师
余工
项目经理
彭工
装修公司
格堂装饰
完工实景
完工实景
水电全景
水电全景
VR全景
VR全景
设计说明
本案的主人是年轻的业主,所以设计上以简洁明亮的色彩为主,餐厅墙面大胆的用色,灰色的沙发,木质的餐桌完美的将时尚与古典融合。
更多信息
本帖最后由 格堂小余 于 2019-6-18 17:09 编辑

效果图。
mmexport1560846001732.jpg
回复

使用道具 举报

 楼主| 发表于 2019-6-18 17:06:27 | 显示全部楼层

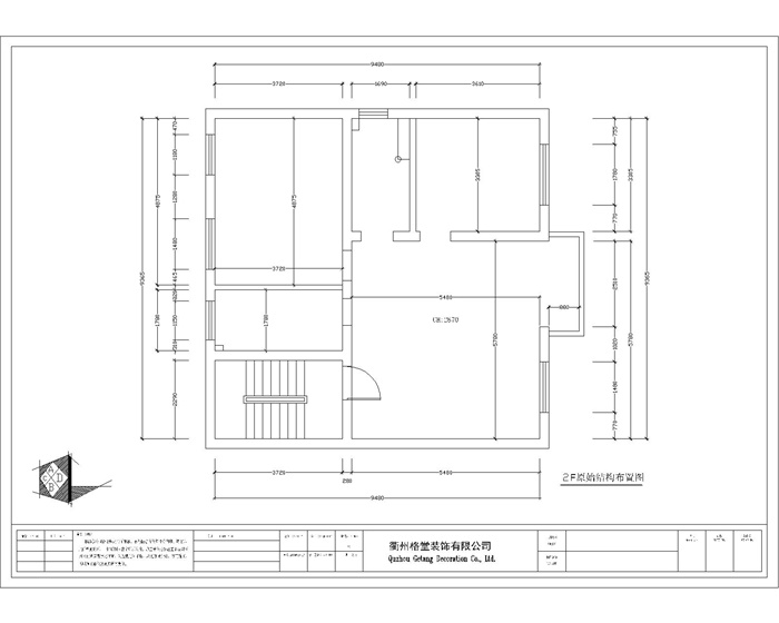
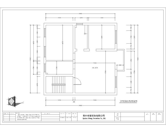
原始结构图。
mmexport1560845930054.jpg

mmexport1560845989173.jpg

mmexport1560845993543.jpg

mmexport1560845996942.jpg
回复 支持 反对

使用道具 举报

 楼主| 发表于 2019-6-18 17:07:02 | 显示全部楼层

平面布置图。
mmexport1560845991962.jpg

mmexport1560845995410.jpg

mmexport1560845998776.jpg
回复 支持 反对

使用道具 举报

 楼主| 发表于 2019-6-18 17:07:45 | 显示全部楼层

项目经理正在做准备。
IMG_20190607_085139.jpg

IMG_20190607_085159.jpg

IMG_20190607_085225.jpg
回复 支持 反对

使用道具 举报

 楼主| 发表于 2019-6-18 17:08:10 | 显示全部楼层

项目经理正在做大门保护,防止后期磕碰到。
IMG_20190607_090809.jpg
回复 支持 反对

使用道具 举报

 楼主| 发表于 2019-6-18 17:08:27 | 显示全部楼层

礼炮准备到位。
IMG_20190607_085230.jpg
回复 支持 反对

使用道具 举报

 楼主| 发表于 2019-6-18 17:09:45 | 显示全部楼层

四大工种的施工规范牌,同样展示到位,方便检查和验收。进度控制表,使工地进度按预定的目标进行,确保按期完工。施工铭牌上标示着设计师、项目经理、施工工人的姓名和电话,方便业主随时监督。
IMG_20190607_090046.jpg
回复 支持 反对

使用道具 举报

 楼主| 发表于 2019-6-18 17:10:31 | 显示全部楼层

开工前设计师与项目经理正在交流讨论。
IMG_20190607_091517.jpg

IMG_20190607_091536.jpg

IMG_20190607_091608.jpg

IMG_20190607_091643.jpg
回复 支持 反对

使用道具 举报

 楼主| 发表于 2019-6-18 17:11:10 | 显示全部楼层

吉时到了,恭祝业主开工大吉。
IMG_20190607_091828.jpg
回复 支持 反对

使用道具 举报

 楼主| 发表于 2019-6-18 17:12:03 | 显示全部楼层

开工的第一锤由帅气的业主大人敲下,寓意满满。
IMG_20190607_091938.jpg
装修开工第一锤应该敲在要拆除的墙体的墙角(即拐角)上,象征一锤定音的意思,也是新房动土的一种表示方式。
IMG_20190607_091945.jpg
回复 支持 反对

使用道具 举报

您需要登录后才可以回帖 登录 | 立即注册

本版积分规则

全国统一客服电话
0570-8028505

24x7小时免费咨询

  • 官方在线客服

    QQ客服:小西

    点击交谈

    QQ客服:良子

    点击交谈

    QQ客服:闵月

    点击交谈
  • 衢州市柯城区财富中心3号楼2楼

  • 衢州格堂装饰有限公司

  • 扫一扫关注官方微信

    获取一手特惠信息

快速回复 返回顶部 返回列表