• 手机版

    扫码体验手机版

  • 微信公众号

    扫码关注公众号

登录注册
游客您好
第三方账号登陆

[衢州] 牡丹园4-1-4#95㎡简美——拾光记-记忆中家的小清新

[复制链接]
发表于 2019-6-18 16:41:45 | 显示全部楼层 |阅读模式
拾光记-记忆中家的小清新

格堂装饰为您全程记录装修全过程!

小区名称
牡丹园
房屋面积
95㎡
户型结构
套房
装修风格
简美
装修方式
半包
装修造价
查看请联系客服万元
设计师
许工
项目经理
余工
装修公司
格堂装饰
完工实景
完工实景
水电全景
水电全景
VR全景
VR全景
设计说明
清晨的阳光洒进房间角落,从梦中醒来睁开眼,默念早安 一杯牛奶 两片吐司 安静地咀嚼闲适的早餐 原来幸福如此简单。色调在家的氛围中至关重要。本案在设计中以暖色调为基色,搭配绿色、粉色、灰色做点缀,营造温馨自然的感觉。
更多信息

效果图。
mmexport1560846440360.jpg

mmexport1560846443135.jpg
回复

使用道具 举报

 楼主| 发表于 2019-6-18 16:42:01 | 显示全部楼层

原始结构图。
mmexport1560846436349.jpg
回复 支持 反对

使用道具 举报

 楼主| 发表于 2019-6-18 16:42:18 | 显示全部楼层

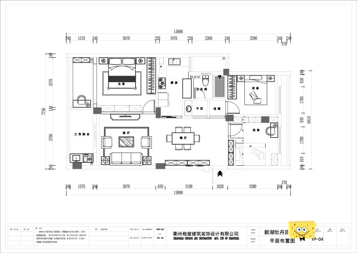
平面布置图。
mmexport1560846438443.jpg
回复 支持 反对

使用道具 举报

 楼主| 发表于 2019-6-18 16:44:28 | 显示全部楼层

鲜花已经准备好了,送给帅气的业主大人。
IMG_20190616_140323.jpg
回复 支持 反对

使用道具 举报

 楼主| 发表于 2019-6-18 16:45:17 | 显示全部楼层

礼炮准备好了。
IMG_20190616_140315.jpg
回复 支持 反对

使用道具 举报

 楼主| 发表于 2019-6-18 16:45:40 | 显示全部楼层

王老吉准备到位,非常的喜庆。
IMG_20190616_140334.jpg
回复 支持 反对

使用道具 举报

 楼主| 发表于 2019-6-18 16:46:44 | 显示全部楼层

项目经理正在做大门保护,防止后期施工磨损。
IMG_20190616_140510.jpg

IMG_20190616_141109.jpg

IMG_20190616_141154.jpg
回复 支持 反对

使用道具 举报

 楼主| 发表于 2019-6-18 16:47:57 | 显示全部楼层

格堂的简易马桶安装到位。
IMG_20190616_140721.jpg
水管用格堂专用保护盖保护,防止砂石堵塞管道。
IMG_20190616_140725.jpg

IMG_20190616_140749.jpg
回复 支持 反对

使用道具 举报

 楼主| 发表于 2019-6-18 16:48:23 | 显示全部楼层

煤气保护已经到位。
IMG_20190616_141223.jpg
回复 支持 反对

使用道具 举报

 楼主| 发表于 2019-6-18 16:48:42 | 显示全部楼层

工具已经准备到位。
IMG_20190616_141133.jpg
回复 支持 反对

使用道具 举报

您需要登录后才可以回帖 登录 | 立即注册

本版积分规则

全国统一客服电话
0570-8028505

24x7小时免费咨询

  • 官方在线客服

    QQ客服:小西

    点击交谈

    QQ客服:良子

    点击交谈

    QQ客服:闵月

    点击交谈
  • 衢州市柯城区财富中心3号楼2楼

  • 衢州格堂装饰有限公司

  • 扫一扫关注官方微信

    获取一手特惠信息

快速回复 返回顶部 返回列表