• 手机版

    扫码体验手机版

  • 微信公众号

    扫码关注公众号

登录注册
游客您好
第三方账号登陆

[龙游] 龙游印江南20#127㎡中式-温暖的中国风

[复制链接]
发表于 2019-6-9 13:35:45 | 显示全部楼层 |阅读模式
温暖的中国风

格堂装饰为您全程记录装修全过程!

小区名称
龙游印江南
房屋面积
127㎡
户型结构
套房
装修风格
中式
装修方式
半包
装修造价
查看请联系客服万元
设计师
陈工
项目经理
杨工
装修公司
格堂装饰
完工实景
完工实景
水电全景
水电全景
VR全景
VR全景
设计说明
新中式风格非常讲究空间的层次感,在需要隔绝视线的地方,则使用中式的屏风,工艺隔断,简约化的中式博古架,通过这种新的分隔方式,单元式住宅就展现出中式家具的层次之美。在以一些简单的造型为基础,添加了中式元素,使整体空间感觉更加丰富,大而不空,厚而不重,有格调又不显压抑。
更多信息
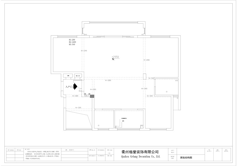
原始结构图
微信图片_20190609105725.jpg

回复

使用道具 举报

 楼主| 发表于 2019-6-9 13:36:08 | 显示全部楼层
平面布置图
微信图片_20190609105743.jpg
回复 支持 反对

使用道具 举报

 楼主| 发表于 2019-6-9 13:36:48 | 显示全部楼层
效果图
微信图片_20190609105751.jpg

微信图片_20190609105756.jpg
回复 支持 反对

使用道具 举报

 楼主| 发表于 2019-6-9 13:37:39 | 显示全部楼层
下水道保护,防止沙石阻塞

IMG20190608090121.jpg

IMG20190608090140.jpg

IMG20190608090200.jpg

IMG20190608090204.jpg
回复 支持 反对

使用道具 举报

 楼主| 发表于 2019-6-9 13:37:59 | 显示全部楼层
临时马桶
IMG20190608090145.jpg
回复 支持 反对

使用道具 举报

 楼主| 发表于 2019-6-9 13:39:08 | 显示全部楼层
煤气表保护,防止磕碰受损
IMG20190608090128.jpg


回复 支持 反对

使用道具 举报

 楼主| 发表于 2019-6-9 13:39:51 | 显示全部楼层
IMG20190608090103.jpg
回复 支持 反对

使用道具 举报

 楼主| 发表于 2019-6-9 13:40:17 | 显示全部楼层
施工规范铭牌
IMG20190608090110.jpg
回复 支持 反对

使用道具 举报

 楼主| 发表于 2019-6-9 13:41:13 | 显示全部楼层
所有门窗在铲灰前做好保护,防尘

IMG20190608090559.jpg

IMG20190608090604.jpg

IMG20190608090611.jpg
回复 支持 反对

使用道具 举报

 楼主| 发表于 2019-6-9 13:42:15 | 显示全部楼层
入户门和电梯门口保护,防止磕碰受损
IMG20190608090941.jpg

IMG20190608090947.jpg

IMG20190608090958.jpg

IMG20190608091007.jpg
回复 支持 反对

使用道具 举报

您需要登录后才可以回帖 登录 | 立即注册

本版积分规则

全国统一客服电话
0570-8028505

24x7小时免费咨询

  • 官方在线客服

    QQ客服:小西

    点击交谈

    QQ客服:良子

    点击交谈

    QQ客服:闵月

    点击交谈
  • 衢州市柯城区财富中心3号楼2楼

  • 衢州格堂装饰有限公司

  • 扫一扫关注官方微信

    获取一手特惠信息

快速回复 返回顶部 返回列表