• 手机版

    扫码体验手机版

  • 微信公众号

    扫码关注公众号

登录注册
游客您好
第三方账号登陆

[衢州] 枫丹白露19-3#169㎡新中式——新中别院

[复制链接]
发表于 2019-6-6 17:44:09 | 显示全部楼层 |阅读模式
枫丹白露19-3#169㎡新中式——新中别院

格堂装饰为您全程记录装修全过程!

小区名称
枫丹白露
房屋面积
169㎡
户型结构
复式
装修风格
新中式
装修方式
半包
装修造价
查看请联系客服万元
设计师
王工
项目经理
李工
装修公司
格堂装饰
完工实景
完工实景
水电全景
水电全景
VR全景
VR全景
设计说明
新中式 新中式风格将现代元素和传统元素结合在一起,以现代人的审美需求来打造富有传统韵味的事物,让传统艺术得到合适的体现。以简化繁却别具一格,提高居住的舒适度,也不乏中式美学。
更多信息
效果图
3550df88130bdbd1f9c50fb83c28f5b.jpg
cce10683d7fea91c9eb2ba5fec8f58f.jpg
回复

使用道具 举报

 楼主| 发表于 2019-6-6 17:45:21 | 显示全部楼层
负一楼原始结构图

b0bde308c4deb67417e98962002ee02_副本.png

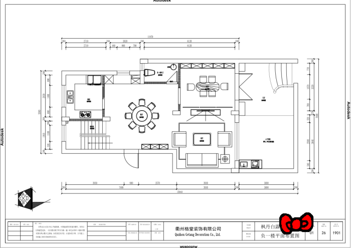
负一楼平面布置图

f4fdf428bfa0b449d983f1704725208_副本.png
回复 支持 反对

使用道具 举报

 楼主| 发表于 2019-6-6 17:46:12 | 显示全部楼层
一楼原始结构图

bd5148890c453eb59beeee7e06f7717_副本.png

一楼平面布置图

23dd19b608fd1da5f0a5d156211870b_副本.png
回复 支持 反对

使用道具 举报

 楼主| 发表于 2019-6-8 10:31:47 | 显示全部楼层
准备开工喽!
IMG_20190605_092026.jpg


IMG_20190605_092042.jpg
回复 支持 反对

使用道具 举报

 楼主| 发表于 2019-6-8 10:34:06 | 显示全部楼层
大门保护,防止后期磕碰到

IMG_20190605_091824.jpg

IMG_20190605_092227.jpg
回复 支持 反对

使用道具 举报

 楼主| 发表于 2019-6-8 10:35:17 | 显示全部楼层
水管用格堂专用保护盖保护,防止砂石堵塞管道

IMG_20190605_091439.jpg

IMG_20190605_091449.jpg

IMG_20190605_092246.jpg

IMG_20190605_092420.jpg

回复 支持 反对

使用道具 举报

 楼主| 发表于 2019-6-8 10:36:07 | 显示全部楼层
煤气表保护到位
IMG_20190605_092237.jpg


简易马桶到位

IMG_20190605_091455.jpg


回复 支持 反对

使用道具 举报

 楼主| 发表于 2019-6-8 10:37:20 | 显示全部楼层
吉时没到,先进行拆墙放样

IMG_20190605_092356_副本.jpg

IMG_20190605_092535_副本.jpg

IMG_20190605_092858_副本.jpg
回复 支持 反对

使用道具 举报

 楼主| 发表于 2019-6-8 10:46:34 | 显示全部楼层
安装图纸放样,确保放样无误

IMG_20190605_092448.jpg

IMG_20190605_092700.jpg

IMG_20190605_092838.jpg

IMG_20190605_093251_副本.jpg

IMG_20190605_094031_副本.jpg
回复 支持 反对

使用道具 举报

 楼主| 发表于 2019-6-8 10:47:42 | 显示全部楼层
吉时到,礼花放起来!恭祝业主开工大吉、大吉大利!!!

IMG_20190605_093104_副本.jpg

IMG_20190605_093105_mh1559698891888.jpg
回复 支持 反对

使用道具 举报

您需要登录后才可以回帖 登录 | 立即注册

本版积分规则

全国统一客服电话
0570-8028505

24x7小时免费咨询

  • 官方在线客服

    QQ客服:小西

    点击交谈

    QQ客服:良子

    点击交谈

    QQ客服:闵月

    点击交谈
  • 衢州市柯城区财富中心3号楼2楼

  • 衢州格堂装饰有限公司

  • 扫一扫关注官方微信

    获取一手特惠信息

快速回复 返回顶部 返回列表