• 手机版

    扫码体验手机版

  • 微信公众号

    扫码关注公众号

登录注册
游客您好
第三方账号登陆

[衢州] 香格里拉藏龙郡41-2#300㎡中式 ——住宅的温度

[复制链接]
发表于 2019-5-22 10:39:13 | 显示全部楼层 |阅读模式
住宅的温度

格堂装饰为您全程记录装修全过程!

小区名称
香格里拉
房屋面积
300㎡
户型结构
排屋
装修风格
中式
装修方式
半包
装修造价
查看请联系客服万元
设计师
胡工
项目经理
姜工
装修公司
格堂装饰
完工实景
完工实景
水电全景
水电全景
VR全景
VR全景
设计说明
在设计感愈来愈丰富的时代,不论审美风格如何更换,中国人对传统情怀却从未改变,只有生活其间,才能唤醒我们融于血液的东方基因。
更多信息
效果图
9505ae2ab225b2f9af7e12d197c8471.jpg
a4ca65dc14a43e37d4da1e5cb3d4e2e.jpg
回复

使用道具 举报

 楼主| 发表于 2019-5-22 10:39:50 | 显示全部楼层
本帖最后由 格堂月红 于 2019-5-22 10:41 编辑

一楼原始结构图
4e67372b0b6595120188407cea80deb.jpg
一楼平面布置图
dcfd95bf4ec7dea5bdb9bdc9d92a4ba.jpg
回复 支持 反对

使用道具 举报

 楼主| 发表于 2019-5-22 10:42:56 | 显示全部楼层

二楼原始结构图
ad6cd3a867f4d42c234e087857bb2ab.jpg
二楼平面布置图
d559f1e58f00da3d173a1defd9ddf2e.jpg
回复 支持 反对

使用道具 举报

 楼主| 发表于 2019-5-22 10:44:17 | 显示全部楼层

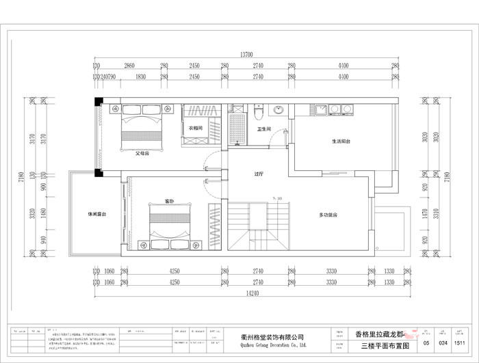
三楼原始结构图
682e4bf27a99952a34fee331d04e852.jpg
三楼平面布置图
641b6917c59d00d873920438f1c2483.jpg
回复 支持 反对

使用道具 举报

 楼主| 发表于 2019-5-22 10:48:18 | 显示全部楼层

水管用格堂专用保护盖保护,防止砂石堵塞管道
IMG_20190521_171816.jpg

IMG_20190521_171837.jpg

IMG_20190521_171840.jpg

IMG_20190521_171859.jpg

IMG_20190521_171922.jpg
回复 支持 反对

使用道具 举报

 楼主| 发表于 2019-5-22 10:48:54 | 显示全部楼层

煤气表保护到位
IMG_20190521_171805.jpg
回复 支持 反对

使用道具 举报

 楼主| 发表于 2019-5-22 10:49:41 | 显示全部楼层

临时小便斗:每一个施工现场都会配备临时小便斗,并且时刻保持干净卫生、保证工地环境干净、整洁。
IMG_20190521_171813.jpg
回复 支持 反对

使用道具 举报

 楼主| 发表于 2019-5-22 10:51:13 | 显示全部楼层

现场合同签好,感谢业主大人的对格堂的信任。
IMG_20190521_171729.jpg

IMG_20190521_172853.jpg
回复 支持 反对

使用道具 举报

 楼主| 发表于 2019-5-22 10:51:56 | 显示全部楼层

给业主送上美丽的鲜花
IMG_20190521_171736.jpg
回复 支持 反对

使用道具 举报

 楼主| 发表于 2019-5-22 10:52:52 | 显示全部楼层

准备工作做好了,就等吉时...
IMG_20190521_173136.jpg
回复 支持 反对

使用道具 举报

您需要登录后才可以回帖 登录 | 立即注册

本版积分规则

全国统一客服电话
0570-8028505

24x7小时免费咨询

  • 官方在线客服

    QQ客服:小西

    点击交谈

    QQ客服:良子

    点击交谈

    QQ客服:闵月

    点击交谈
  • 衢州市柯城区财富中心3号楼2楼

  • 衢州格堂装饰有限公司

  • 扫一扫关注官方微信

    获取一手特惠信息

快速回复 返回顶部 返回列表