• 手机版

    扫码体验手机版

  • 微信公众号

    扫码关注公众号

登录注册
游客您好
第三方账号登陆

[衢州] 衢州公馆3-1-1#143㎡美式——安然年华

[复制链接]
发表于 2019-5-21 13:20:44 | 显示全部楼层 |阅读模式
安然年华

格堂装饰为您全程记录装修全过程!

小区名称
衢州公馆
房屋面积
143㎡
户型结构
套房
装修风格
美式
装修方式
全包
装修造价
查看请联系客服万元
设计师
王工
项目经理
周工
装修公司
格堂装饰
完工实景
完工实景
水电全景
水电全景
VR全景
VR全景
设计说明
业主对家的要求是实用、美观、个性一个都不能少。经过深入沟通,我们通过户型的改造,提升了空间的利用率,并以现美式北欧混搭,呈现出Lucy精致、优雅的生活态度
更多信息

效果图。
97d10824da203bda41e22a5da027589.jpg

635ab12ce23a3f3f2f831ed63e7e671.jpg
回复

使用道具 举报

 楼主| 发表于 2019-5-21 13:22:01 | 显示全部楼层

原始结构图。
360截图20190521131503109.jpg
回复 支持 反对

使用道具 举报

 楼主| 发表于 2019-5-21 13:22:21 | 显示全部楼层

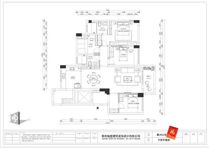
平面布置图。
360截图20190521131444498.jpg
回复 支持 反对

使用道具 举报

 楼主| 发表于 2019-5-21 13:23:04 | 显示全部楼层

大门保护、电梯保护、地面保护,防止后期磕碰到。
IMG20190518140943.jpg

IMG20190518140946_1.jpg

IMG20190518140949.jpg

IMG20190518140952_1.jpg

IMG20190518140956.jpg
回复 支持 反对

使用道具 举报

 楼主| 发表于 2019-5-21 13:23:33 | 显示全部楼层

大门保护、电梯保护、地面保护,防止后期磕碰到。
IMG20190518141005.jpg

IMG20190518141007.jpg

IMG20190518141014.jpg

IMG20190518141016.jpg

IMG20190518141021.jpg
回复 支持 反对

使用道具 举报

 楼主| 发表于 2019-5-21 13:24:02 | 显示全部楼层

门槛用红色的胶带保护好了。
IMG20190518141024.jpg
回复 支持 反对

使用道具 举报

 楼主| 发表于 2019-5-21 13:24:54 | 显示全部楼层

设计师和项目经理正在做开工前的准备工作。
IMG20190518141707_1.jpg

IMG20190518141711.jpg

IMG20190518142117.jpg

IMG20190518142158.jpg
回复 支持 反对

使用道具 举报

 楼主| 发表于 2019-5-21 13:25:16 | 显示全部楼层

煤气表已经保护到位。
IMG20190518142216.jpg
回复 支持 反对

使用道具 举报

 楼主| 发表于 2019-5-21 13:25:40 | 显示全部楼层

礼炮准备到位了。
IMG20190518142248.jpg
回复 支持 反对

使用道具 举报

 楼主| 发表于 2019-5-21 13:26:07 | 显示全部楼层

美丽的鲜花已经准备好了。
IMG20190518142507.jpg
回复 支持 反对

使用道具 举报

您需要登录后才可以回帖 登录 | 立即注册

本版积分规则

全国统一客服电话
0570-8028505

24x7小时免费咨询

  • 官方在线客服

    QQ客服:小西

    点击交谈

    QQ客服:良子

    点击交谈

    QQ客服:闵月

    点击交谈
  • 衢州市柯城区财富中心3号楼2楼

  • 衢州格堂装饰有限公司

  • 扫一扫关注官方微信

    获取一手特惠信息

快速回复 返回顶部 返回列表