• 手机版

    扫码体验手机版

  • 微信公众号

    扫码关注公众号

登录注册
游客您好
第三方账号登陆

[衢州] 裕丰花园44-3-3#87㎡北欧现代— 现代简约

[复制链接]
发表于 2019-5-19 16:03:11 | 显示全部楼层 |阅读模式
现代简约

格堂装饰为您全程记录装修全过程!

小区名称
裕丰花园
房屋面积
87㎡
户型结构
套房
装修风格
现代
装修方式
全包
装修造价
查看请联系客服万元
设计师
王工
项目经理
李工
装修公司
格堂装饰
完工实景
完工实景
水电全景
水电全景
VR全景
VR全景
设计说明
强调功能性设计,线条简约流畅,色彩对比强烈,简约却不乏设计要素,它是一种更高层次的创作境界。在室内设计方面,不放弃原有建筑空间的规矩和朴现代简约风格实,去对建筑载体进行任意装饰。而是在设计上更加强调功能,强调结构和形式的完整,更追求材料、技术、空间的表现深度与精确。
更多信息

效果图。
8cc563344dd08ce9fc398f8ab2040af.jpg

fdc3d9e3b1156fd84de345166382b52.jpg
回复

使用道具 举报

 楼主| 发表于 2019-5-19 16:03:42 | 显示全部楼层

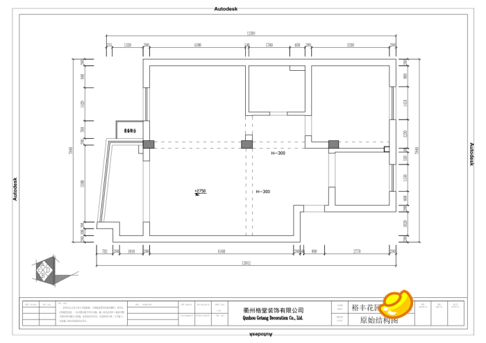
原始结构图。
微信截图_20190519104813.png
回复 支持 反对

使用道具 举报

 楼主| 发表于 2019-5-19 16:04:02 | 显示全部楼层

平面布置图。
微信截图_20190519104730.png
回复 支持 反对

使用道具 举报

 楼主| 发表于 2019-5-19 16:05:01 | 显示全部楼层

大门已经保护好了,防止后期磕碰到。
IMG_20190518_105903.jpg
回复 支持 反对

使用道具 举报

 楼主| 发表于 2019-5-19 16:05:37 | 显示全部楼层

四大工种的施工规范牌,同样展示到位,方便检查和验收。进度控制表,使工地进度按预定的目标进行,确保按期完工。施工铭牌上标示着设计师、项目经理、施工工人的姓名和电话,方便业主随时监督。
IMG_20190518_124534.jpg
回复 支持 反对

使用道具 举报

 楼主| 发表于 2019-5-19 16:06:17 | 显示全部楼层
本帖最后由 格堂小余 于 2019-5-19 16:11 编辑

开工前设计师和项目经理正在讨论交流。
IMG_20190518_130306.jpg
好记性不如烂笔头,需要拆改的位置用笔标注好方便后期施工。
IMG_20190518_130315.jpg

IMG_20190518_130418.jpg

IMG_20190518_130447.jpg

IMG_20190518_130458.jpg
回复 支持 反对

使用道具 举报

 楼主| 发表于 2019-5-19 16:10:22 | 显示全部楼层

设计师和项目经理正在交流讨论。
IMG_20190518_130713.jpg
回复 支持 反对

使用道具 举报

 楼主| 发表于 2019-5-19 16:11:38 | 显示全部楼层
保护的东西准备好了。
IMG_20190518_131224.jpg
回复 支持 反对

使用道具 举报

 楼主| 发表于 2019-5-19 16:12:36 | 显示全部楼层

鲜花也准备好了,火红的鲜花非常的喜庆。
IMG_20190518_131014.jpg
回复 支持 反对

使用道具 举报

 楼主| 发表于 2019-5-19 16:13:50 | 显示全部楼层

吉时到了,恭祝业主开工大吉。
IMG_20190518_131005.jpg

IMG_20190518_131005_1.jpg

IMG_20190518_131006.jpg

IMG_20190518_131006_1.jpg

IMG_20190518_131007.jpg
回复 支持 反对

使用道具 举报

您需要登录后才可以回帖 登录 | 立即注册

本版积分规则

全国统一客服电话
0570-8028505

24x7小时免费咨询

  • 官方在线客服

    QQ客服:小西

    点击交谈

    QQ客服:良子

    点击交谈

    QQ客服:闵月

    点击交谈
  • 衢州市柯城区财富中心3号楼2楼

  • 衢州格堂装饰有限公司

  • 扫一扫关注官方微信

    获取一手特惠信息

快速回复 返回顶部 返回列表