• 手机版

    扫码体验手机版

  • 微信公众号

    扫码关注公众号

登录注册
游客您好
第三方账号登陆

[衢州] 牡丹园19-1-7#97㎡现代——欢欢乐乐一家人

[复制链接]
发表于 2019-5-15 10:48:00 | 显示全部楼层 |阅读模式
欢欢乐乐一家人

格堂装饰为您全程记录装修全过程!

小区名称
牡丹园
房屋面积
97㎡
户型结构
套房
装修风格
现代
装修方式
全包
装修造价
查看请联系客服万元
设计师
周工
项目经理
施工
装修公司
格堂装饰
完工实景
完工实景
水电全景
水电全景
VR全景
VR全景
设计说明
本套房子业主是为了宝宝读书而购买的,平时的话是奶奶居住为主,本案是现代风格,简洁又不是精致。
更多信息

原始结构图。
360截图20190515104430310.jpg
回复

使用道具 举报

 楼主| 发表于 2019-5-15 10:48:37 | 显示全部楼层

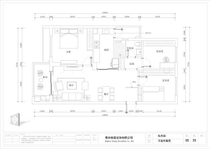
平面图。
360截图20190515104454475.jpg
回复 支持 反对

使用道具 举报

 楼主| 发表于 2019-5-15 10:49:19 | 显示全部楼层

效果图。
微信图片_20190515100510.jpg
回复 支持 反对

使用道具 举报

 楼主| 发表于 2019-5-15 10:50:39 | 显示全部楼层

设计师和项目经理正在做准备工作。
IMG_20190515_082154.jpg

IMG_20190515_082211.jpg

IMG_20190515_082255.jpg

IMG_20190515_082257.jpg

IMG_20190515_082402.jpg
回复 支持 反对

使用道具 举报

 楼主| 发表于 2019-5-15 10:52:45 | 显示全部楼层

师傅们正在做保护。
IMG_20190515_082127.jpg

IMG_20190515_082134.jpg

IMG_20190515_082306.jpg

IMG_20190515_082325.jpg
回复 支持 反对

使用道具 举报

 楼主| 发表于 2019-5-15 10:55:12 | 显示全部楼层

礼花已经准备好了。
IMG_20190515_082410.jpg
业主做的果篮非常的漂亮。
IMG_20190515_082723.jpg
业主做的果篮非常的漂亮,寓意满满。
IMG_20190515_082726.jpg
鲜花也准备好了,非常的好看。
IMG_20190515_082957.jpg

IMG_20190515_083003.jpg
回复 支持 反对

使用道具 举报

 楼主| 发表于 2019-5-15 10:58:33 | 显示全部楼层
本帖最后由 格堂小余 于 2019-5-15 11:13 编辑

开工横幅安放到位,非常的喜庆。
IMG_20190515_084905.jpg
回复 支持 反对

使用道具 举报

 楼主| 发表于 2019-5-15 11:06:13 | 显示全部楼层

吉时还没到,业主非常的有仪式感,寓意满满。
IMG_20190515_082904.jpg

IMG_20190515_084619.jpg

IMG_20190515_084628.jpg

IMG_20190515_084634.jpg
回复 支持 反对

使用道具 举报

 楼主| 发表于 2019-5-15 11:07:37 | 显示全部楼层

设计师和项目经理还有师傅正在交流讨论。
IMG_20190515_083048.jpg

IMG_20190515_083210.jpg

IMG_20190515_083049.jpg

IMG_20190515_083127.jpg

IMG_20190515_083129.jpg
回复 支持 反对

使用道具 举报

 楼主| 发表于 2019-5-15 11:08:24 | 显示全部楼层

设计师和项目经理还有师傅正在讨论交流。
IMG_20190515_083228.jpg

IMG_20190515_083232.jpg

IMG_20190515_083259.jpg

IMG_20190515_083331.jpg

IMG_20190515_083406.jpg
回复 支持 反对

使用道具 举报

您需要登录后才可以回帖 登录 | 立即注册

本版积分规则

全国统一客服电话
0570-8028505

24x7小时免费咨询

  • 官方在线客服

    QQ客服:小西

    点击交谈

    QQ客服:良子

    点击交谈

    QQ客服:闵月

    点击交谈
  • 衢州市柯城区财富中心3号楼2楼

  • 衢州格堂装饰有限公司

  • 扫一扫关注官方微信

    获取一手特惠信息

快速回复 返回顶部 返回列表