[衢州] 中梁首府27-1-7#125㎡美式轻奢——-执手问年华 |
|
中梁首府27-1-7#125㎡美式轻奢——-执手问年华
格堂装饰为您全程记录装修全过程! 设计说明
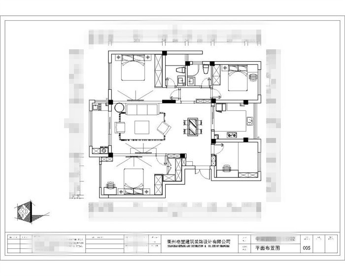
设计说明---通过前期设计师与业主的沟通,确定了风格为美式轻奢,进门第一眼看到的是一组酒柜,很好的规避了卫生间门与房门正对的户型不足,客餐厅以白色,米色和金属线条奠定整体主要的基调,电视背景采用了隐形门的处理,最大限度地保证了美观。
更多信息
| |


在线客服
微信客服
关注有礼