• 手机版

    扫码体验手机版

  • 微信公众号

    扫码关注公众号

登录注册
游客您好
第三方账号登陆

[衢州] 衢州公馆8-21#169㎡美式轻奢—-美式轻奢,精致生活

[复制链接]
发表于 2019-5-3 08:57:49 | 显示全部楼层 |阅读模式
美式轻奢,精致生活

格堂装饰为您全程记录装修全过程!

小区名称
衢州公馆
房屋面积
169㎡
户型结构
套房
装修风格
美式轻奢
装修方式
半包
装修造价
查看请联系客服万元
设计师
余工
项目经理
刘工
装修公司
格堂装饰
完工实景
完工实景
水电全景
水电全景
VR全景
VR全景
设计说明
轻奢不是浮夸,而是一种精致的生活态度,
将这份精致融入生活正是对于轻奢最好的表达。
舒适四居室,轻奢主义和现代美式的碰撞,
成就了温馨格调与设计质感的完美融合。
更多信息
本帖最后由 格堂小范 于 2019-5-5 09:16 编辑


回复

使用道具 举报

 楼主| 发表于 2019-5-3 09:12:40 | 显示全部楼层
本帖最后由 格堂小范 于 2019-5-9 12:24 编辑

效果图。


微信图片_20190505090345.jpg


微信图片_20190509122356.jpg
回复 支持 反对

使用道具 举报

 楼主| 发表于 2019-5-3 09:12:53 | 显示全部楼层
本帖最后由 格堂小范 于 2019-5-5 09:18 编辑

原始结构图。
微信图片_20190505090401.jpg
回复 支持 反对

使用道具 举报

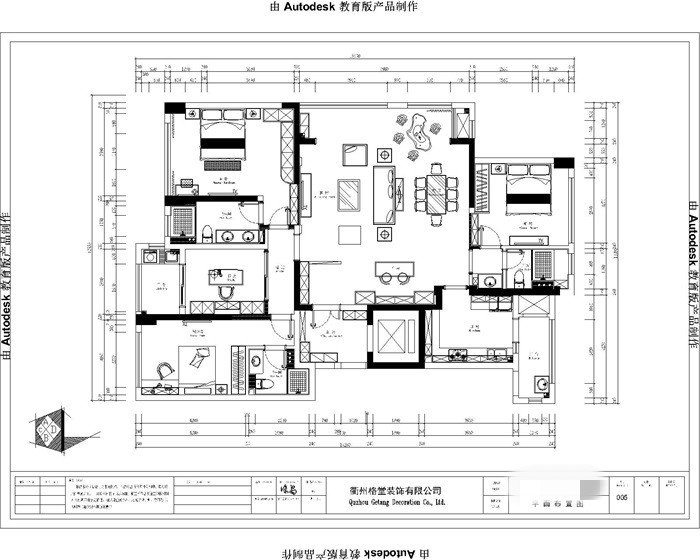
 楼主| 发表于 2019-5-3 09:13:46 | 显示全部楼层
本帖最后由 格堂小范 于 2019-5-5 09:18 编辑

平面布置图。

微信图片_20190505090407.jpg
回复 支持 反对

使用道具 举报

 楼主| 发表于 2019-5-3 09:14:19 | 显示全部楼层
开工鲜花非常漂亮。

IMG_20190430_081614.jpg
回复 支持 反对

使用道具 举报

 楼主| 发表于 2019-5-3 09:15:11 | 显示全部楼层
开工桌用红布遮挡起来非常的喜庆。

IMG_20190430_083414.jpg
回复 支持 反对

使用道具 举报

 楼主| 发表于 2019-5-3 09:15:51 | 显示全部楼层
开工横幅悬挂到位,格堂恭祝业主开工大吉。

IMG_20190430_083419.jpg
回复 支持 反对

使用道具 举报

 楼主| 发表于 2019-5-3 09:16:25 | 显示全部楼层
开工之前大门保护到位,防止后期磕碰到。

IMG_20190430_083514.jpg
回复 支持 反对

使用道具 举报

 楼主| 发表于 2019-5-3 09:17:48 | 显示全部楼层
开工之前下水管道用格堂专用保护盖保护到位,防止后期砂石堵塞管道。

IMG_20190430_083523.jpg

IMG_20190430_083526.jpg

IMG_20190430_083546.jpg

IMG_20190430_083611.jpg


回复 支持 反对

使用道具 举报

 楼主| 发表于 2019-5-3 09:18:19 | 显示全部楼层
煤气表保护到位,防止后期磕碰到。

IMG_20190430_083621.jpg
回复 支持 反对

使用道具 举报

您需要登录后才可以回帖 登录 | 立即注册

本版积分规则

全国统一客服电话
0570-8028505

24x7小时免费咨询

  • 官方在线客服

    QQ客服:小西

    点击交谈

    QQ客服:良子

    点击交谈

    QQ客服:闵月

    点击交谈
  • 衢州市柯城区财富中心3号楼2楼

  • 衢州格堂装饰有限公司

  • 扫一扫关注官方微信

    获取一手特惠信息

快速回复 返回顶部 返回列表