• 手机版

    扫码体验手机版

  • 微信公众号

    扫码关注公众号

登录注册
游客您好
第三方账号登陆

[龙游] 龙游华都首府6-2-#90m2北欧风

[复制链接]
发表于 2019-4-11 12:57:01 | 显示全部楼层 |阅读模式
幸福大气的北欧风

格堂装饰为您全程记录装修全过程!

小区名称
华都首府
房屋面积
90㎡
户型结构
套房
装修风格
北欧
装修方式
全包
装修造价
查看请联系客服万元
设计师
陈工
项目经理
何工
装修公司
格堂装饰
完工实景
完工实景
水电全景
水电全景
VR全景
VR全景
设计说明
本案设计将客餐厅为一体,原木色的餐桌和椅子,显得北欧氛围十足,再搭配造型简约的吊灯,用餐变得很轻松。因为原木带来的舒适感是别的材质无法替代的。于是设计师将茶几,收纳柜等家具都采用了木质元素,加上多彩的植物装饰与配件,整个空间不仅风格统一,而且舒适度也被大大的提升。
更多信息
本帖最后由 格堂小超 于 2019-4-29 08:44 编辑

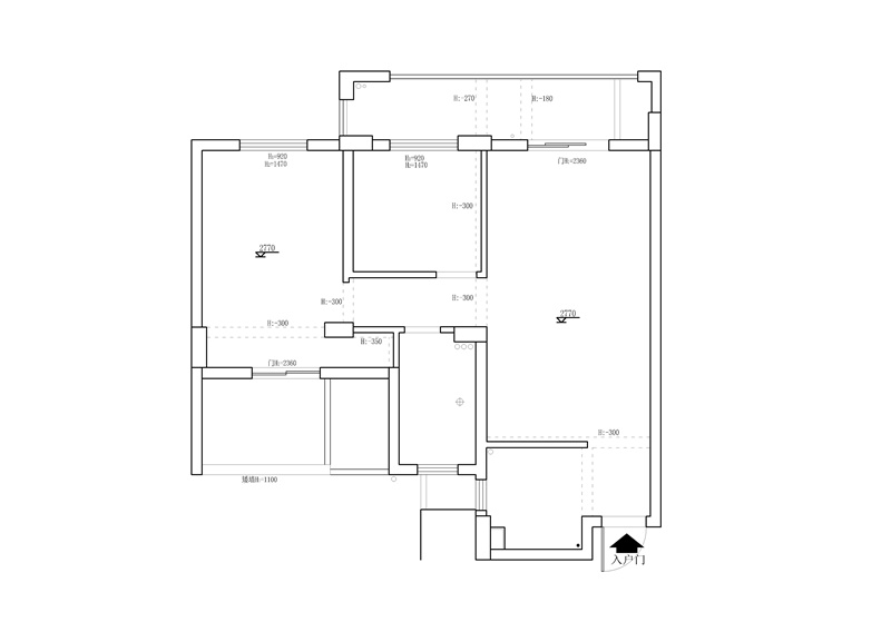
原始结构图 0e28a49db969a66a92760ab03843776.jpg
平面布置图
57d4dd3035d5ba46f9f751ba889f82f.jpg
效果图

267510384bc5b08a343e751ad8bba99.jpg

e94520d8e6885bbcd50ada96eb8b4b0.jpg

门套保护,防止大门被磕碰

IMG20190409095853.jpg

回复

使用道具 举报

 楼主| 发表于 2019-4-11 13:10:36 | 显示全部楼层
下水道盖上,防止阻塞
IMG20190409095942.jpg
回复 支持 反对

使用道具 举报

 楼主| 发表于 2019-4-11 13:11:06 | 显示全部楼层
临时马桶

IMG20190409095938.jpg
回复 支持 反对

使用道具 举报

 楼主| 发表于 2019-4-11 13:11:29 | 显示全部楼层
IMG20190409095920.jpg
回复 支持 反对

使用道具 举报

 楼主| 发表于 2019-4-11 14:48:48 | 显示全部楼层
一切准备就绪,开工大吉
mmexport1554775247655_mh1554775306226.jpg
回复 支持 反对

使用道具 举报

 楼主| 发表于 2019-4-11 14:49:32 | 显示全部楼层
开工第一锤
IMG20190409095913.jpg
回复 支持 反对

使用道具 举报

 楼主| 发表于 2019-4-12 10:59:58 | 显示全部楼层
本帖最后由 格堂小超 于 2019-4-21 15:37 编辑

入户门口保护
IMG20190417080455.jpg

IMG20190417080457.jpg

IMG20190417080506.jpg
回复 支持 反对

使用道具 举报

 楼主| 发表于 2019-4-12 11:00:21 | 显示全部楼层
本帖最后由 格堂小超 于 2019-4-21 15:38 编辑

敲墙 IMG20190417080626.jpg

IMG20190417080641.jpg



IMG20190417080648.jpg
IMG20190417080757.jpg
回复 支持 反对

使用道具 举报

 楼主| 发表于 2019-4-12 11:00:49 | 显示全部楼层
本帖最后由 格堂小超 于 2019-4-12 11:04 编辑




回复

使用道具 举报

 楼主| 发表于 2019-4-12 11:01:05 | 显示全部楼层
本帖最后由 格堂小超 于 2019-4-12 11:04 编辑



回复

使用道具 举报

您需要登录后才可以回帖 登录 | 立即注册

本版积分规则

全国统一客服电话
0570-8028505

24x7小时免费咨询

  • 官方在线客服

    QQ客服:小西

    点击交谈

    QQ客服:良子

    点击交谈

    QQ客服:闵月

    点击交谈
  • 衢州市柯城区财富中心3号楼2楼

  • 衢州格堂装饰有限公司

  • 扫一扫关注官方微信

    获取一手特惠信息

快速回复 返回顶部 返回列表