• 手机版

    扫码体验手机版

  • 微信公众号

    扫码关注公众号

登录注册
游客您好
第三方账号登陆

[衢州] 雍景柯苑留园25-3#㎡ 现代——择一城景致 享一隅清幽

[复制链接]
发表于 2019-4-3 14:58:33 | 显示全部楼层 |阅读模式
择一城景致 享一隅清幽

格堂装饰为您全程记录装修全过程!

小区名称
雍景柯苑留园
房屋面积
231㎡
户型结构
复式
装修风格
现代
装修方式
半包
装修造价
查看请联系客服万元
设计师
吕工
项目经理
刘工
装修公司
格堂装饰
完工实景
完工实景
水电全景
水电全景
VR全景
VR全景
设计说明
只有诗人和圣徒,才能坚信,在沥青路上辛勤浇水,才会配制出百合花来,百合,纷扰尽散,浮华人间,令人折服。屋内,几许摆件,简约安逸,如同甜蜜的家与你,温馨幸福,本案采用的简约设计,其实是对品质生活最真实的敬意,因为低调往往都蕴藏着内涵
更多信息
效果图
aee77ab69680dd33f5a944bc38ad35d.jpg
回复

使用道具 举报

 楼主| 发表于 2019-4-3 15:00:02 | 显示全部楼层
本帖最后由 格堂月红 于 2019-4-3 15:01 编辑

一楼原始结构图
af2edc1ae0f39811452e376a75f88d6.jpg
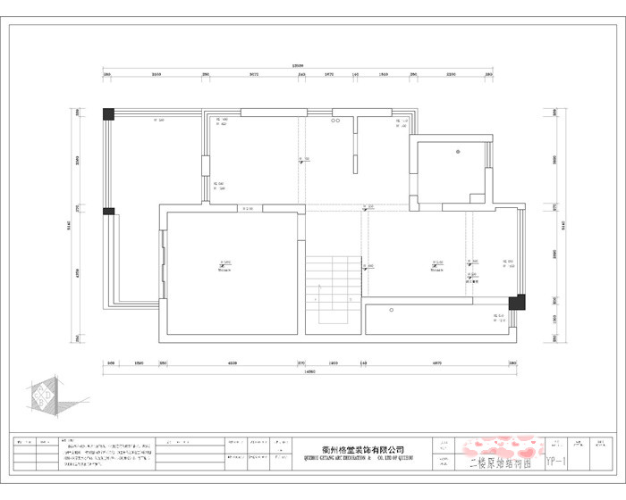
二楼原始结构图
904f1f25ad0753b1fb19dfc0f979ec1.jpg
回复 支持 反对

使用道具 举报

 楼主| 发表于 2019-4-3 15:02:08 | 显示全部楼层

一楼平面布置图
4c766027ad7977e84da66d6a0509084.jpg
二楼平面布置图
f2a4ea8e4fb0fc8049cfe5c693bb0a4.jpg
回复 支持 反对

使用道具 举报

 楼主| 发表于 2019-4-3 15:05:52 | 显示全部楼层

项目经理正在准备开工桌,同时也把横幅挂起来。
IMG20190329090815.jpg

IMG20190329090848.jpg

IMG20190329090856.jpg

IMG20190329090953.jpg
回复 支持 反对

使用道具 举报

 楼主| 发表于 2019-4-3 15:07:35 | 显示全部楼层

开工前大门和门槛保护到位。
IMG20190329091414.jpg

IMG20190329091724.jpg

IMG20190329092118.jpg

IMG20190329102022.jpg
回复 支持 反对

使用道具 举报

 楼主| 发表于 2019-4-3 15:08:24 | 显示全部楼层

煤气表保护到位
IMG20190329091303.jpg
回复 支持 反对

使用道具 举报

 楼主| 发表于 2019-4-3 15:08:56 | 显示全部楼层

简易马桶
IMG20190329091313.jpg

IMG20190329091317.jpg
回复 支持 反对

使用道具 举报

 楼主| 发表于 2019-4-3 15:10:09 | 显示全部楼层

一楼和二楼的水管用格堂专用保护盖保护,防止砂石堵塞管道
IMG20190329091322.jpg

IMG20190329091326.jpg

IMG20190329091350.jpg

IMG20190329092238.jpg

IMG20190329092242.jpg
回复 支持 反对

使用道具 举报

 楼主| 发表于 2019-4-3 15:12:14 | 显示全部楼层

礼炮就位
IMG20190329092642.jpg
送上美丽的鲜花
IMG20190329090931.jpg
回复 支持 反对

使用道具 举报

 楼主| 发表于 2019-4-3 15:14:48 | 显示全部楼层

开工前设计师、项目经理和业主正在讨论要怎样拆改。
IMG20190329091713.jpg

IMG20190329091746.jpg

IMG20190329091833.jpg

IMG20190329091933.jpg

IMG20190329092358.jpg
回复 支持 反对

使用道具 举报

您需要登录后才可以回帖 登录 | 立即注册

本版积分规则

全国统一客服电话
0570-8028505

24x7小时免费咨询

  • 官方在线客服

    QQ客服:小西

    点击交谈

    QQ客服:良子

    点击交谈

    QQ客服:闵月

    点击交谈
  • 衢州市柯城区财富中心3号楼2楼

  • 衢州格堂装饰有限公司

  • 扫一扫关注官方微信

    获取一手特惠信息

快速回复 返回顶部 返回列表