[衢州] 衢州公馆27#300㎡现代——现之家 |
|
衢州公馆27#300㎡现代——现之家
格堂装饰为您全程记录装修全过程! 设计说明
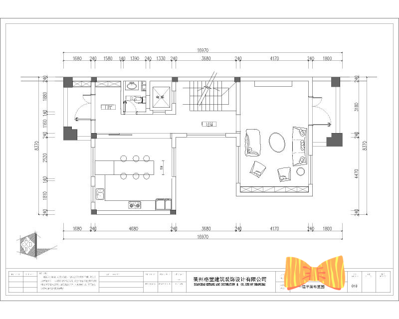
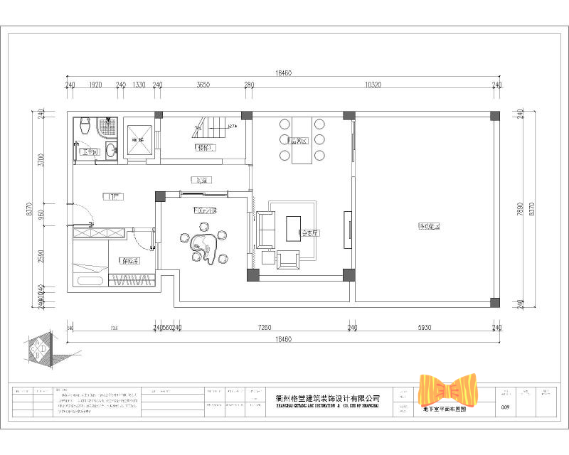
生活不仅仅是过日子,生活是与时间、自然、哲学、历史、诗歌连成的丰富的切面,设计要表现日常生活的诗意”.设计以理性的思考方式回归家的本质,在强调秩序与功能的同时,将空间具化为实用与美学交织相融的生命体,赋予空间轻奢、雅致而舒适的生活氛围。本案摆脱原户型架构的限制,解构空间功能,将会客、起居、用餐三个功能区集于一体,呈现脉络清晰的生活动线。
更多信息
| |


在线客服
微信客服
关注有礼