• 手机版

    扫码体验手机版

  • 微信公众号

    扫码关注公众号

登录注册
游客您好
第三方账号登陆

[衢州] 梅花小区99#257㎡美式——夕·拾

[复制链接]
发表于 2019-3-29 14:17:05 | 显示全部楼层 |阅读模式
梅花小区99#257㎡美式——夕·拾

格堂装饰为您全程记录装修全过程!

小区名称
梅花小区
房屋面积
357㎡
户型结构
别墅
装修风格
美式
装修方式
全包
装修造价
查看请联系客服万元
设计师
毛工
项目经理
周工
装修公司
格堂装饰
完工实景
完工实景
水电全景
水电全景
VR全景
VR全景
设计说明
生命会前行在历史的脉络上
沿途“拾”起一枝一叶,留待记忆
让“夕”阳给出记忆的钥匙
记忆的柴火静静的躺在地上
等生命去抽取沿途“拾”起的枝枝叶叶
在“夕”阳的指尖静静回忆
更多信息

回复

使用道具 举报

 楼主| 发表于 2019-3-29 14:17:41 | 显示全部楼层
效果图

36dd8a32b22b790119b4af607c34ccb.jpg
807ec4e17c7ff7dab926bfc9fb93194.jpg
回复 支持 反对

使用道具 举报

 楼主| 发表于 2019-3-29 14:17:58 | 显示全部楼层
原始构图

2a1e30a701e39042a5c4d9ecf060334_副本.jpg
407d7b50b64b4f37a423f62f21c8ce9_副本.jpg
957a33e97cab35fe4f26efbab621148_副本.jpg
ec3343338c975e5a01b60183d7e831c_副本.jpg

回复 支持 反对

使用道具 举报

 楼主| 发表于 2019-3-29 14:18:19 | 显示全部楼层
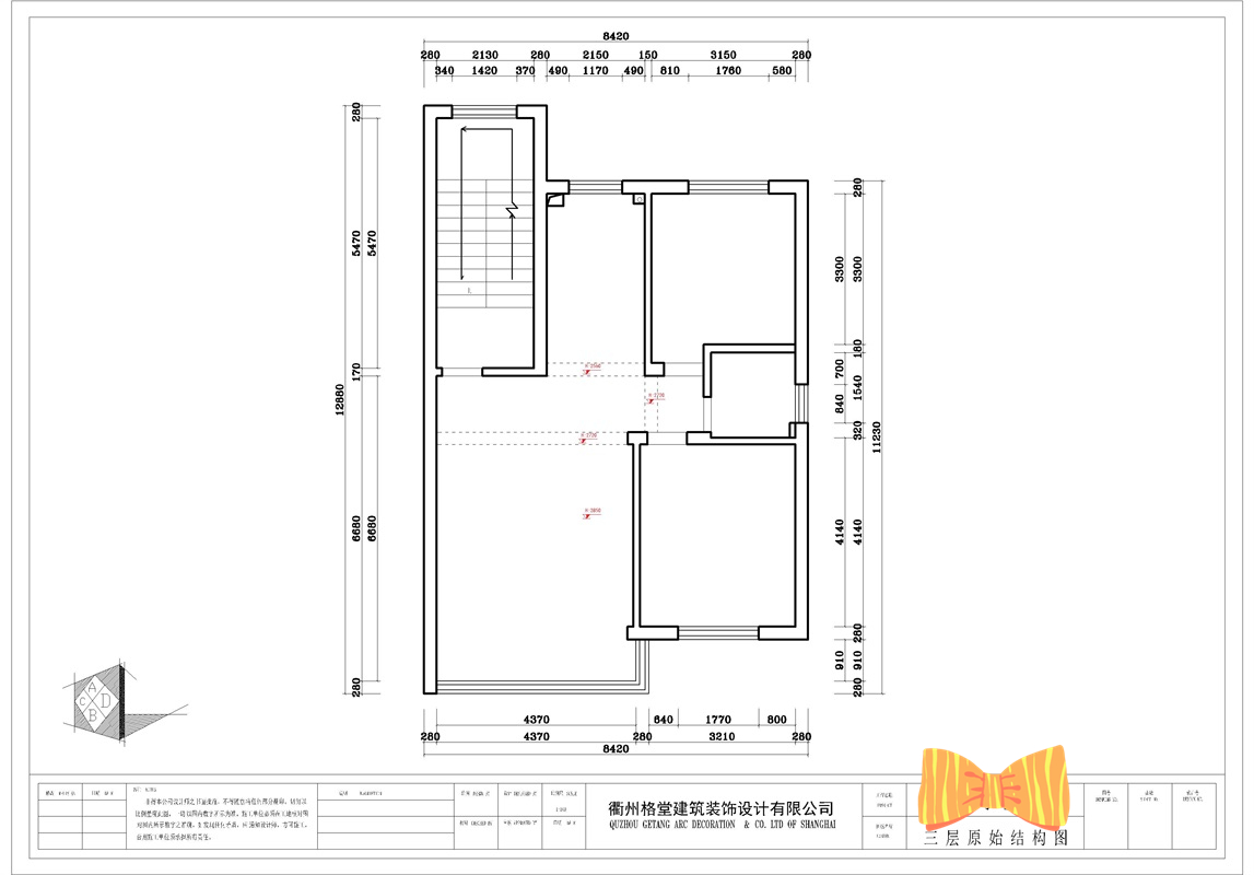
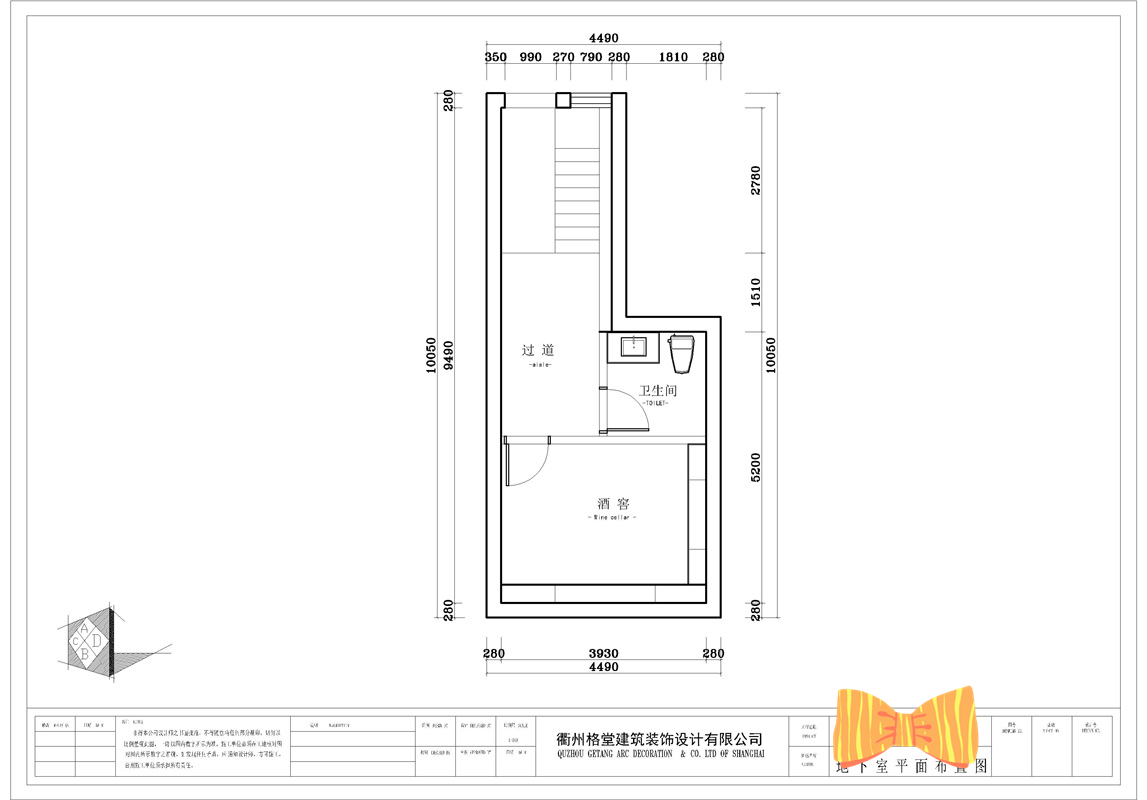
平面图

6ad9955a7df0c2010eb53cc699a0064_副本.jpg
c364770359756dc4304f12213c4d82a_副本.jpg
883c30045a145c734717332432383dd_副本.jpg
e00df918dc2375420da0b1ab59b4778_副本.jpg
回复 支持 反对

使用道具 举报

 楼主| 发表于 2019-3-29 14:18:53 | 显示全部楼层
准备开工仪式
IMG_20190105_094036_副本.jpg
IMG_20190105_094319_副本.jpg
IMG_20190105_101538_副本.jpg
回复 支持 反对

使用道具 举报

 楼主| 发表于 2019-3-29 14:19:27 | 显示全部楼层
吉时到恭喜业主开工大吉

IMG_20190105_101815_1_副本.jpg
IMG_20190105_101818_1_副本.jpg
回复 支持 反对

使用道具 举报

 楼主| 发表于 2019-3-29 14:19:52 | 显示全部楼层
厨房拆改放样
IMG_20190105_104305.jpg
回复 支持 反对

使用道具 举报

 楼主| 发表于 2019-3-29 14:21:20 | 显示全部楼层
厨房测量好拆改放样
IMG_20190105_104545.jpg
IMG_20190105_104552.jpg
回复 支持 反对

使用道具 举报

 楼主| 发表于 2019-3-29 14:21:50 | 显示全部楼层
三楼拆改放样

IMG_20190105_104956.jpg
回复 支持 反对

使用道具 举报

 楼主| 发表于 2019-3-29 14:22:15 | 显示全部楼层
讨论阳台拆改放样

IMG_20190105_105240.jpg
回复 支持 反对

使用道具 举报

您需要登录后才可以回帖 登录 | 立即注册

本版积分规则

全国统一客服电话
0570-8028505

24x7小时免费咨询

  • 官方在线客服

    QQ客服:小西

    点击交谈

    QQ客服:良子

    点击交谈

    QQ客服:闵月

    点击交谈
  • 衢州市柯城区财富中心3号楼2楼

  • 衢州格堂装饰有限公司

  • 扫一扫关注官方微信

    获取一手特惠信息

快速回复 返回顶部 返回列表