• 手机版

    扫码体验手机版

  • 微信公众号

    扫码关注公众号

登录注册
游客您好
第三方账号登陆

[衢州] 衢州公馆18-18#136㎡现代——心之所安 是为家

[复制链接]
发表于 2019-3-26 11:19:05 | 显示全部楼层 |阅读模式
心之所安 是为家

格堂装饰为您全程记录装修全过程!

小区名称
衢州公馆
房屋面积
136㎡
户型结构
套房
装修风格
现代
装修方式
全包
装修造价
查看请联系客服万元
设计师
毛工
项目经理
施工
装修公司
格堂装饰
完工实景
完工实景
水电全景
水电全景
VR全景
VR全景
设计说明
设计是一种态度,一种对生活的态度,将生活的百般滋味融入线条、颜色、形态,在美与舒适的碰撞中,感受内心深处最真实的回响。
更多信息

效果图
476b26aae06e4d8cb5b31998f3f3acd.jpg
回复

使用道具 举报

 楼主| 发表于 2019-6-24 20:46:52 | 显示全部楼层

厨房储物间对角
IMG_20190623_134846.jpg

IMG_20190623_134848.jpg

IMG_20190623_134852.jpg

IMG_20190623_134855.jpg

IMG_20190623_134900.jpg

点评

格堂专业细心,分工明确,有问题能做到及时整改,点赞!  发表于 2019-6-24 21:10
回复 支持 1 反对 0

使用道具 举报

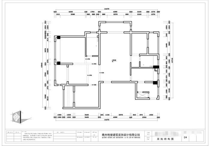
 楼主| 发表于 2019-3-26 11:19:38 | 显示全部楼层

原始结构图
8f76c1d053ad97725ae83ee41a54aca.jpg
回复 支持 反对

使用道具 举报

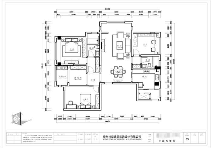
 楼主| 发表于 2019-3-26 11:20:02 | 显示全部楼层

平面布置图
f02b9ba4621de3dc6087274442f1210.jpg
回复 支持 反对

使用道具 举报

 楼主| 发表于 2019-3-26 11:21:58 | 显示全部楼层

师傅正在电梯口地面铺贴保护。
IMG20190323084310.jpg

IMG20190323090428.jpg
回复 支持 反对

使用道具 举报

 楼主| 发表于 2019-3-26 11:22:40 | 显示全部楼层

开工前大门保护到位
IMG20190323084223.jpg

IMG20190323084330.jpg

IMG20190323085220.jpg
回复 支持 反对

使用道具 举报

 楼主| 发表于 2019-3-26 11:23:23 | 显示全部楼层

煤气表保护到位
IMG20190323085131.jpg

IMG20190323085144_1.jpg
回复 支持 反对

使用道具 举报

 楼主| 发表于 2019-3-26 11:24:53 | 显示全部楼层

施工正在准备开工桌,铺上红彤彤的桌布。
IMG20190323085305.jpg
横幅拉好了。
IMG20190323085411.jpg
回复 支持 反对

使用道具 举报

 楼主| 发表于 2019-3-26 11:26:21 | 显示全部楼层
四大工种的施工规范牌,同样展示到位,方便检查和验收。进度控制表,使工地进度按预定的目标进行,确保按期完工。施工铭牌上标示着设计师、项目经理、施工工人的姓名和电话,方便业主随时监督。
IMG20190323085522.jpg

IMG20190323085933.jpg
回复 支持 反对

使用道具 举报

 楼主| 发表于 2019-3-26 11:27:08 | 显示全部楼层

礼炮准备好了
IMG20190323085429.jpg
回复 支持 反对

使用道具 举报

 楼主| 发表于 2019-3-26 11:27:59 | 显示全部楼层

给业主送上美丽的鲜花。
IMG20190323085452_mh1553303894803.jpg
回复 支持 反对

使用道具 举报

您需要登录后才可以回帖 登录 | 立即注册

本版积分规则

全国统一客服电话
0570-8028505

24x7小时免费咨询

  • 官方在线客服

    QQ客服:小西

    点击交谈

    QQ客服:良子

    点击交谈

    QQ客服:闵月

    点击交谈
  • 衢州市柯城区财富中心3号楼2楼

  • 衢州格堂装饰有限公司

  • 扫一扫关注官方微信

    获取一手特惠信息

快速回复 返回顶部 返回列表