• 手机版

    扫码体验手机版

  • 微信公众号

    扫码关注公众号

登录注册
游客您好
第三方账号登陆

[衢州] 郁金香34-2#280㎡怀旧生活—新中式

[复制链接]
发表于 2019-3-24 10:08:59 | 显示全部楼层 |阅读模式
怀旧生活—新中

格堂装饰为您全程记录装修全过程!

小区名称
郁金香
房屋面积
280㎡
户型结构
排屋
装修风格
新中式
装修方式
半包
装修造价
查看请联系客服万元
设计师
何工
项目经理
周工
装修公司
格堂装饰
完工实景
完工实景
水电全景
水电全景
VR全景
VR全景
设计说明
新中式风格造型以简洁明朗的造型为主,以简洁的线条勾画出空间层次感,再配上具有古典气质的家具及现代风格的简洁,极大的满足了现代人追求的时尚感和实用的原则。
更多信息
本帖最后由 格堂小范 于 2021-8-23 14:59 编辑

效果图
微信图片_20190324093427.jpg

微信图片_20190324093431.jpg
微信图片_20190324093435.jpg


微信图片_20190324093438.jpg




开工
回复

使用道具 举报

 楼主| 发表于 2019-3-24 10:23:12 | 显示全部楼层
本帖最后由 格堂小范 于 2019-3-24 10:37 编辑

一楼原始结构图。
微信图片_20190324093352.jpg


回复 支持 反对

使用道具 举报

 楼主| 发表于 2019-3-24 10:28:42 | 显示全部楼层
本帖最后由 格堂小范 于 2019-3-24 10:39 编辑

一楼平面布置图。
微信图片_20190324093422.jpg



回复 支持 反对

使用道具 举报

 楼主| 发表于 2019-3-24 10:29:25 | 显示全部楼层
本帖最后由 格堂小范 于 2019-3-24 10:40 编辑

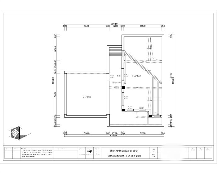
二楼原始结构图。
微信图片_20190324093414.jpg





回复 支持 反对

使用道具 举报

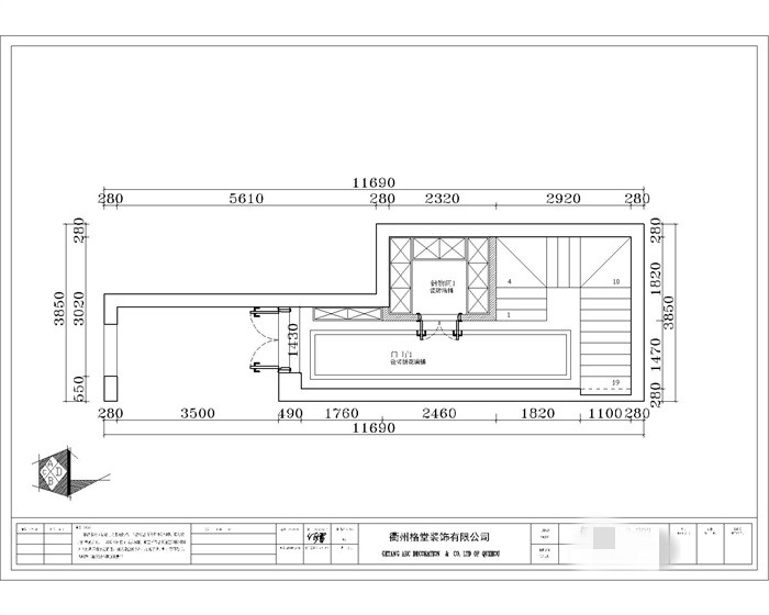
 楼主| 发表于 2019-3-24 10:41:16 | 显示全部楼层
二楼平面布置图。

微信图片_20190324093418.jpg
回复 支持 反对

使用道具 举报

 楼主| 发表于 2019-3-24 10:41:57 | 显示全部楼层
三楼原始结构图。

微信图片_20190324093405.jpg
回复 支持 反对

使用道具 举报

 楼主| 发表于 2019-3-24 10:42:23 | 显示全部楼层
三楼平面布置图。

微信图片_20190324093409.jpg
回复 支持 反对

使用道具 举报

 楼主| 发表于 2019-3-24 10:46:36 | 显示全部楼层
今天开工哦,开工鲜花礼炮都准备好咯。

IMG_20190323_110745.jpg

IMG_20190323_110852.jpg

回复 支持 反对

使用道具 举报

 楼主| 发表于 2019-3-24 10:48:14 | 显示全部楼层
本帖最后由 格堂小范 于 2019-3-27 12:46 编辑

开工桌用红布盖起来,非常的喜庆。

IMG_20190323_110839.jpg

IMG_20190323_111352.jpg

开工前大门保护到位。

IMG_20190323_115001.jpg

IMG_20190323_115014.jpg
回复 支持 反对

使用道具 举报

 楼主| 发表于 2019-3-24 10:48:54 | 显示全部楼层
公司施工牌挂好了,四大工种的施工规范牌,同样展示到位,方便检查和验收。进度控制表,使工地进度按预定的目标进行,确保按期完工。施工铭牌上标示着设计师、项目经理、施工工人的姓名和电话,方便业主随时监督。

IMG_20190323_111559.jpg
  

回复 支持 反对

使用道具 举报

您需要登录后才可以回帖 登录 | 立即注册

本版积分规则

全国统一客服电话
0570-8028505

24x7小时免费咨询

  • 官方在线客服

    QQ客服:小西

    点击交谈

    QQ客服:良子

    点击交谈

    QQ客服:闵月

    点击交谈
  • 衢州市柯城区财富中心3号楼2楼

  • 衢州格堂装饰有限公司

  • 扫一扫关注官方微信

    获取一手特惠信息

快速回复 返回顶部 返回列表