• 手机版

    扫码体验手机版

  • 微信公众号

    扫码关注公众号

登录注册
游客您好
第三方账号登陆

[衢州] 中梁首府35-3#104㎡美式——半暖时光

[复制链接]
发表于 2019-3-19 15:27:22 | 显示全部楼层 |阅读模式
中梁首府35-3#104㎡美式——半暖时光

格堂装饰为您全程记录装修全过程!

小区名称
中梁首府
房屋面积
104㎡
户型结构
套房
装修风格
美式
装修方式
全包
装修造价
查看请联系客服万元
设计师
王工
项目经理
郑工
装修公司
格堂装饰
完工实景
完工实景
水电全景
水电全景
VR全景
VR全景
设计说明
在整个颜色选择上,设计师选用蓝灰色作为墙面主色,白色为辅助色,搭配时尚美式软装,在视觉上达到色系的和谐统一,采用小面积的绿、黄色提高空间的明度。整体清爽明丽,又不失美式风格的优雅大气。
更多信息


de3a2f2e547968b622b099befd28fe2.jpg

回复

使用道具 举报

 楼主| 发表于 2019-3-19 15:28:01 | 显示全部楼层

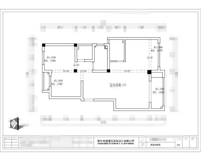
原始结构图
5d316c772b455407e94139f30e643e9_副本.jpg
回复 支持 反对

使用道具 举报

 楼主| 发表于 2019-3-19 15:28:32 | 显示全部楼层

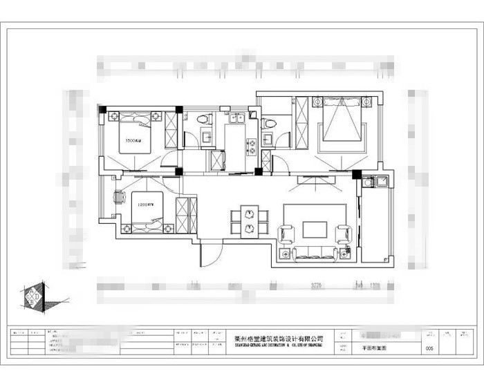
平面布置图
5281deeb2148a941465d65ae12229f9_副本.jpg
回复 支持 反对

使用道具 举报

 楼主| 发表于 2019-3-19 15:30:07 | 显示全部楼层

项目经理正在大门保护,开工前大门先要保护起来哦!
IMG_2078.JPG
回复 支持 反对

使用道具 举报

 楼主| 发表于 2019-3-19 15:30:48 | 显示全部楼层

大门保护到位,防止磕碰。
IMG_2079.JPG

IMG_2080.JPG
回复 支持 反对

使用道具 举报

 楼主| 发表于 2019-3-19 15:32:21 | 显示全部楼层

水管用格堂专用保护盖保护,防止砂石堵塞管道.
IMG_2081.JPG

IMG_2086.JPG
回复 支持 反对

使用道具 举报

 楼主| 发表于 2019-3-19 15:33:29 | 显示全部楼层

临时马桶安装到位,要讲究卫生哦!
IMG_2085.JPG
回复 支持 反对

使用道具 举报

 楼主| 发表于 2019-3-19 15:34:38 | 显示全部楼层

师傅正在门槛保护,防止磕碰。
IMG_2118.JPG

IMG_2119.JPG
回复 支持 反对

使用道具 举报

 楼主| 发表于 2019-3-19 15:37:11 | 显示全部楼层

玻璃保护膜防止玻璃磨损。
IMG_2092.JPG
地膜防止地面磕碰磨损。
IMG_2093.JPG

回复 支持 反对

使用道具 举报

 楼主| 发表于 2019-3-19 15:38:04 | 显示全部楼层

四大工种的施工规范牌,同样展示到位,方便检查和验收。进度控制表,使工地进度按预定的目标进行,确保按期完工。施工铭牌上标示着设计师、项目经理、施工工人的姓名和电话,方便业主随时监督。

IMG_2084.JPG
回复 支持 反对

使用道具 举报

您需要登录后才可以回帖 登录 | 立即注册

本版积分规则

全国统一客服电话
0570-8028505

24x7小时免费咨询

  • 官方在线客服

    QQ客服:小西

    点击交谈

    QQ客服:良子

    点击交谈

    QQ客服:闵月

    点击交谈
  • 衢州市柯城区财富中心3号楼2楼

  • 衢州格堂装饰有限公司

  • 扫一扫关注官方微信

    获取一手特惠信息

快速回复 返回顶部 返回列表